Добавить в корзинуПозвонить
Найти в Дзене

Дачный дом 6х6 с мансардой готов! Фотоотчет внутри.

В современном мире люди все больше стремятся к комфорту и гармонии с природой. Поэтому не удивительно, что возрос интерес к уютным и недорогим дачным домам. Одним из примеров такого проекта является каркасный дом 6х6 с мансардой 5х6, который мы построили в Володарском районе.
С данным клиентом мы уже встречались ранее. На том же участке в Володарском районе специалисты компании «Фаворит» построили каркасную баню 3х4, о которой мы писали в предыдущей статье. Теперь делимся фотоотчетом строительства дачного дома. Проект был разработан с учетом пожеланий клиента. Внутри дома были предусмотрены следующие помещения: просторная кухня, небольшая гостиная, санузел, две уютные спальни. Кроме того, при разработке проекта каркасного дома был учтен и предыдущий проект каркасной бани. Таким образом, два сооружения гармонично дополнили друг друга и органично вписались в ландшафт участка. Как и всегда, кратко опишем комплектацию дачного дома: Покраска и внутренняя отделка стали завершающими штрихами

В современном мире люди все больше стремятся к комфорту и гармонии с природой. Поэтому не удивительно, что возрос интерес к уютным и недорогим дачным домам. Одним из примеров такого проекта является каркасный дом 6х6 с мансардой 5х6, который мы построили в Володарском районе.

С данным клиентом мы уже встречались ранее. На том же участке в Володарском районе специалисты компании «Фаворит»
построили каркасную баню 3х4, о которой мы писали в предыдущей статье. Теперь делимся фотоотчетом строительства дачного дома.

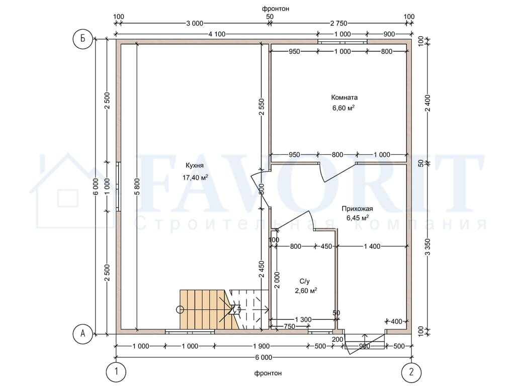
Проект был разработан с учетом пожеланий клиента. Внутри дома были предусмотрены следующие помещения: просторная кухня, небольшая гостиная, санузел, две уютные спальни.

Кроме того, при разработке проекта каркасного дома был учтен и предыдущий проект каркасной бани. Таким образом, два сооружения гармонично дополнили друг друга и органично вписались в ландшафт участка.

Каркасный дачный дом 6х6 с мансардой 5х6 от компании «Фаворит».
Каркасный дачный дом 6х6 с мансардой 5х6 от компании «Фаворит».

Как и всегда, кратко опишем комплектацию дачного дома:

  • Свайно-винтовой фундамент.
  • Кровля из цветного профнастила (цвет Ral-5005).
  • Пол 1 этажа утеплен минеральной ватой 100 мм.
  • Стены дома также утеплены минеральной ватой 100 мм.
  • Потолок мансарды утеплен минеральной ватой 100 мм
  • Наружная отделка выполнена из рау-хауса (имитация под брус).
  • Внутренняя отделка выполнена из вагонки.
  • Чистовая отделка пола: шпунтованная доска.
  • 6 ПВХ окон 1х1 м, 1 ПВХ окно 0,5х0,5 м.
  • Межкомнатные двери филенчатые.
  • Входная дверь металлическая утепленная от Российского производителя.
  • Сделана электрика.
  • Лестница одномаршевая
  • Ступеньки и козырек перед входом.
Покраска дачного дома почти завершена. Стоимость данной опции уточняйте у менеджеров компании «Фаворит».
Покраска дачного дома почти завершена. Стоимость данной опции уточняйте у менеджеров компании «Фаворит».

Покраска и внутренняя отделка стали завершающими штрихами в создании уютного и функционального места для отдыха. Согласитесь, что теперь дачный дом приобрел совершенно другой вид.

При этом стоит помнить, что покраска также защитит строение от негативного воздействия окружающей среды. Качественные материалы и покрытия гарантируют сохранение внешнего облика дома на долгие годы.

История строительства дачного дома и каркасной бани в Володарском районе - это не только рассказ об умении превращать мечту в реальность. Данный случай наглядно демонстрирует, что качественное и профессиональное взаимодействие с клиентом на протяжении всего срока строительства (от момента обращения в компанию до сдачи объекта) часто приводит к повторному сотрудничеству.

Все проекты и цены дачных домов можно посмотреть на нашем официальном сайте. При необходимости мы составим индивидуальный проект исходя из ваших предпочтений!
Дачные дома под ключ недорого в Нижнем Новгороде - цены, проекты.