Добавить в корзинуПозвонить
Найти в Дзене
СК ВласоВ

Каркасный дом 6х6 м за 12 дней

Всем привет! Появился повод порадовать Вас новой темой. Прежде всего хочу показать Вам планировку этого дома. И рассказать кое-что о стройке, которая началась в мае 2022 года. Во-первых хочу сказать, что проект был смоделирован мной в начале 2022 года, как альтернатива небольшого, но стильного дачного дома. После подписания договора с Заказчиком приступили к проектированию конструктивной части проекта. Срок проектирования - 4 дня. Габариты дома небольшие, но количество свай приличное :) 20 штук, диаметр сваи - 108 мм, длина - 2,5 метра. Для силового каркаса была использована строганная доска камерной сушки 45х140 мм, а для перегородок 45х90 мм. По традиции в качестве черновых полов используем оцинкованную сетку от грызунов по обрешётке из доски 25х100 мм, с шагом 250 мм. Силовой каркас был собран за 3 дня. В бригаде три человека, поэтому все быстро и оперативно:) Отделка снаружи - вагонка хвойных пород, класса "А,В", которая была окрашена в два слоя финской краской от компании Tikku

Всем привет!

Появился повод порадовать Вас новой темой.

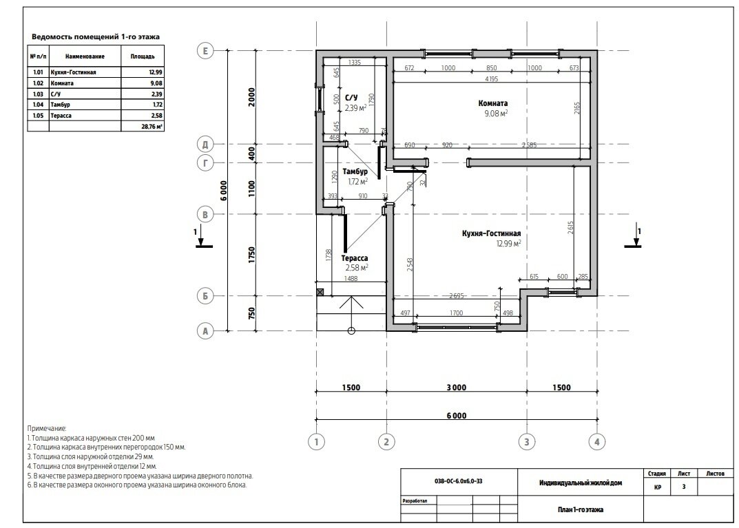
Прежде всего хочу показать Вам планировку этого дома.

-2

И рассказать кое-что о стройке, которая началась в мае 2022 года.

Во-первых хочу сказать, что проект был смоделирован мной в начале 2022 года, как альтернатива небольшого, но стильного дачного дома.

-3

После подписания договора с Заказчиком приступили к проектированию конструктивной части проекта. Срок проектирования - 4 дня.

-4

-5

-6

-7

Габариты дома небольшие, но количество свай приличное :) 20 штук, диаметр сваи - 108 мм, длина - 2,5 метра.

-8

Для силового каркаса была использована строганная доска камерной сушки 45х140 мм, а для перегородок 45х90 мм.

-9
-10

По традиции в качестве черновых полов используем оцинкованную сетку от грызунов по обрешётке из доски 25х100 мм, с шагом 250 мм.

-11

Силовой каркас был собран за 3 дня. В бригаде три человека, поэтому все быстро и оперативно:)

Отделка снаружи - вагонка хвойных пород, класса "А,В", которая была окрашена в два слоя финской краской от компании Tikkurila Valtti Color, цвет - 3134. Предварительно фасад был прогрунтован антисептиком Tikkurila Valtti Primer.

-13

-14

Кровельный материал - профнастил, т.0,5 мм. Цвет - темный графит (RAL 7024).

-15

Свесы кровли - 500 мм.

-16

Срок строительства дома с учетом покраски составил - 12 дней.

И вот такой красивец в итоге у нас получился.

-17

Обналичка окон из строганной доски 18х100 мм.

-18

Внутренняя отделка также вагонка, класса "А,В". Внутри производилась покраска составами на водной основе.

Стены и потолок были окрашены - Tikkurila Paneeli-Ässä 10.

Полы - Symphony Hardwood aqua.

-19

-20

-21

Друзья, а на этом все.

Ниже отзыв наших дорогих Заказчиков и таймлапс по дому.

Более подробно о стоимости и комплектации можно ознакомится на сайте:

https://skvlasov.ru/stroitelstvo-domov-hotkovo.html