Найти в Дзене

Кухня-гостиная в современном стиле. Пример с реальными фото

Интерьер кухни-гостиной для большой семьи с угловой кухней и музыкальным центром В этом проекте перед нами стояла важная задача: сделать в квартире место, в котором было бы комфортно проводить время заказчикам и их семье. Привет! Меня зовут Карен Карапетян, я — архитектор и интерьерный дизайнер. Мы в компании Alexander Tischler проектируем и реализуем интерьеры, а также проектируем и производим корпусную мебель. Планировка кухни-гостиной Заказчики часто принимают гостей, поэтому нужно было организовать место для комфортного отдыха с семьей. Застройщик предполагал обособленные кухню и гостиную, мы объединили их с коридором, который вел из прихожей в спальни. После объединения получилось большое светлое пространство площадью 55,5 м². Компоновка кухни-гостиной Здесь мы поставили низкие широкие диваны, и разместили их рядом, чтобы можно было собраться с семьей и посмотреть фильм на большом экране. Один из самых сложных узлов этой квартиры — это ТВ-тумба, ее нужно было сделать красивой и фу
Оглавление

Интерьер кухни-гостиной для большой семьи с угловой кухней и музыкальным центром

В этом проекте перед нами стояла важная задача: сделать в квартире место, в котором было бы комфортно проводить время заказчикам и их семье.

Привет! Меня зовут Карен Карапетян, я — архитектор и интерьерный дизайнер. Мы в компании Alexander Tischler проектируем и реализуем интерьеры, а также проектируем и производим корпусную мебель.

Современная кухня-гостиная
Современная кухня-гостиная

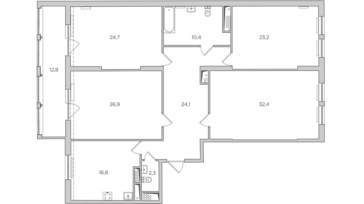
Планировка кухни-гостиной

Заказчики часто принимают гостей, поэтому нужно было организовать место для комфортного отдыха с семьей. Застройщик предполагал обособленные кухню и гостиную, мы объединили их с коридором, который вел из прихожей в спальни. После объединения получилось большое светлое пространство площадью 55,5 м².

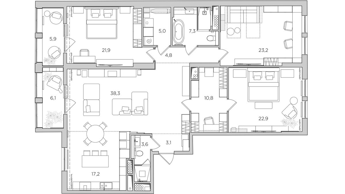
Компоновка кухни-гостиной

Здесь мы поставили низкие широкие диваны, и разместили их рядом, чтобы можно было собраться с семьей и посмотреть фильм на большом экране.

Глубокие диваны в гостиной
Глубокие диваны в гостиной

Один из самых сложных узлов этой квартиры — это ТВ-тумба, ее нужно было сделать красивой и функциональной. Вместе с этим в ней нужно было разместить тонну разной техники и проводов. Над тумбой мы смонтировали подвесную полку на кронштейнах для лазерного проектора, который выводит изображение на 120 дюймовый экран.

Подвесная ТВ тумба
Подвесная ТВ тумба

В гостиной установили девятиканальный музыкальный центр со встроенными потолочными колонками над диванами, чтобы семья могла максимально погрузиться в просмотр кино.

Девятиканальный музыкальный центр
Девятиканальный музыкальный центр

Мы смонтировали систему приточной вентиляции и кондиционирования, с ней в квартиру поступает очищенный воздух нужной температуры. Система занимает много места, поэтому в зоне бывшего коридора потолок ниже, чем в остальной гостиной. Воздух поступает через тонкие решетки под потолком.

Система приточной вентиляции
Система приточной вентиляции

Стену между прихожей и гостиной мы оформили ступенчатыми панелями с подсветкой. Панели выполнены в такой же отделке, как и большинство мебели в этом интерьере — в шпоне тонированного дуба.

Кухонный гарнитур в шпоне дуба
Кухонный гарнитур в шпоне дуба

Свет от окна днем и вертикальная подсветка вечером дополнительно выделяют текстуру шпона. Благодаря этим панелям кухонные пеналы сливаются со стенами и выглядят, как монолитная стена. Такой деревянный «куб» особенно эффектно выделяется на фоне светлых стен.

Деревянные ступенчатые панели
Деревянные ступенчатые панели

В этой квартире есть на что еще посмотреть: мы организовали главную спальню с гардеробной и кабинет, который легко трансформируется в детскую комнату. Посмотреть дополнительные фотографии, планировку и ознакомиться со сметой этого интерьера вы можете на странице проекта.

А узнать подробное устройство угловой кухни из этого интерьера вы можете в этой статье.