Добавить в корзинуПозвонить
Найти в Дзене

Уютный дом для большой семьи с с бильярдной

Вместительный вариант дома «Инсайдер 2» рассчитан на постоянное проживание большой семьи. Это поистине уникальный вариант для тех, кто давно мечтал собрать всю семью под одной крышей, обеспечив каждому домочадцу максимально комфортные условия. Стены фасада выкрашены в нежный лавандовый цвет. Эркеры обшиты облицовочным кирпичом, а балконы и терраса ограждены изящными кованными перилами. Крыша также покрыта черепицей светлого серого цвета. Планировка Площадь дома - 241 кв.м.
Габариты - 11.9 x 11.9 м. На первом этаже размещены прихожая, ведущая в холл. Холл ведет в две жилые комнаты слева и в гостиную, кухню и санузел – справа. На втором этаже расположены еще четыре спальни, бильярдная, раздельный санузел и холл. ⭐Чтобы узнать стоимость проекта и стоимость строительства дома проходите по ссылке => проект «Инсайдер 2» => оставляйте заявку или связывайтесь с нашими менеджерами. 🏠Мы поможет вам обрести дом мечты: уютный, теплый, комфортный. Доработаем проект и реализуем его из выбранных м

Вместительный вариант дома «Инсайдер 2» рассчитан на постоянное проживание большой семьи. Это поистине уникальный вариант для тех, кто давно мечтал собрать всю семью под одной крышей, обеспечив каждому домочадцу максимально комфортные условия.

Стены фасада выкрашены в нежный лавандовый цвет. Эркеры обшиты облицовочным кирпичом, а балконы и терраса ограждены изящными кованными перилами. Крыша также покрыта черепицей светлого серого цвета.

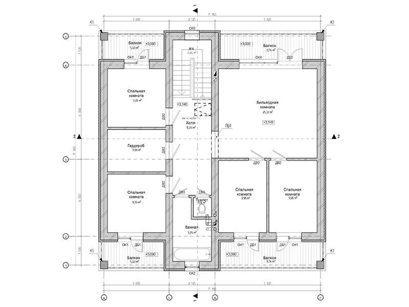
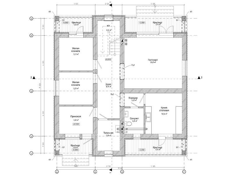
Планировка

Площадь дома - 241 кв.м.
Габариты - 11.9 x 11.9 м.

На первом этаже размещены прихожая, ведущая в холл. Холл ведет в две жилые комнаты слева и в гостиную, кухню и санузел – справа. На втором этаже расположены еще четыре спальни, бильярдная, раздельный санузел и холл.

⭐Чтобы узнать стоимость проекта и стоимость строительства дома проходите по ссылке => проект «Инсайдер 2» => оставляйте заявку или связывайтесь с нашими менеджерами.

🏠Мы поможет вам обрести дом мечты: уютный, теплый, комфортный. Доработаем проект и реализуем его из выбранных материалов: кирпича, блоков, дерева или применим каркасную технологию.

Выбирайте проект дома вашей мечты на нашем сайте
stone-wood-house.ru

Любой из проектов мы готовы доработать по индивидуальным пожеланиям. Оставьте заявку, и наши специалисты свяжутся с вами, чтобы обсудить подробности.

⭐Приглашаем Вас посетить наши строящиеся дома, чтобы Вы могли вживую оценить профессионализм, компетентность и ответственность нашей компании.

Позвоните нам для консультации: 8-965-199-61-04

Также советуем зайти на наш сайт stone-wood-house.ru

Будем благодарны за обратную связь!

#проектдома #проектирование #коттедж #строимдом #строительствоиремонт #ремонт #недвижимость #строительство #загороднаянедвижимость #проекты загородного дома #проект частный дом #загородные дома проекты #проектдома #двухэтажный дом #проектдвухэтажногодома #резиденция #коттедж #архитектор #дизайн #проектодноэтажногодома #одноэтажный проект # дома с террасами #дома 5 спальни #загородныйдом #двухэтажный дом #загородныйдом #резиденция #архитектор #дизайн