Добавить в корзинуПозвонить
Найти в Дзене

Коридоры в планировках

Хотя коридоры являются стандартным элементом в большинстве планировок, зачастую это бесполезное помещение. Коридоры представляют собой пространство, которое не имеет функции, кроме того, как связывать различные комнаты в доме. Коридоры занимают место, которое могло бы быть использовано для других целей. Отличным решением будет использовать зал проходным помещением то есть доступ в основные помещения (спальни кабинет и тд) будет из центрального помещения— гостинной (living room), а коридор сделать минимального размера например: прихожая и пару квадратных метров как на фото с первой планировкой. Стоит помнить еще о том что цена квадратного метра коридора такая же как и у спальни или зала, так что чем меньше коридор тем выгоднее реализация проекта. “Отличным” примером будет планировка на фото со второй планировкой, тут коридор просто отнимает от кухни/зала по меньшей мере 10 квадратных метров, он темные и помимо доступа к комнатам ничего не дает, если убрать левую стенку коридора (центра

Хотя коридоры являются стандартным элементом в большинстве планировок, зачастую это бесполезное помещение. Коридоры представляют собой пространство, которое не имеет функции, кроме того, как связывать различные комнаты в доме.

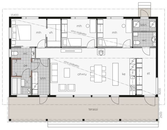
Первая планировка
Первая планировка

Коридоры занимают место, которое могло бы быть использовано для других целей. Отличным решением будет использовать зал проходным помещением то есть доступ в основные помещения (спальни кабинет и тд) будет из центрального помещения— гостинной (living room), а коридор сделать минимального размера например: прихожая и пару квадратных метров как на фото с первой планировкой. Стоит помнить еще о том что цена квадратного метра коридора такая же как и у спальни или зала, так что чем меньше коридор тем выгоднее реализация проекта.

Вторая планировка
Вторая планировка

“Отличным” примером будет планировка на фото со второй планировкой, тут коридор просто отнимает от кухни/зала по меньшей мере 10 квадратных метров, он темные и помимо доступа к комнатам ничего не дает, если убрать левую стенку коридора (центральную перегородку) то зал станет просторнее и мы ничего не потеряем.

Коридор не самое функциональное помещение в вашем доме и лучше всего это отсутствие коридора.

Для заказа проекта или аудита вашего проекта пишите на почту project.petr@yandex.ru