Добавить в корзинуПозвонить
Найти в Дзене

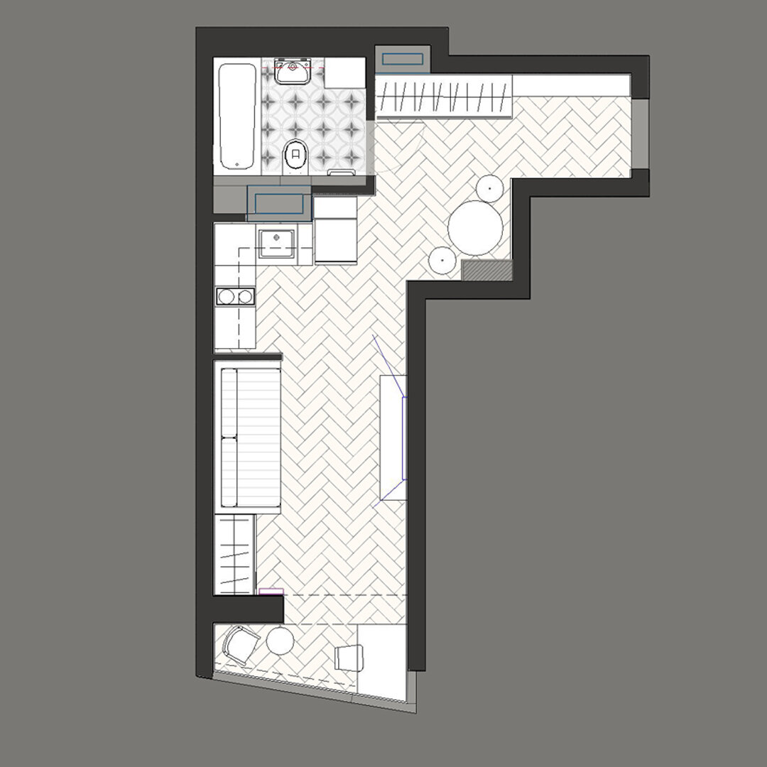
Как в маленькой студии разместить все зоны полноценной квартиры?!

Итак.. 🙋🏻‍♀️Размещение всех зон полноценной квартиры в маленькой студии может быть вызовом, но с правильным планированием и дизайном, это возможно. 🙇🏻‍♀️А особенно, если вы счастливый обладатель не очень удачной (или очень неудачной) планировки квартиры,- мы Вам поможем🤷🏻‍♀️ 🛋️Многофункциональная мебель: Используйте мебель, которая может выполнять несколько функций. Например, раскладной диван может служить как спальное место для ночи, так и сиденьем для дневной зоны. Стол-трансформер можно использовать как рабочее место или обеденный стол. 🧱 Полуперегородки или шкафы-перегородки: Разделите пространство студии на функциональные зоны, используя полуперегородки или шкафы-перегородки. Это поможет создать отдельные области для кухни, спальной зоны и гостиной. 💡Свет и открытость: Используйте светлые оттенки в интерьере, чтобы создать ощущение простора. 🏝️"Зона отдыха" на балконе или в окне: Если у вас есть балкон или большое окно, вы можете создать уютную зону отдыха. Располож
Я смотрю вдаль на ваши идеальные планировки!)
Я смотрю вдаль на ваши идеальные планировки!)

Итак..

🙋🏻‍♀️Размещение всех зон полноценной квартиры в маленькой студии может быть вызовом, но с правильным планированием и дизайном, это возможно. 🙇🏻‍♀️А особенно, если вы счастливый обладатель не очень удачной (или очень неудачной) планировки квартиры,- мы Вам поможем🤷🏻‍♀️

В1
В1

🛋️Многофункциональная мебель: Используйте мебель, которая может выполнять несколько функций. Например, раскладной диван может служить как спальное место для ночи, так и сиденьем для дневной зоны. Стол-трансформер можно использовать как рабочее место или обеденный стол.

В2
В2

🧱 Полуперегородки или шкафы-перегородки: Разделите пространство студии на функциональные зоны, используя полуперегородки или шкафы-перегородки. Это поможет создать отдельные области для кухни, спальной зоны и гостиной.

💡Свет и открытость: Используйте светлые оттенки в интерьере, чтобы создать ощущение простора.

В3
В3

🏝️"Зона отдыха" на балконе или в окне: Если у вас есть балкон или большое окно, вы можете создать уютную зону отдыха. Расположите небольшой столик, кресло или подушки, чтобы создать место для отдыха, чтения или просто наслаждения видом (если в этом вы точно счастливчик😎)

🫵🏼Не забывайте о своих собственных потребностях и предпочтениях при планировании интерьера студии. 

‼️Помните, что ключевое - это максимально использовать пространство и создать функциональные зоны, которые будут соответствовать вашим потребностям.