Добавить в корзинуПозвонить
Найти в Дзене
ЭВАстрой

Проект дома 185 м2 с мансардой, эркером, балконом и террасой

Проект под номером 103–10 — это двухуровневый загородный дом из крупноформатных керамических кирпичей. Площадь строения 185 м2, а габариты -12×8.77 м. Основные преимущества предложения Также отметим наличие цокольного этажа и жилой мансарды, что позволяет выделить общественно-дневную, приватную и хозяйственную зоны. Внешнее оформление традиционное, но за счет цветового контраста кровли и стен дом выглядит ярким и светлым. Грамотно и точно выделены детали, удачно дополняющие общую архитектурную композицию: аркады над крыльцом и террасой, эркеры, большие слуховые окна и фахверковые балконы. Планировка Дом начинается с тамбура, а тамбур в данном проекте размещен в эркере. В нишу встанет гардеробный шкаф, а также останется место для обувных полок и вешалок для верней одежды. Из холла удобно сразу пройти на кухню, а также в санузел и на лестницу, ведущую в нижний и верхний ярус. Рядом с кухней расположена эркерная столовая, а далее — гостиная, где предусмотрены все атрибуты полноце
Проект дома 185 м2 с мансардой, эркером, балконом и террасой - 103-10
Проект дома 185 м2 с мансардой, эркером, балконом и террасой - 103-10

Проект под номером 103–10 — это двухуровневый загородный дом из крупноформатных керамических кирпичей. Площадь строения 185 м2, а габариты -12×8.77 м.

Основные преимущества предложения

  • Использование современных строительных материалов, сочетающих быстроту возведения, экологичность и отличную теплоизоляцию;
  • Применение принципов европейского стиля — практичность, рационализм, сдержанный декор, эффективная планировка
  • Возможность строительства на узких участках.

Также отметим наличие цокольного этажа и жилой мансарды, что позволяет выделить общественно-дневную, приватную и хозяйственную зоны.

Проект дома 185 м2 с мансардой, эркером, балконом и террасой - 103-10
Проект дома 185 м2 с мансардой, эркером, балконом и террасой - 103-10

Внешнее оформление традиционное, но за счет цветового контраста кровли и стен дом выглядит ярким и светлым. Грамотно и точно выделены детали, удачно дополняющие общую архитектурную композицию: аркады над крыльцом и террасой, эркеры, большие слуховые окна и фахверковые балконы.

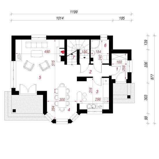
Планировка

Проект дома 185 м2 с мансардой, эркером, балконом и террасой - 103-10
Проект дома 185 м2 с мансардой, эркером, балконом и террасой - 103-10
Проект дома 185 м2 с мансардой, эркером, балконом и террасой - 103-10
Проект дома 185 м2 с мансардой, эркером, балконом и террасой - 103-10

Дом начинается с тамбура, а тамбур в данном проекте размещен в эркере. В нишу встанет гардеробный шкаф, а также останется место для обувных полок и вешалок для верней одежды. Из холла удобно сразу пройти на кухню, а также в санузел и на лестницу, ведущую в нижний и верхний ярус. Рядом с кухней расположена эркерная столовая, а далее — гостиная, где предусмотрены все атрибуты полноценного отдыха: камин, ТВ-центр, мягкая диванная группа и выход на маленькую крытую террасу. Дневное пространство открытое, однако функциональные зоны четко выделены благодаря геометрии стен.

Проект дома 185 м2 с мансардой, эркером, балконом и террасой - 103-10
Проект дома 185 м2 с мансардой, эркером, балконом и террасой - 103-10

Мансарда — территория отдыха. Она включает три удобные, хорошо освещенные спальни с балконами, и общую ванную. Хозяйская комната дополнена гардеробным отсеком и местом для телевизора. В подвал вынесены котельная, прачечная и хозяйственные помещения.

Оформить покупку проекта вы можете на нашем сайте в несколько кликов. После оплаты вам будет выслан полный комплект документов, содержащий информацию об архитектурных, конструктивных и инженерных особенностях здания, а также паспорт проекта. Дополнительно вы можете заказать любые работы в рамках реализации данного проекта или пакет услуг по возведению дома «под ключ».

Для покупки проекта 103–10 оставьте заявку на сайте или свяжитесь с менеджерами «Эвастрой» по контактному телефону +7 (495) 175-30-42.

103-10 – проект европейского двухэтажного узкого дома до 200 кв м