Найти в Дзене
Заметки дизайнера

Как создать стильный и практичный интерьер в разумных пределах? 5 простых, но полезных совета дизайнера

Оглавление

Каждому из нас хочется стильный интерьер, но в разумных пределах. Перед началом ремонта многие задаются вопросом «Как же это сделать?».

Ремонт — это долгий и не бюджетный процесс. Чтобы избежать лишних трат и ошибок, процесс ремонта нужно планировать заранее. Сегодня разберем 5 приемов, которые помогут сделать интерьер не только стильным, но и без лишних затрат в пределах разумного.
Источник: pinterest.com
Источник: pinterest.com

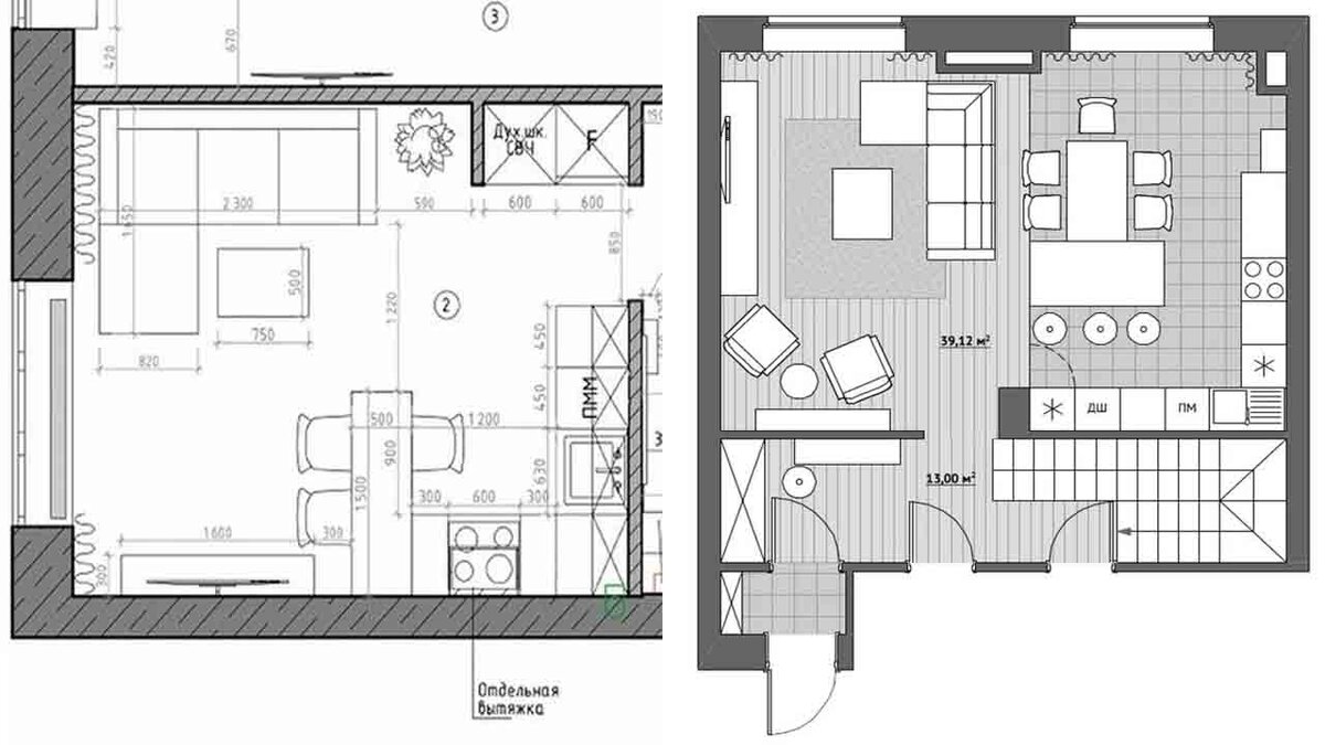
Прием №1: Расставляем всю мебель на плане

Перед началом ремонта в первую очередь расставьте мебель на плане и составьте список мебели для каждой комнаты. Так вы убережете себя от покупки лишнего. Также обратите внимание на габариты вашей комнаты и мебели, мебель следует подбирать подходящую по размерам комнате.

Чтобы самостоятельно создать расстановку мебели, распечатайте планировку вашей квартиры в нескольких экземплярах. После этого создайте несколько вариантов расстановки мебели с учетом потребности и мнения каждого члена семьи.

Источник: pinterest.com
Источник: pinterest.com

Прием №2: Подбираем образец для оформления

Чтобы выбрать стиль интерьера для своей квартиры, нужно посмотреть несколько готовых интерьеров. На основе просмотренного вы поймете к чему у вас лежит душа, а к чему нет.

Практика показывает, что применение готового интерьера в качестве образца помогает оформить квартиру достойно без помощи дизайнера.

Источник: pinterest.com
Источник: pinterest.com

Прием №3: Межкомнатные двери с наличниками вместо скрытых дверей

В современных интерьерах в большинстве случаев устанавливают двери скрытого монтажа. На самом деле двери с наличниками обойдутся дешевле и не потребуют на черновом этапе ремонта дополнительных работ с дверной коробкой.

Чтобы интерьер выглядел современно, выбирайте двери без филенок с ровными и гладкими фасадами.
Источник: pinterest.com
Источник: pinterest.com

Прием №4: Практичные системы хранения

Для организации стильной и практичной системы хранения выбирайте шкафы с распашными дверцами и ровными фасадами без зеркал.

Если подобрать фасады шкафа в цвет стен, то появится зрительный эффект отсутствия шкафа, так комната будет казаться просторнее.

Если хотите сделать акцент, то выбирайте шкаф с фасадами под дерево. Шкафы до потолка тоже визуально расширяют пространство.

Источник: pinterest.com
Источник: pinterest.com

Прием №5: Доступные, но качественные материалы и мебель

Для оформления стильного интерьера необязательно прибегать только к дорогим материалам и мебели. Сегодня на рынке существует немало российских брендов, которые хорошо себя зарекомендовали. Например, российский керамогранит обойдется от 1500 до 2000 рублей за 1кв.м, а испанская плитка вдвое-втрое дороже. Разницы после ремонта вы не увидите, а итоговая стоимость будет хорошо отличаться.

Источник: pinterest.com
Источник: pinterest.com

Выводы

  • Перед началом ремонта обязательно расставьте на плане всю мебель, после подбирайте интерьер в качестве образца для будущей квартиры.
  • Оформлять квартиру по последним трендам не лучшая затея. Многие решения в течении обживания могут оказаться непрактичными.
  • При выборе мебели и отделочных материалов ознакомьтесь с российскими производителями, чье качество не уступает европейским.

Читайте также: