Добавить в корзинуПозвонить
Найти в Дзене

Проект "МАРС" 220 м2 двухэтажного дома с 4 спальнями, гаражом и 4-мя гардеробными

Основная форма дома в плане - идеальный квадрат. В глубине гаража - котельная. Связь гаража с домом через тамбур-гардероб. На внутреннем дворике - терраса вдоль всего фасада. Гостевая комната - однозначно присутствует. Большая прихожая - как многие просят. Широкое крыльцо - для спасения от осадков. Из котельной есть дополнительный выход на задний дворик. 3 спальни и 2 гардеробных с большой ванной на этаже. Симметричное расположение оконных проёмов по всем фасадам. Вальмовая форма 4-х скатной крыши. Отделка единым цветом кирпича. Окна в пол отсутствуют, но слегка занижены. Есть сайт с готовыми проектами ТУТ.
3D Визуализация №1
3D Визуализация №1

Основная форма дома в плане - идеальный квадрат.

В глубине гаража - котельная.

Связь гаража с домом через тамбур-гардероб.

На внутреннем дворике - терраса вдоль всего фасада.

Гостевая комната - однозначно присутствует.

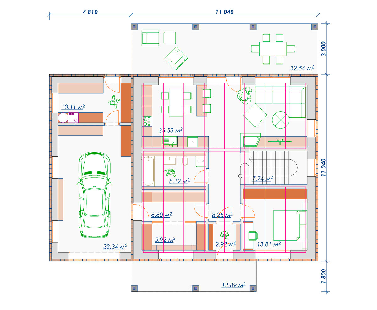
Планировка первого этажа
Планировка первого этажа

Большая прихожая - как многие просят.

Широкое крыльцо - для спасения от осадков.

Из котельной есть дополнительный выход на задний дворик.

Планировка второго этажа
Планировка второго этажа

3 спальни и 2 гардеробных с большой ванной на этаже.

3D Визуализация №2
3D Визуализация №2

Симметричное расположение оконных проёмов по всем фасадам.

3D Визуализация №3
3D Визуализация №3

Вальмовая форма 4-х скатной крыши.

3D Визуализация №4
3D Визуализация №4

Отделка единым цветом кирпича.

3D Визуализация №5
3D Визуализация №5

Окна в пол отсутствуют, но слегка занижены.

3D Визуализация №6
3D Визуализация №6

Есть сайт с готовыми проектами ТУТ.