Добавить в корзинуПозвонить
Найти в Дзене
Филдс

Как дизайнер оформила крошку-студию 21 м² в дореволюционном доме: фото до и после

Дизайнер Екатерина Шейн оформила маленькую студию площадью всего 21 м² в петербургском Доходном доме М. Е. Егорова, который стал частью программы реновации в 2022 году. Квартира предназначается для сдачи в краткосрочную аренду. Интерьер выполнили в современном стиле с элементами неомемфиса. Планировка до и после Площадь комнаты составляет всего 11 м2. Чтобы сохранить больше пространства в жилой зоне, кухню решили вынести в коридор. Для этого сдвинули вход в санузел и возвели перегородку, которая сформировала нишу под гарнитур и отделила его от прихожей. Фото до ремонта Жилая комната Стены выкрасили в светло-серый оттенок, а потолок — в насыщенный голубой. При этом цвет спускается на стены, границу обозначили коралловым молдингом. Такое решение позволило нивелировать ощущение колодца, которое возникало из-за сочетания скромной площади и высокого потолка. Над изголовьем кровати кант под потолком оформили рельефными панелями, которые делают отделку более динамичной и насыщенной разными
Оглавление

Дизайнер Екатерина Шейн оформила маленькую студию площадью всего 21 м² в петербургском Доходном доме М. Е. Егорова, который стал частью программы реновации в 2022 году. Квартира предназначается для сдачи в краткосрочную аренду. Интерьер выполнили в современном стиле с элементами неомемфиса.

  • Общая площадь: 21 м²
  • Место: Санкт-Петербург
  • Тип дома: Доходный дом М. Е. Егорова 1912 года постройки
  • Количество комнат: студия
  • Высота потолка: 3,3 м
  • Кто здесь живет: для сдачи в краткосрочную аренду
  • Дизайнер: Екатерина Шейн
  • Фото: Кристина Плеер

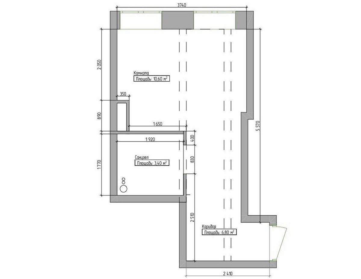
Планировка до и после

Площадь комнаты составляет всего 11 м2. Чтобы сохранить больше пространства в жилой зоне, кухню решили вынести в коридор. Для этого сдвинули вход в санузел и возвели перегородку, которая сформировала нишу под гарнитур и отделила его от прихожей.

Фото до ремонта

Жилая комната

Стены выкрасили в светло-серый оттенок, а потолок — в насыщенный голубой. При этом цвет спускается на стены, границу обозначили коралловым молдингом. Такое решение позволило нивелировать ощущение колодца, которое возникало из-за сочетания скромной площади и высокого потолка.

-3

Над изголовьем кровати кант под потолком оформили рельефными панелями, которые делают отделку более динамичной и насыщенной разными фактурами. Плинтусы тоже выкрасили в тон потолку.

-4

В нише справа от постели создали яркие коралловые блоки, их выполнили в виде арок, сделав отсылку к стилю неомемфис. Выкрасы перекликаются с молдингами по периметру потолка. В этой зоне предусмотрели лаконичные полки для декора и других мелочей, а также зеркало, которое повторяет силуэт цветной арки.

-5

Акцентную коралловую гамму дополняют оконные откосы и обивка кровати. В изножье организовали ТВ-зону и разместили лаконичную обеденную группу.

Кухня

Нижнюю часть гарнитура и фасады приобрели в Леруа Мерлен. В одном из напольных шкафов скрыли мини-холодильник. Верхний ярус выполнили на заказ, внутри предусмотрели отдельную полку под микроволновку. Благодаря белому цвету кухни и вертикальной плитке на фартуке в тон вся конструкция не привлекает много внимания.

Прихожая и коридор

Коридор отделали тем же образом, что и комнату. В углу поставили шкаф для хранения вещей и хозяйственных принадлежностей. Внутри также есть секции для гладильной доски и стиральной машины.

Санузел

В отделке санузла сочетали покраску и вертикальную белую плитку, которой оформили мокрые зоны. Потолок тоже выкрасили в голубой, а пол уложили плиткой с рисунком терраццо, который объединяет основные цвета интерьера. Черный профиль душевой перегородки, рама зеркала, полотенцесушитель и другие детали оттеняют светлую отделку. Для хранения предусмотрели шкаф над инсталляцией и небольшую полку под раковиной.

Интересные мнения в комментариях приветствуются. Если материал понравился — ставь лайк!

🖤 Филдс — это не только блог на Дзене, но и магазин дизайнерских предметов интерьера. Заходите на сайт, чтобы увидеть мебель, которую дизайнеры выбирают для своих проектов.