Добавить в корзинуПозвонить
Найти в Дзене
ЭВАстрой

Проект двухэтажного дома 207 м2 с гаражом и террасой

Прямые формы, плоская кровля, бело-коричневый фасад и обширное остекление — характерные черты дома, представленного в проекте 103–56. Как и большинство зданий в стиле хай-тек, он отличается смелой архитектурой, ярким и нестандартным обликом. ТЕХНИЧЕСКИЕ РЕШЕНИЯ И ДИЗАЙН Общая площадь строения — 207 м2. Кроме жилых помещений, запланирована терраса и одноместный гараж. Еще одно авто может разместиться у входа под навесом, образованным выступающим верхним блоком. Для несущих стен предусмотрены пористые керамические блоки. Однако в качестве основного строительного материала допустимо использовать обычный полнотелый кирпич. Ведущий цвет отделки — белый, как и в большинстве современных архитектурных направлений. При этом белый цвет, как и черный, относится к классике, а потому не потеряет актуальность даже через десятилетия. ПЛАНИРОВКА Дневная зона — гостиная и столовая — это очень много света и воздуха благодаря двум полностью прозрачным стенам. Домашний кинотеатр, установленный н
Оглавление
Проект двухэтажного дома 207 м2 с гаражом и террасой - 103-56
Проект двухэтажного дома 207 м2 с гаражом и террасой - 103-56

Прямые формы, плоская кровля, бело-коричневый фасад и обширное остекление — характерные черты дома, представленного в проекте 103–56. Как и большинство зданий в стиле хай-тек, он отличается смелой архитектурой, ярким и нестандартным обликом.

Проект двухэтажного дома 207 м2 с гаражом и террасой - 103-56
Проект двухэтажного дома 207 м2 с гаражом и террасой - 103-56

ТЕХНИЧЕСКИЕ РЕШЕНИЯ И ДИЗАЙН

Общая площадь строения — 207 м2. Кроме жилых помещений, запланирована терраса и одноместный гараж. Еще одно авто может разместиться у входа под навесом, образованным выступающим верхним блоком.

Для несущих стен предусмотрены пористые керамические блоки. Однако в качестве основного строительного материала допустимо использовать обычный полнотелый кирпич. Ведущий цвет отделки — белый, как и в большинстве современных архитектурных направлений. При этом белый цвет, как и черный, относится к классике, а потому не потеряет актуальность даже через десятилетия.

ПЛАНИРОВКА

Проект двухэтажного дома 207 м2 с гаражом и террасой - 103-56
Проект двухэтажного дома 207 м2 с гаражом и террасой - 103-56

Дневная зона — гостиная и столовая — это очень много света и воздуха благодаря двум полностью прозрачным стенам. Домашний кинотеатр, установленный на специально отведенном месте, побуждает собраться всей семьей перед широким экраном. Раздвижное окно ведет на террасу; из-за обилия стекла граница между внутренней и внешней частью дома практически незаметна. Рядом с гостиной кухня с кладовой, причем «горячие зоны» — камин и электроплита — обустроены смежно.

Со стороны левого фасада обустроена мастер-спальня с прозрачной передней стеной. Дополнением к жилой комнате служит гардеробная, санузел с душем и ванной, а также маленькая приватная терраса, размер которой позволяет поставить двухместный столик и наслаждаться утренним кофе на природе.

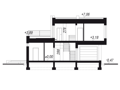
Технический блок между спальней и гостиной включает кухню с кладовой, санузел мастер-спальни, гостевой туалет и гардеробную. Снаружи техблок задекорирован панелями древесного цвета.

Проект двухэтажного дома 207 м2 с гаражом и террасой - 103-56
Проект двухэтажного дома 207 м2 с гаражом и террасой - 103-56

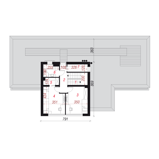
Второй этаж включает две спальни, гардеробную и полноценный санузел. Таким образом, комнаты родителей и детей расположены на разных этажах, что позволяет создать личное пространство для всех членов семьи.

Для покупки проекта 103–56 оставьте заявку на сайте или свяжитесь с менеджерами «Эвастрой» по контактному телефону +7 (495) 175-30-42.

103-56 – проект двухэтажного узкого дома c гаражом до 200 кв м