Добавить в корзинуПозвонить
Найти в Дзене

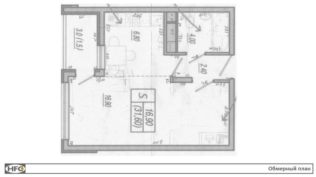
Студия 29кв.м. Стоимость проекта 8500.-

Семья планирует использовать квартиру-студию не для постоянного проживания, а как гостевую, для отдыха. Поэтому все основные функции - сон, приготовление пищи, хранение спланированы не в полном объёме, но достаточном, чтобы комфортно проводить время. Для обустройства спальни сооружаем подиум для матраса, отгораживаем спальное место от прихожей. При необходимости в подиум для кровати можно вмонтировать выдвижной ящик для постельного белья, домашнего текстиля. Четыре зоны студии: прихожая, кухня, гостиная, спальня спланированы в гурманской бисквитно-сливочно-кофейно-шоколадной гамме)))) Приятного обустройства Вашей семье, Елена!
Экспресс-дизайн интерьера 26кв.м. Стоимость проекта 8500.-
Экспресс-дизайн интерьера 26кв.м. Стоимость проекта 8500.-

Семья планирует использовать квартиру-студию не для постоянного проживания, а как гостевую, для отдыха. Поэтому все основные функции - сон, приготовление пищи, хранение спланированы не в полном объёме, но достаточном, чтобы комфортно проводить время.

Для обустройства спальни сооружаем подиум для матраса, отгораживаем спальное место от прихожей.

При необходимости в подиум для кровати можно вмонтировать выдвижной ящик для постельного белья, домашнего текстиля.

Четыре зоны студии: прихожая, кухня, гостиная, спальня спланированы в гурманской бисквитно-сливочно-кофейно-шоколадной гамме))))

Приятного обустройства Вашей семье, Елена!