Добавить в корзинуПозвонить
Найти в Дзене
Новый очаг

Однушка со спальней в 10 м² и подвесным креслом на балконе. Как здесь всё уместилось?

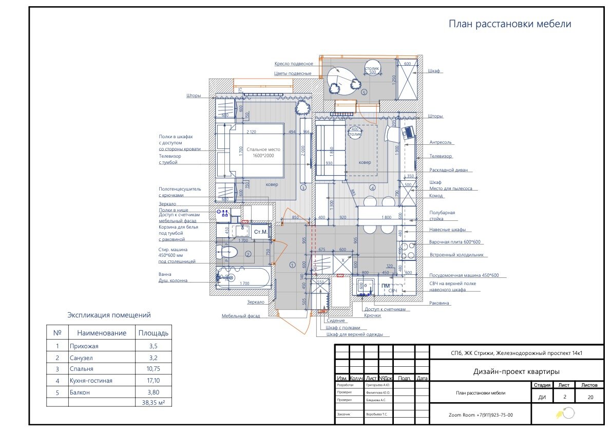
Дизайнеры показывают, как можно оформить небольшое простанство на примере проекта однокомнатной квартиры общей площадью 38 м². Когда к нам обращаются владельцы маленьких квартир и говорят, что не знают, как все разместить и как организовать места для хранения, мы их успокаиваем и легко создаем из этих небольших квартир вместительные пространства. Совсем недавно мы разработали и реализовали дизайн-проект однокомнатной квартиры, площадью 38 кв.м. в новостройке недалеко от центра Санкт-Петербурга. Квартира нам досталась с чистовой отделкой от застройщика, но в результате были оставлены только напольное покрытие в спальне и плитка в ванной комнате. Сначала мы демонтировали дверной проем, ведущий в гостиную-кухню и расширили тем самым проход из коридора в комнату до самого потолка. В коридоре предусмотрели вместительный шкаф. Основной фишкой организации пространства здесь является то, что шкаф из коридора переходит единой конструкцией в кухню, а за фасадами организовано вместительное хран

Дизайнеры показывают, как можно оформить небольшое простанство на примере проекта однокомнатной квартиры общей площадью 38 м².

    Однушка со спальней в 10 м² и подвесным креслом на балконе. Как здесь всё уместилось?
Однушка со спальней в 10 м² и подвесным креслом на балконе. Как здесь всё уместилось?

Когда к нам обращаются владельцы маленьких квартир и говорят, что не знают, как все разместить и как организовать места для хранения, мы их успокаиваем и легко создаем из этих небольших квартир вместительные пространства.

Совсем недавно мы разработали и реализовали дизайн-проект однокомнатной квартиры, площадью 38 кв.м. в новостройке недалеко от центра Санкт-Петербурга. Квартира нам досталась с чистовой отделкой от застройщика, но в результате были оставлены только напольное покрытие в спальне и плитка в ванной комнате.

   Эту квартиру хозяева планировали сдавать в аренду, поэтому было очень важно предусмотреть как можно больше мест для хранения вещей, ведь это основная «боль» владельцев. Фото пресс-службы
Эту квартиру хозяева планировали сдавать в аренду, поэтому было очень важно предусмотреть как можно больше мест для хранения вещей, ведь это основная «боль» владельцев. Фото пресс-службы

Сначала мы демонтировали дверной проем, ведущий в гостиную-кухню и расширили тем самым проход из коридора в комнату до самого потолка. В коридоре предусмотрели вместительный шкаф.

   Шкаф из коридора переходит единой конструкцией в гостиную-кухнюФото пресс-службы
Шкаф из коридора переходит единой конструкцией в гостиную-кухнюФото пресс-службы

Основной фишкой организации пространства здесь является то, что шкаф из коридора переходит единой конструкцией в кухню, а за фасадами организовано вместительное хранение со стороны прихожей и встроенный холодильник в кухонной зоне. Смотрится просто великолепно, функционально и лаконично, особенно на небольшой площади.

В гостиной-кухне, мы выделили несколько функциональных зон: кухню со всей необходимой встроенной техникой, обеденную зону в виде стола - барной стойки, зону отдыха с диваном и ТВ, и рабочую зону с письменный столом.

   В каждой зоне предусмотрены различные сценарии освещения для комфортного пребывания.Фото пресс-службы
В каждой зоне предусмотрены различные сценарии освещения для комфортного пребывания.Фото пресс-службы

На балконе с панорамными окнами разместили зону отдыха с подвесным креслом и большой вместительный шкаф, так как в небольших квартирах дополнительные места хранения никогда не бывают лишними.

   Зона отдыха на балконеФото пресс-службы
Зона отдыха на балконеФото пресс-службы

В небольшой по своей площади, всего 10 кв.м., спальне мы расположили большую удобную кровать, по обе стороны от кровати организовали полноценные закрытые места хранения. Также, в спальне мы предусмотрели большую подвесную тумбу и зону ТВ.

   Боковые открытые полки с подсветкой заменяют функционал прикроватных тумб и настольных ламп.Фото пресс-службы
Боковые открытые полки с подсветкой заменяют функционал прикроватных тумб и настольных ламп.Фото пресс-службы

В ванной создали функциональную зону с раковиной, хранением, скрыли коллекторную зону мебельными фасадами, разместили стиральную машину.

   Фото пресс-службы
Фото пресс-службы

Интерьер квартиры получился максимально располагающим, уютным и комфортным, здесь предусмотрено все самое необходимое для жизни!