Добавить в корзинуПозвонить
Найти в Дзене
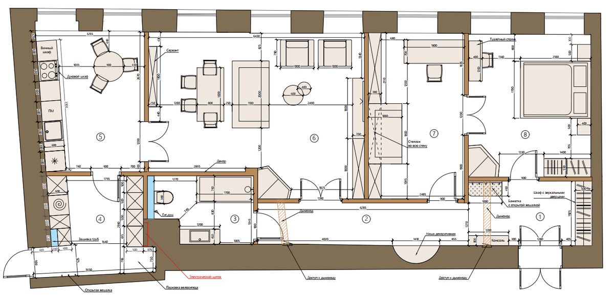
Квартира 25

Финальная планировка

В итоге рассматривали несколько вариантов. 1. Сделать много комнат, просто оставить то что есть. Но хочется и большую гостиную да и смысл делать скворечники. Поэтому соединили маленькую комнату у кухни с большой и получили гостиную-столовую Спален получилось две, одна это кабинет но трансформирующийся в спальню а может и просто спальня, это сложный вопрос, затем столовая-гостиная и большая кухня с обеденной зоной. В квартире нет ванной, но удачно вписали все в огромный коридор. Задний вход превратили в огромный хоз блок с кладовкой, постирочной и гардеробом. В общем смотрим, делимся идеями Печки сохраняем, ремонтируем, и топим дровами зимними вечерами

В итоге рассматривали несколько вариантов.

1. Сделать много комнат, просто оставить то что есть. Но хочется и большую гостиную да и смысл делать скворечники. Поэтому соединили маленькую комнату у кухни с большой и получили гостиную-столовую

Спален получилось две, одна это кабинет но трансформирующийся в спальню а может и просто спальня, это сложный вопрос, затем столовая-гостиная и большая кухня с обеденной зоной.

В квартире нет ванной, но удачно вписали все в огромный коридор.

Задний вход превратили в огромный хоз блок с кладовкой, постирочной и гардеробом.

В общем смотрим, делимся идеями

Печки сохраняем, ремонтируем, и топим дровами зимними вечерами