Добавить в корзинуПозвонить
Найти в Дзене
Филдс

Интерьер для жизни в реальном мире, а не в инстаграме: евродвушка 44 м² в стиле неоклассика для женщины

Дизайнеры Мария Поветкина и Юлия Парфенова из студии Domovoy Design оформили евродвушку площадью 44 м² для женщины. Хозяйка просила вписать в новый интерьер люстры, которые у нее уже имелись. Именно они во многом послужили отправной точкой в создании концепции. Так, за основу взяли неоклассический стиль. Планировка до и после В ходе небольшой перепланировки в глубине спальни спроектировали изолированную гардеробную. Чтобы четче зонировать кухню и гостиную в общей зоне, между ними возвели перегородку, которая конструктивно стала частью гарнитура. Кухня-гостиная Для отделки большинства стен использовали английскую краску светлого серо-бежевого оттенка. В тот же цвет выкрасили и карнизы, что помогло зрительно приподнять потолок. Пол в жилых помещениях уложили инженерной доской. В кухне задействовали практичную серую плитку, разные напольные покрытия позволили дополнительно зонировать общее пространство. Обеденная группа из темного дерева немного оттеняет спокойную гамму. Лаконичный дива
Оглавление

Дизайнеры Мария Поветкина и Юлия Парфенова из студии Domovoy Design оформили евродвушку площадью 44 м² для женщины. Хозяйка просила вписать в новый интерьер люстры, которые у нее уже имелись. Именно они во многом послужили отправной точкой в создании концепции. Так, за основу взяли неоклассический стиль.

  • Общая площадь: 44,4 м²
  • Место: Москва
  • Тип дома: ЖК «Черняховского»
  • Количество комнат: евродвушка
  • Высота потолка: 3 м
  • Кто здесь живет: женщина
  • Дизайнеры: Мария Поветкина и Юлия Парфенова (студия Domovoy Design)
  • Фото: Наталья Вершинина

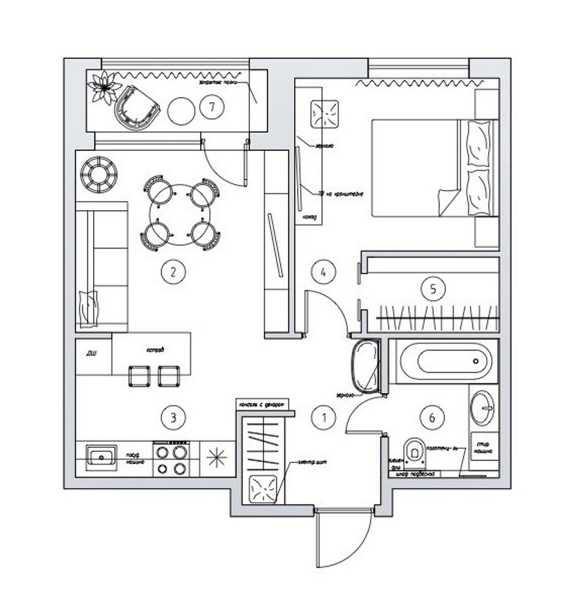
Планировка до и после

В ходе небольшой перепланировки в глубине спальни спроектировали изолированную гардеробную. Чтобы четче зонировать кухню и гостиную в общей зоне, между ними возвели перегородку, которая конструктивно стала частью гарнитура.

Кухня-гостиная

Для отделки большинства стен использовали английскую краску светлого серо-бежевого оттенка. В тот же цвет выкрасили и карнизы, что помогло зрительно приподнять потолок. Пол в жилых помещениях уложили инженерной доской. В кухне задействовали практичную серую плитку, разные напольные покрытия позволили дополнительно зонировать общее пространство.

Обеденная группа из темного дерева немного оттеняет спокойную гамму. Лаконичный диван в светло-серой обивке, оконный текстиль, наоборот, поддерживают нейтральную палитру. Легкие включения цвета обеспечивают декоративные подушки, а также зеленые растения — как живые, так и те, что изображены на картине.

Более броский акцент вносит стена напротив — ее выкрасили в бирюзовый оттенок. Фасады стенки, которая обрамляет телевизор и мини-камин, подобрали в том же насыщенном тоне. Мебельную конструкцию встроили в нишу. Симметричные шкафы с тонированными стеклянными дверцами служат витринами для красивой посуды.

Кухонный гарнитур разбили на два блока и разместили параллельно друг другу. Та часть, которая примыкает к перегородке, выполняет несколько функций: она служит дополнительной рабочей поверхностью, барной стойкой, зонирующим элементом, а также вмещает секции для хранения. Фасады с филенками отсылают к классической эстетике.

Балкон

На балконе, который прилегает к кухне-гостиной, организовали лаунж-зону, которую можно использовать в качестве удобного места для чтения. Стены выкрасили в более насыщенный бирюзовый оттенок, это любимый цвет заказчицы.

-6

Спальня

Спальню также выполнили в бирюзовой гамме, но подобрали более приглушенный оттенок, чтобы слишком активная палитра не перегружала пространство. Цвет стен поддержали потолочными карнизами и текстилем в тон. Участок над изголовьем выделили акцентным панно, его заключили в рамы из молдингов.

В изножье расположили мебельную конструкцию, которая сочетает комод для вещей и рабочий стол. Она перекликается по тону с прикроватными тумбами. Гамму спальни обогатили легкими терракотовыми акцентами — обивкой стула и декоративными подушками.

Гардеробная

К спальне прилегает отдельная гардеробная. Помещение заполнили в основном открытыми секциями для хранения с лаконичными белыми каркасами.

Прихожая

Спокойную серую отделку прихожей оживили вставкой из геометричной напольный плитки, которая создает эффект ковра. Осветительные приборы, рама зеркала и другие детали вносят в нейтральную палитру графичные штрихи. В нишу слева от входа встроили дополнительную систему хранения.

Санузел

В санузле сочетали покраску и несколько видов плитки — с рельефом и без. Под столешницей с интегрированной раковиной разместили тумбу для гигиенических средств и стиральную машину. Для декора и других мелочей предусмотрели открытую полку в зоне над инсталляцией.

Интересные мнения в комментариях приветствуются. Если материал понравился — ставь лайк!

🖤 Филдс — это не только блог на Дзене, но и магазин дизайнерских предметов интерьера. Заходите на сайт, чтобы увидеть мебель, которую дизайнеры выбирают для своих проектов.