Добавить в корзинуПозвонить
Найти в Дзене

Роскошный проект дома в стиле загородной виллы с гаражом и террасой

Современный и комфортабельный дом по проекту "Вилла Оливия" радует своим внешним обликом и продуманной, удобной планировкой внутреннего пространства. Это проект двухэтажного современного дома в европейском стиле с гаражом, панорамными окнами и открытой террасой. Планировка Площадь дома - 231 кв.м.
Габариты - 16.9 x 15.2 м. Внутреннее пространство двухэтажного коттеджа обеспечивает самые комфортные условия для семьи, состоящей из 3-6 человек. Дом поражает безупречностью планировки внутреннего пространства: наиболее удачное зонирование помещений позволяет проводить время с комфортом каждому члену семьи. Отличная новость! При заключении договора на строительство дома в нашей компании, проект индивидуального дома идет вам в подарок. ⭐ Если Вам понравился проект и интересует стоимость проектирования или строительства, оставляйте заявку на сайте или связывайтесь с нашими менеджерами. ✔Смотрите на нашем сайте другие проекты домов с гаражом, проекты домов с террасой Приглашаем Вас на наш сайт

Современный и комфортабельный дом по проекту "Вилла Оливия" радует своим внешним обликом и продуманной, удобной планировкой внутреннего пространства.

Это проект двухэтажного современного дома в европейском стиле с гаражом, панорамными окнами и открытой террасой.

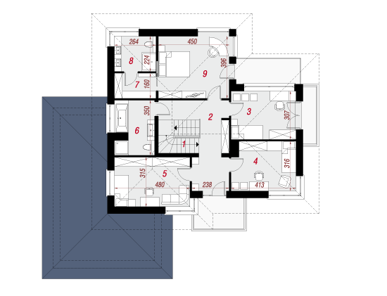
Планировка

Площадь дома - 231 кв.м.
Габариты - 16.9 x 15.2 м.

Внутреннее пространство двухэтажного коттеджа обеспечивает самые комфортные условия для семьи, состоящей из 3-6 человек.

Дом поражает безупречностью планировки внутреннего пространства: наиболее удачное зонирование помещений позволяет проводить время с комфортом каждому члену семьи.

Отличная новость! При заключении договора на строительство дома в нашей компании, проект индивидуального дома идет вам в подарок.

Если Вам понравился проект и интересует стоимость проектирования или строительства, оставляйте заявку на сайте или связывайтесь с нашими менеджерами.

✔Смотрите на нашем сайте другие проекты домов с гаражом, проекты домов с террасой

Приглашаем Вас на наш сайт, где Вас ожидает более 500 современных архитектурных и планировочных решений stone-wood-house.ru

❗❗ Мы возьмем на себя закупку и доставку, оснащение строительной площадки и само строительство «под ключ». Мы подарим Вам дом, о котором Вы всегда мечтали и который прослужит не одному поколению вашей семьи!Готовы ответить на все Ваши вопросы – пишите в комментариях.

⭐ Есть вопросы по проектированию или строительству? Задайте их нашим специалистам в комментариях или по телефону:

8-965-199-61-04

#проектдома #проектирование #коттедж #строимдом #строительствоиремонт #ремонт #недвижимость #строительство #загороднаянедвижимость #проекты загородного дома #проект частный дом #загородные дома проекты #проектдома #двухэтажный дом #проектдвухэтажногодома #резиденция #коттедж #архитектор #дизайн #проектодноэтажногодома #дом с гаражом проекты #одноэтажный проект # дома с террасами #дом с гаражом одноэтажный #загородныйдом #загородныйдом #резиденция #архитектор #дизайн #ремонтвдоме #проектирование #загородные дома проекты #ремонт