Добавить в корзинуПозвонить
Найти в Дзене
Дома №1

Как выглядит дом Ницца 9х9 внутри?

Проект дома «Ницца 9х9» - это двухэтажный дом площадью 164 м2 с грамотной планировкой. В этой статье мы сначала покажем вам сам проект и его планировку, а затем продемонстрируем визуализацию интерьера дома, который мы сделали специально для вас, чтобы вы могли увидеть, как примерно будет выглядеть дом внутри. Проект дома Проект дома "Ницца 9х9" и его стоимость в различных комплектациях Планировка Это наш самый популярный проект дома, который идеально подойдет для постоянного проживания. Он заслуживает особое внимание, так как который год он занимает первое место среди наших заказчиков. Это максимально удобный и удачный дом как с точки зрения планировки, так и с точки зрения подобраной площади. Далее мы продемонстрируем вам интерьер. Интерьер дома На фото ниже вы можете видеть кухню-гостиную. В данном проекте они совмещены, так получилась общая просторная зона для совместного времяпровождения. Кухня Гостиная Наглядно видно, как через панорамные окна попадает много света, а также открыва
Оглавление

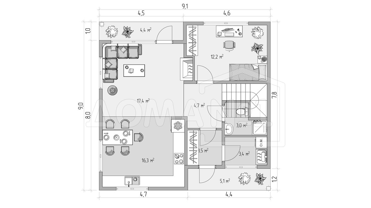
Проект дома «Ницца 9х9» - это двухэтажный дом площадью 164 м2 с грамотной планировкой. В этой статье мы сначала покажем вам сам проект и его планировку, а затем продемонстрируем визуализацию интерьера дома, который мы сделали специально для вас, чтобы вы могли увидеть, как примерно будет выглядеть дом внутри.

Проект дома

Проект дома "Ницца 9х9" и его стоимость в различных комплектациях

Планировка

Это наш самый популярный проект дома, который идеально подойдет для постоянного проживания. Он заслуживает особое внимание, так как который год он занимает первое место среди наших заказчиков. Это максимально удобный и удачный дом как с точки зрения планировки, так и с точки зрения подобраной площади.

Далее мы продемонстрируем вам интерьер.

Интерьер дома

На фото ниже вы можете видеть кухню-гостиную. В данном проекте они совмещены, так получилась общая просторная зона для совместного времяпровождения.

Кухня

https://doma1.ru/catalog/doma/karkasnye-doma/nitstsa/
https://doma1.ru/catalog/doma/karkasnye-doma/nitstsa/

Гостиная

https://doma1.ru/catalog/doma/karkasnye-doma/nitstsa/
https://doma1.ru/catalog/doma/karkasnye-doma/nitstsa/

Наглядно видно, как через панорамные окна попадает много света, а также открываются красивые пейзажи.

https://doma1.ru/catalog/doma/karkasnye-doma/nitstsa/
https://doma1.ru/catalog/doma/karkasnye-doma/nitstsa/

Далее мы поднимаемся на второй этаж и попадаем в мастер-спальню. Здесь также установлены панорамные окна. Посмотрите, как стильно и атмосферно это смотрится, а как же приятно просыпаться в такой спальне и любоваться красотой природы, не вставая с кровати - это отдельное удовольствие!

Мастер-спальня

https://doma1.ru/catalog/doma/karkasnye-doma/nitstsa/
https://doma1.ru/catalog/doma/karkasnye-doma/nitstsa/

Детская комната

https://doma1.ru/catalog/doma/karkasnye-doma/nitstsa/
https://doma1.ru/catalog/doma/karkasnye-doma/nitstsa/

В лестничном проеме мы установили окно. Так при закрытых дверях в комнаты в эту зону попадает естественный свет, а также оно, в целом, придает особый шарм и уют холлу.

Холл на втором этаже

https://doma1.ru/catalog/doma/karkasnye-doma/nitstsa/
https://doma1.ru/catalog/doma/karkasnye-doma/nitstsa/

Хозяйский санузел

https://doma1.ru/catalog/doma/karkasnye-doma/nitstsa/
https://doma1.ru/catalog/doma/karkasnye-doma/nitstsa/

Как вам интерьер?

Нужна помощь в создании проекта дома и дальнейшем строительстве?

Мы будем рады вам помочь!