Найти в Дзене

Проект двухэтажного дома «Миранда»

Представляем проект двухэтажного дома Площадь дома составляет 228.81 м2 Представляем вам проект "Миранда" - роскошный двухэтажный коттедж, который был специально разработан нашими талантливыми архитекторами для комфортного постоянного проживания большой семьи с детьми. Общая площадь этого коттеджа составляет 228,81 м², а также есть просторная терраса площадью 35,66 м².
Проект "Миранда" воплощает в себе стиль и элегантность стиля Райта, что делает его по-настоящему впечатляющим. Каждая деталь этого коттеджа продумана с учетом потребностей большой семьи.
Этот коттедж предлагает много пространства для комфортной жизни. На первом этаже расположена просторная гостиная, где семья может собираться вместе и проводить время. Также на первом этаже есть кухня со всем необходимым оборудованием и удобной столовой зоной.
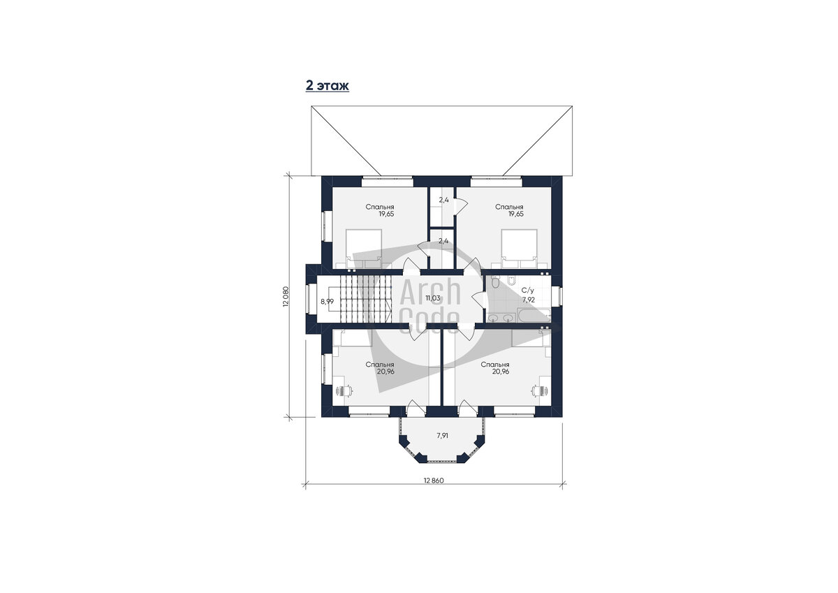
На втором этаже вы найдете спальни, которые предназначены для комфортного отдыха. Каждая спальня просторная и уютная, идеально подходящая для отдыха после долгого дня. Как пост

Представляем проект двухэтажного дома

Площадь дома составляет 228.81 м2

Представляем вам проект "Миранда" - роскошный двухэтажный коттедж, который был специально разработан нашими талантливыми архитекторами для комфортного постоянного проживания большой семьи с детьми. Общая площадь этого коттеджа составляет 228,81 м², а также есть просторная терраса площадью 35,66 м².

Проект "Миранда" воплощает в себе стиль и элегантность стиля Райта, что делает его по-настоящему впечатляющим. Каждая деталь этого коттеджа продумана с учетом потребностей большой семьи.

Этот коттедж предлагает много пространства для комфортной жизни. На первом этаже расположена просторная гостиная, где семья может собираться вместе и проводить время. Также на первом этаже есть кухня со всем необходимым оборудованием и удобной столовой зоной.

На втором этаже вы найдете спальни, которые предназначены для комфортного отдыха. Каждая спальня просторная и уютная, идеально подходящая для отдыха после долгого дня.

Понравился проект? Заказать проект или выбрать подобный можно по телефону: +79323212510. Звоните или пишите. Заявки принимаются по вотцап, телеграмм. Готовы рассчитать для вас смету!

Как построить дом в Тюмени?

Как построить дом в Москве?

Готовые дома в Тюмени

Готовые дома в Москве

Земельные участки в Тюмени

Задать вопрос в ТГ

И подписывайтесь на наш канал, чтобы не пропустить новые интересные проекты.

#проектдома #проектдвухэтажногодома #построитьдом #купитьдом

#двухэтажныйдом #лучшиедвухэтажныедома #дом #новыедома