Добавить в корзинуПозвонить
Найти в Дзене

Проект дома "Сириус" в европейском стиле

Представляем проект Сириус Площадь дома составляет 317.52 м2 Представляем вам проект дома "Сириус" в стиле европейской архитектуры.
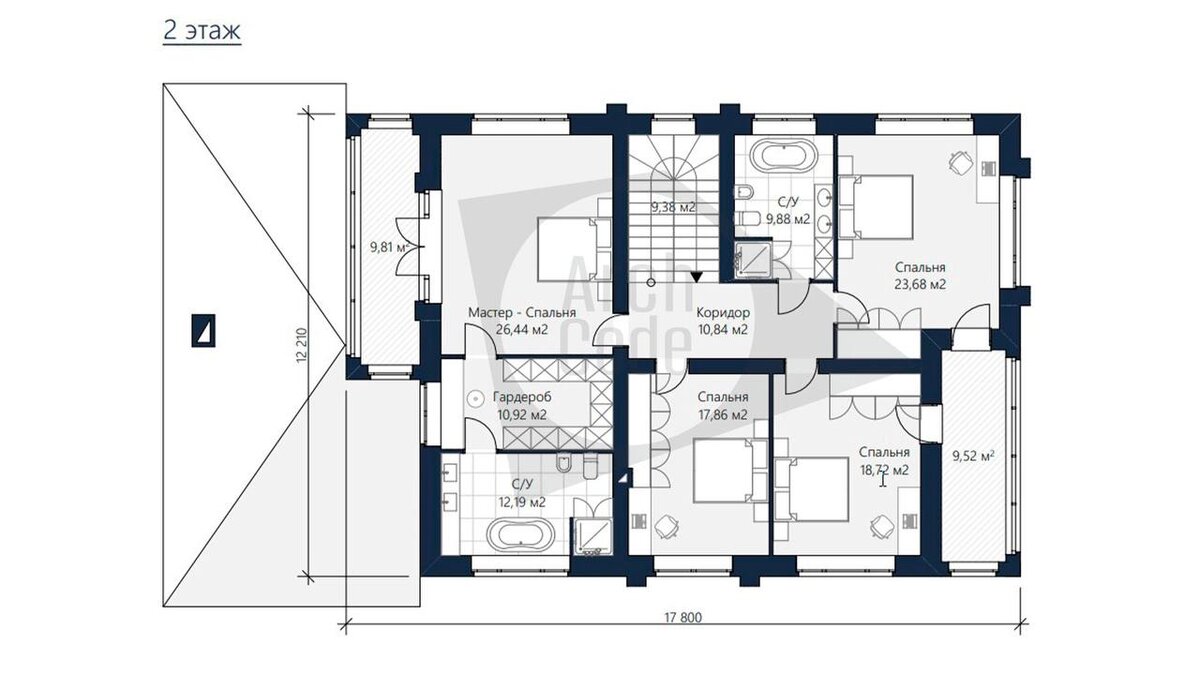
Общая площадь этого коттеджа составляет 317.52 м2, а габариты застройки равны 12.21 х 21.83 м. Внутри дома расположены 5 просторных комнат и 4 санузла. Особое внимание заслуживает кухня-гостиная, площадь которой составляет 62.08 м2.
Проект дома "Сириус" отличается открытой планировкой, где нет места для тесных "коробок", узких коридоров, низких потолков, а также избытка дверей и перегородок. Весь общий пространство максимально свободно от любых ограничений.
Особенностью этого проекта является зона для отдыха, которая включает хаммам, техническое помещение, отдельный санузел, комнату отдыха и просторную кухонную зону. Здесь каждый житель дома сможет насладиться комфортом и уютом, созданными специально для отдыха и релаксации.
Дом "Сириус" воплощает в себе элегантность и функциональность, а также предлагает просторное и свободное пространство для жизни

Представляем проект Сириус

Площадь дома составляет 317.52 м2

Представляем вам проект дома "Сириус" в стиле европейской архитектуры.

Общая площадь этого коттеджа составляет 317.52 м2, а габариты застройки равны 12.21 х 21.83 м. Внутри дома расположены 5 просторных комнат и 4 санузла. Особое внимание заслуживает кухня-гостиная, площадь которой составляет 62.08 м2.

Проект дома "Сириус" отличается открытой планировкой, где нет места для тесных "коробок", узких коридоров, низких потолков, а также избытка дверей и перегородок. Весь общий пространство максимально свободно от любых ограничений.

Особенностью этого проекта является зона для отдыха, которая включает хаммам, техническое помещение, отдельный санузел, комнату отдыха и просторную кухонную зону. Здесь каждый житель дома сможет насладиться комфортом и уютом, созданными специально для отдыха и релаксации.

Дом "Сириус" воплощает в себе элегантность и функциональность, а также предлагает просторное и свободное пространство для жизни и отдыха. Это идеальный выбор для тех, кто ценит качество и комфорт в своем доме.

Понравился проект? Заказать проект или выбрать подобный можно по телефону: +79323212510. Звоните или пишите. Заявки принимаются по вотцап, телеграмм. Готовы рассчитать для вас смету!

Как построить дом в Тюмени?

Как построить дом в Москве?

Готовые дома в Тюмени

Готовые дома в Москве

Земельные участки в Тюмени

Задать вопрос в ТГ

И подписывайтесь на наш канал, чтобы не пропустить новые интересные проекты.

#проектдома #проектодноэтажногодома #построитьдом #купитьдом

#двухэтажныйдом #лучшиедвухэтажныедома #дом #новыедома