Добавить в корзинуПозвонить
Найти в Дзене

Сколько стоит жить в модульном доме?

Существует миф о том, что жизнь в модульном доме очень «дорогая»: высокие счета за электроэнергию и постоянные «поборы» на поселковые нужды. → Давайте разберемся вместе и увидим реальные цифры, которые мы узнали у одного из наших клиентов 💡 Какие расходы стоит ожидать, переезжая в дом? В городской квартире мы привыкли платить за электроэнергию, отопление, воду, газ и общедомовые нужды. Также в этот список можно включить интернет и телевидение. По данным Росстата на 2021 год: среднестатическая семья платит за «коммуналку» чуть больше 5000₽ — около 1500 за отопление, около 1000₽ за воду, 650₽ за электричество и все остальное за прочие нужды. Считается, что в загородном доме к этому списку прибавится огромное количество пунктов. Однако реальность подсказывает: некоторые статьи расходов могут даже исчезнуть!  Наш клиент Давид, живущий в Dacar 51 уже несколько лет, готов поделиться цифрами и фактами об этом доме с панорамными окнами, просторной кухней-гостиной и террасой 🔻 — Сколько
Оглавление

Существует миф о том, что жизнь в модульном доме очень «дорогая»: высокие счета за электроэнергию и постоянные «поборы» на поселковые нужды.

→ Давайте разберемся вместе и увидим реальные цифры, которые мы узнали у одного из наших клиентов 💡

Какие расходы стоит ожидать, переезжая в дом?

В городской квартире мы привыкли платить за электроэнергию, отопление, воду, газ и общедомовые нужды. Также в этот список можно включить интернет и телевидение. По данным Росстата на 2021 год: среднестатическая семья платит за «коммуналку» чуть больше 5000₽ — около 1500 за отопление, около 1000₽ за воду, 650₽ за электричество и все остальное за прочие нужды.

Считается, что в загородном доме к этому списку прибавится огромное количество пунктов. Однако реальность подсказывает: некоторые статьи расходов могут даже исчезнуть! 

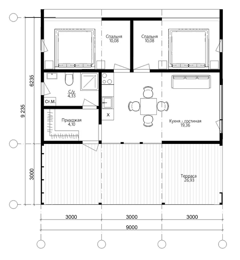
Наш клиент Давид, живущий в Dacar 51 уже несколько лет, готов поделиться цифрами и фактами об этом доме с панорамными окнами, просторной кухней-гостиной и террасой 🔻

-2

— Сколько стоит отапливать модульный дом?

— Это одна из основных статей расходов, потому что мы используем конвекторы. Теплые полы включаем редко, просто не очень нравится. Однако в ванной система «теплый пол» работает с первых до последних морозов, как и греющий кабель на вход воды в дом. Также электроэнергию потребляет бойлер (электрический водонагреватель). 

-3

За электричество с ноября по март я плачу около 7000₽ в месяц. В апреле вышло вообще 3500₽. Летом — около 1000-1500₽. Средние цифры по киловаттам за год:

• День — 7088

• Ночь — 3386 

Тарифы разные, но в среднем по Всеволожскому району сейчас — 5,06₽ и 2,96₽. 

Про то, как устроен модульный дом и почему он потребляет меньше электроэнергии, чем аналоги, читайте в другой нашей статье!

— Сколько уходит на водоснабжение?

— Вода из общей скважины бесплатная, она чистая и подходит для пользования (сейчас это очень частая практика в новых поселках).Нужно лишь электричество на обогрев воды бойлером. 

То есть 0₽ за саму воду, при том, что в городе за такое же количество воды, что нам нужно на семью, приходится отдавать от 700₽ до 1000₽/мес.

— Много ли уходит на обслуживание канализации?

— У нас установлен септик. Его нужно обслуживать 1 раз в год, это стоит примерно 5000-7000₽. Если в семье всего два человека, то можно и 1 раз в 2 года. Главное — следить, чтобы зимой труба септика не была завалена снегом и он мог «дышать». 

Важно: септик нужно не просто откачивать, а еще и чистить, чтобы он служил долго и преданно.

-4

— А как же уход за участком? Сколько уходит на это?

— Это очень индивидуальная статья расходов. Вот, например, законодатели рекомендуют нам экономить на садовых гномах 😁

Однако посадить деревья (если не останется после строительства), газон и кусты — это определенные расходы, да. Но они зависят от ваших желаний и размера участка. Все это можно сделать самостоятельно, отправившись на садовый рынок, или обратиться к специалистам. 

-5

Также зимой встает проблема с уборкой снега. Но часто доброжелательные соседи скидываются и покупают вместе снегоуборочную машину, чтобы тратить меньше сил и времени на прогулки с лопатой. Но вообще физический труд иногда очень полезен!

— Есть ли какие-то ежемесячные платежи в поселке, где вы живете?

— В ТСН/ДНП/СНТ или просто коттеджном посёлке есть свои сборы — ежемесячные или ежеквартартальные. У меня выходит около 2000-3000₽ в месяц. Это обслуживание дорог, общее освещение, чистка снега, вывоз мусора, благоустройство территории и тд.

— Давайте посчитаем сколько у нас получилось в итоге?

— Примерный годовой расчет для дома 51м2 (однако те же цифры могут быть и в доме 65м2):

•Платежи в ТСН — около 24 000₽ 

•Обслуживание септика — 5000-7000₽ 

•Чистая вода — 0₽ 

•Электроэнергия — около 45 887₽

-6

Как вы считаете, это много или мало за дом 51м2? 

Переходите наш наш сайт или в соцсети, чтобы узнать, как мы изготавливаем наши дома и найти больше фотографий:

Москва:

📞 8 (495) 740-09-69

Сайт: https://moscow.letwood.ru  

Санкт-Петербург:

📞 8 (812) 900-00-47

Сайт: https://letwood.ru

НАШИ СОЦСЕТИ:

ВК: https://vk.com/letwoodru  

Instagram: https://instagram.com/letwood.dom

Telegram: https://t.me/letwood