Найти в Дзене

Проект двухэтажного дома «Томпсон»

Представляем проект двухэтажного дома
Площадь дома составляет 150.65 м2 Мы всегда ставим себя на место будущих жителей, чтобы создать максимально комфортные и эргономичные дома. Проект "Томпсон" не является исключением - мы продумали каждую деталь, чтобы радовать его владельцев каждый день.
Например, после трудного рабочего дня вы можете просто заехать в гараж и сразу попасть в дом через прихожую. Прямой проход из гаража в прихожую позволяет избежать лишних выходов на улицу. И в задней части гаража, где находится котельная, имеется дополнительный выход, чтобы жители могли легко пройти в сад, минуя весь дом.
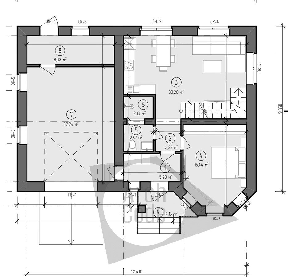
На первом этаже дома располагается прихожая с главным входом и входом из гаража. Затем следует небольшой холл, открывающий двери к основным помещениям. Здесь вы найдете просторную и хорошо освещенную спальню площадью 15 квадратных метров, санузел и гостиную, объединенную с кухней. Общая площадь кухни и гостиной составляет чуть больше 30 квадратных метров, что идеально как для семе

Представляем проект двухэтажного дома
Площадь дома составляет 150.65 м2

Мы всегда ставим себя на место будущих жителей, чтобы создать максимально комфортные и эргономичные дома. Проект "Томпсон" не является исключением - мы продумали каждую деталь, чтобы радовать его владельцев каждый день.

Например, после трудного рабочего дня вы можете просто заехать в гараж и сразу попасть в дом через прихожую. Прямой проход из гаража в прихожую позволяет избежать лишних выходов на улицу. И в задней части гаража, где находится котельная, имеется дополнительный выход, чтобы жители могли легко пройти в сад, минуя весь дом.

На первом этаже дома располагается прихожая с главным входом и входом из гаража. Затем следует небольшой холл, открывающий двери к основным помещениям. Здесь вы найдете просторную и хорошо освещенную спальню площадью 15 квадратных метров, санузел и гостиную, объединенную с кухней. Общая площадь кухни и гостиной составляет чуть больше 30 квадратных метров, что идеально как для семейного отдыха, так и для шумных вечеринок с друзьями.

Второй этаж включает две спальни, большую ванную комнату и просторный холл. Одна из спален полностью идентична спальне на первом этаже, а вторая немного меньше, но так же хорошо освещена окнами, выходящими в сад. Большой холл на этаже может быть обустроен по вашему вкусу - будь то игровая зона, небольшой спортзал или библиотека. Каждая семья сможет создать пространство, которое ближе всего к их потребностям.

Понравился проект? Заказать проект или выбрать подобный можно по телефону: +79323212510. Звоните или пишите. Заявки принимаются по вотцап, телеграмм. Готовы рассчитать для вас смету!

Как построить дом в Тюмени?

Как построить дом в Москве?

Готовые дома в Тюмени

Готовые дома в Москве

Земельные участки в Тюмени

Задать вопрос в ТГ

И подписывайтесь на наш канал, чтобы не пропустить новые интересные проекты.

#проектдома #проектдвухэтажногодома #построитьдом #купитьдом