Добавить в корзинуПозвонить
Найти в Дзене

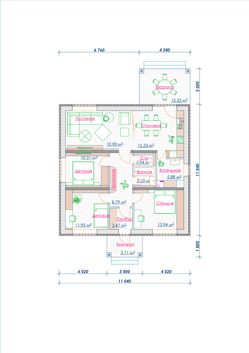
Проект "ТИПОВОЙ" дома 90 м2 с террасой, 3 спальнями, котельной и раздельными ванной и туалетом

Проект дома вменяемой небольшой площади из газосиликатного блока с облицовкой керамическим кирпичом соломенного монотонного цвета. Проект подготовлен для одобрения ипотеки банком. Т.к. сумма кредита невелика, поэтому и такова площадь дома, без излишков. Квадратная в плане форма дома отчетлива видна в том, что конька нет - все хребты сходятся в единую точку. Покрытие только здесь выбрали металлочерепицей - всё таки отходность 10-15к рублей. Лишних площадей абсолютно нет - всё функционально. Только от себя заложил окна чуть больше, чем можно было. Просто я люблю, когда светло) Уверен, такой дом выберут многие, ведь у нас 99,9% людей с таким достатком. Терраса из кухни, не гостиной - чтобы было удобно пиццу и роллы подавать. Благодаря компактному размещению мокрых точек - удобно расположена общая вентиляционная труба над ними. Ещё больше жизненных проектов на сайте.
3D Визуализация №1
3D Визуализация №1

Проект дома вменяемой небольшой площади из газосиликатного блока с облицовкой керамическим кирпичом соломенного монотонного цвета.

Проект подготовлен для одобрения ипотеки банком. Т.к. сумма кредита невелика, поэтому и такова площадь дома, без излишков.

Квадратная в плане форма дома отчетлива видна в том, что конька нет - все хребты сходятся в единую точку.

Покрытие только здесь выбрали металлочерепицей - всё таки отходность 10-15к рублей.

Планировка
Планировка

Лишних площадей абсолютно нет - всё функционально.

3D Визуализация №2
3D Визуализация №2

Только от себя заложил окна чуть больше, чем можно было. Просто я люблю, когда светло)

3D Визуализация №3
3D Визуализация №3

Уверен, такой дом выберут многие, ведь у нас 99,9% людей с таким достатком.

3D Визуализация №4
3D Визуализация №4

Терраса из кухни, не гостиной - чтобы было удобно пиццу и роллы подавать.

3D Визуализация №5
3D Визуализация №5

Благодаря компактному размещению мокрых точек - удобно расположена общая вентиляционная труба над ними.

3D Визуализация №6
3D Визуализация №6

Ещё больше жизненных проектов на сайте.