Добавить в корзинуПозвонить
Найти в Дзене
Инженер ПГС

Участие в проекте: "Проект проходной галереи вдоль подпорной стены"

Принять участие в проекте... Надо быть деловым человеком, смелым, убеждать людей в своей полезности... Хотя я лично никого не убеждаю, потому как не считаю это эффективным. Я главный инженер проекта (ГИП), я специалист, организатор и вдохновитель проекта, поэтому стараюсь собрать вокруг себя хорошую команду исполнителей, стараюсь разобраться во всех обстоятельствах и "выдать на-гора". Все как по сценарию... 1. Перечень исходных данных, представляемых Заказчиком: 2. Технические эскизы выполненные мною от руки, в глазомерном масштабе, с соблюдением пропорций, исключительно для согласования с Заказчиком, а также ряд технических проработок: 3. Разработка марок основных комплектов рабочих чертежей: - КМ и КМД согласно ГОСТ Р 21.101-2020 "Система проектной документации для строительства. Основные требования к проектной и рабочей документации" : 4. Процесс воплощения плана проекта в жизнь для получения конечных результатов: 5. "Секрет воплощения мечты (в данном случае просто воплощение) состо

Принять участие в проекте... Надо быть деловым человеком, смелым, убеждать людей в своей полезности... Хотя я лично никого не убеждаю, потому как не считаю это эффективным. Я главный инженер проекта (ГИП), я специалист, организатор и вдохновитель проекта, поэтому стараюсь собрать вокруг себя хорошую команду исполнителей, стараюсь разобраться во всех обстоятельствах и "выдать на-гора". Все как по сценарию...

1. Перечень исходных данных, представляемых Заказчиком:

2. Технические эскизы выполненные мною от руки, в глазомерном масштабе, с соблюдением пропорций, исключительно для согласования с Заказчиком, а также ряд технических проработок:

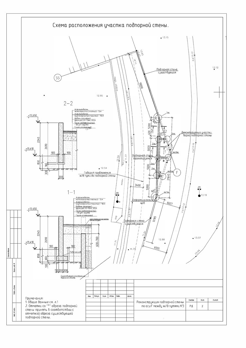
3. Разработка марок основных комплектов рабочих чертежей: - КМ и КМД согласно ГОСТ Р 21.101-2020 "Система проектной документации для строительства. Основные требования к проектной и рабочей документации" :

4. Процесс воплощения плана проекта в жизнь для получения конечных результатов:

5. "Секрет воплощения мечты (в данном случае просто воплощение) состоит из четырех слов: любознательность, смелость, уверенность и постоянство. И величайшее из этих качеств - уверенность. Если Вы верите во что-то, верьте безоговорочно, до конца" - Уолт Дисней (американский художник-мультипликатор, кинорежиссер, актер, сценарист и продюсер (1901-1966).

Уважаемая аудитория Заказчиков!

У вас есть вопросы по проектированию – задавайте их прямо в комментариях!

С уважением, руководитель проектов, Виталий Дельдекин!