Найти в Дзене

Проект роскошного двухэтажного дома «Комарово»

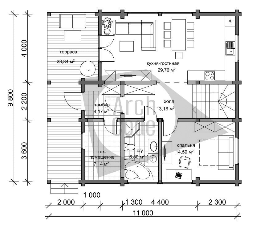
Представляем проект двухэтажного дома Площадь дома составляет 117.65 м2 Представляем вам роскошный проект деревянного дома "Комарово". Общая площадь дома составляет 117,65 м2, к которой добавляется площадь террасы впечатляющего размера - 23,84 м2. Этот красивый и величественный дом из дерева станет украшением коттеджного поселка и источником гордости для его хозяев.
Внутри дома расположены 3 просторные спальни, 2 санузла и просторная кухня-гостиная с выходом на большую летнюю террасу. Эта планировка обеспечит комфорт и уют для семьи из 4-5 человек, где каждый член семьи найдет свое личное пространство.
Особое внимание привлекает второй свет, который заполняет помещение естественным светом и создает невероятный объем внутри дома. Это добавляет особую роскошь и элегантность дому.
Проект деревянного дома "Комарово" обещает комфорт, стиль и функциональность для вашей семьи. Если вы мечтаете о прекрасном деревянном доме, который станет идеальным местом для жизни и отдыха, обращайтесь к

Представляем проект двухэтажного дома

Площадь дома составляет 117.65 м2

Представляем вам роскошный проект деревянного дома "Комарово". Общая площадь дома составляет 117,65 м2, к которой добавляется площадь террасы впечатляющего размера - 23,84 м2. Этот красивый и величественный дом из дерева станет украшением коттеджного поселка и источником гордости для его хозяев.

Внутри дома расположены 3 просторные спальни, 2 санузла и просторная кухня-гостиная с выходом на большую летнюю террасу. Эта планировка обеспечит комфорт и уют для семьи из 4-5 человек, где каждый член семьи найдет свое личное пространство.

Особое внимание привлекает второй свет, который заполняет помещение естественным светом и создает невероятный объем внутри дома. Это добавляет особую роскошь и элегантность дому.

Проект деревянного дома "Комарово" обещает комфорт, стиль и функциональность для вашей семьи. Если вы мечтаете о прекрасном деревянном доме, который станет идеальным местом для жизни и отдыха, обращайтесь к нам, и мы поможем вам создать свой собственный роскошный уголок!

Понравился проект? Заказать проект или выбрать подобный можно по телефону: +79323212510. Звоните или пишите. Заявки принимаются по вотцап, телеграмм. Готовы рассчитать для вас смету!

Как построить дом в Тюмени?

Как построить дом в Москве?

Готовые дома в Тюмени

Готовые дома в Москве

Земельные участки в Тюмени

Задать вопрос в ТГ

И подписывайтесь на наш канал, чтобы не пропустить новые интересные проекты.

#проектдома #проектдвухэтажногодома #построитьдом #купитьдом