Добавить в корзинуПозвонить
Найти в Дзене

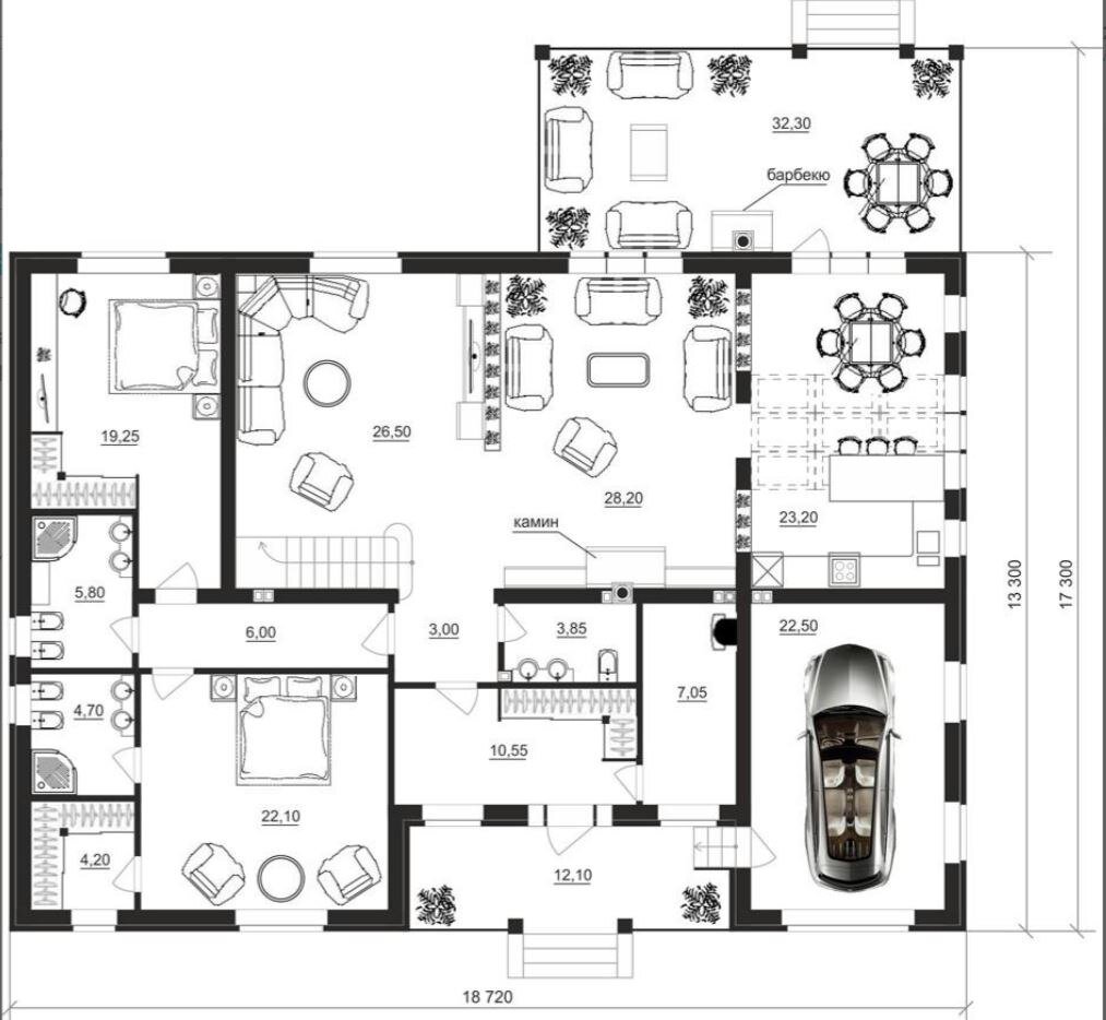
Дом для ценителей красоты. Гараж, терраса с барбекю, 6 спален

«Форт-Нокс» поражает своей уникальной продуманностью: каждый элемент дома функционален и призван создавать не только внешний антураж, но и гармонизировать проживание большой семьи. Эстетика внешнего облика дома создается, в первую очередь, благодаря контрастной отделке: все элементы (наличники окон, колонны, дымоходы, ворота гаража) выкрашены в белый цвет, а стены и крыша выполнены в актуальном шоколадном цвете. Также балконы и терраса придают изысканности своими строгими колоннами и кованными ограждениями. Внутренние помещения утопают в свете и уюте, особенно кухня, расположенная под мансардными окнами. В доме расположено шесть просторных и комфортных спален, одну из которых можно обустроить под кабинет, что гарантирует самые комфортные условия проживания большой гостеприимной семьи. Площадь дома - 287 кв.м.
Габариты - 18.7 x 17.3 м. Планировка Специалисты компании Stone Wood House всегда готовы построить этот дом специально для Вас на максимально выгодных условиях с гарантией 5 лет

«Форт-Нокс» поражает своей уникальной продуманностью: каждый элемент дома функционален и призван создавать не только внешний антураж, но и гармонизировать проживание большой семьи.

Эстетика внешнего облика дома создается, в первую очередь, благодаря контрастной отделке: все элементы (наличники окон, колонны, дымоходы, ворота гаража) выкрашены в белый цвет, а стены и крыша выполнены в актуальном шоколадном цвете. Также балконы и терраса придают изысканности своими строгими колоннами и кованными ограждениями.

Внутренние помещения утопают в свете и уюте, особенно кухня, расположенная под мансардными окнами. В доме расположено шесть просторных и комфортных спален, одну из которых можно обустроить под кабинет, что гарантирует самые комфортные условия проживания большой гостеприимной семьи.

Площадь дома - 287 кв.м.
Габариты - 18.7 x 17.3 м.

Планировка

Специалисты компании Stone Wood House всегда готовы построить этот дом специально для Вас на максимально выгодных условиях с гарантией 5 лет.

Чтобы узнать стоимость проекта и строительства дома, а также более подробные его характеристики проходите по ссылке => проект «Форт-Нокс».

Смотрите на нашем сайте другие проекты домов с гаражом, а также другие проекты домов.

Если среди просмотренных вариантов Вы так и не нашли подходящий проект дома, наши архитекторы готовы создать индивидуальный проект, предусматривающий все Ваши задумки и пожелания.

⭐ Мы спроектируем и построим «под ключ» дом Вашей мечты высокого качества!

☎ Позвоните нам для консультации: 8-965-199-61-04

#проектдома #проектирование #коттедж #строимдом #строительствоиремонт #ремонт #недвижимость #строительство #загороднаянедвижимость #проекты загородного дома #проект частный дом #загородные дома проекты #проектдома #двухэтажный дом #проектдвухэтажногодома #резиденция #коттедж #архитектор #дизайн #проектодноэтажногодома #дом с гаражом проекты # дома с террасами #загородныйдом