Добавить в корзинуПозвонить
Найти в Дзене
Филдс

Дизайнер улучшила планировку двушки 59 м² для мужчины и показала фото до и после: неоклассика с французским флёром

Дизайнер Ана Петкович оформила двушку площадью 59 м² для мужчины и его будущей семьи. Пока хозяин постоянно проживает в загородном доме, и потому квартира предназначается для временных визитов. Интерьер выполнили в неоклассическом стиле с добавлением традиционных французских элементов. Планировка до и после В изначальном проекте застройщика присутствовали две комнаты, изолированная кухня и два санузла. Планировку немного оптимизировали: кухню и гостиную совместили, сохранив на границе простенок с нишей, в нее встроили бытовую технику. Гостевой санузел переоборудовали в гардеробную. Гостиная Стены выкрасили в теплый бежевый оттенок, светлая основа помогла сохранить ощущение простора и наполнить интерьер светом и воздухом. Пол уложили керамогранитом с деревянной текстурой, раскладка елочкой отсылает к классическому паркету. Кухня Классический угловой гарнитур с филенками и фасадами с расстекловкой построили вокруг выступа общедомовой шахты. Белый цвет шкафов и плитки на фартуке визу
Оглавление

Дизайнер Ана Петкович оформила двушку площадью 59 м² для мужчины и его будущей семьи. Пока хозяин постоянно проживает в загородном доме, и потому квартира предназначается для временных визитов. Интерьер выполнили в неоклассическом стиле с добавлением традиционных французских элементов.

  • Общая площадь: 59 м²
  • Место: Москва
  • Тип дома: ЖК «Ясный»
  • Количество комнат: 2
  • Высота потолка: 2,9 м
  • Кто здесь живет: для временных визитов мужчины
  • Дизайнер: Ана Петкович
  • Стилист: Мария Маркус
  • Фото: Егор Кодяков

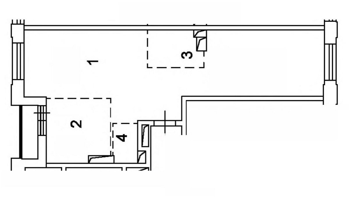
Планировка до и после

В изначальном проекте застройщика присутствовали две комнаты, изолированная кухня и два санузла. Планировку немного оптимизировали: кухню и гостиную совместили, сохранив на границе простенок с нишей, в нее встроили бытовую технику. Гостевой санузел переоборудовали в гардеробную.

Гостиная

Стены выкрасили в теплый бежевый оттенок, светлая основа помогла сохранить ощущение простора и наполнить интерьер светом и воздухом. Пол уложили керамогранитом с деревянной текстурой, раскладка елочкой отсылает к классическому паркету.

Кухня

Классический угловой гарнитур с филенками и фасадами с расстекловкой построили вокруг выступа общедомовой шахты. Белый цвет шкафов и плитки на фартуке визуально облегчает конструкцию.

Спальня

Более уютную атмосферу в спальне обеспечило напольное покрытие — здесь использовали инженерную доску. Центральное место отвели кровати, ее дополнили парными тумбами с похожей текстурой и настенными бра. Зону украсили необычной керамикой и графикой.

Прихожая

В нише в прихожей предусмотрели вешалки для повседневной верхней одежды и подвесную банкетку, под которой оставили пространство для обуви. Рядом вместили зеркальный шкаф. Отсюда открывается вход в гардеробную, которая забрала на себя основное хранение.

Санузел

Санузел выполнили в контрастном сочетании белых и черных оттенков. Основную часть стен и чашу ванны облицевали керамогранитом под светлый мрамор, имитацией темного мрамора выделили зоны постирочной и инсталляции. Строгую отделку смягчили деревянными текстурами: напольным керамогранитом и фасадами тумбы под раковиной.

Интересные мнения в комментариях приветствуются. Если материал понравился — ставь лайк!

🖤 Филдс — это не только блог на Дзене, но и магазин дизайнерских предметов интерьера. Заходите на сайт, чтобы увидеть мебель, которую дизайнеры выбирают для своих проектов.