Найти в Дзене

"Что я получу в итоге?" (С)

Так как это частый вопрос от потенциальных заказчиков, на примере покажу, из чего состоит базовый проект, который я создаю (пакет СТАНДАРТ):

✅ ЦВЕТНЫЕ ВИЗУАЛИЗАЦИИ с разных ракурсов. Обычно их 6-7 шт. Если нужны дополнительные ракурсы - предоставляем без дополнительной оплаты.

Проект нейл-бара. Визуализации. Автор проекта ООО Додель.
Проект нейл-бара. Визуализации. Автор проекта ООО Додель.

✅ ПЛАНЫ с размерами. Тут все ясно.

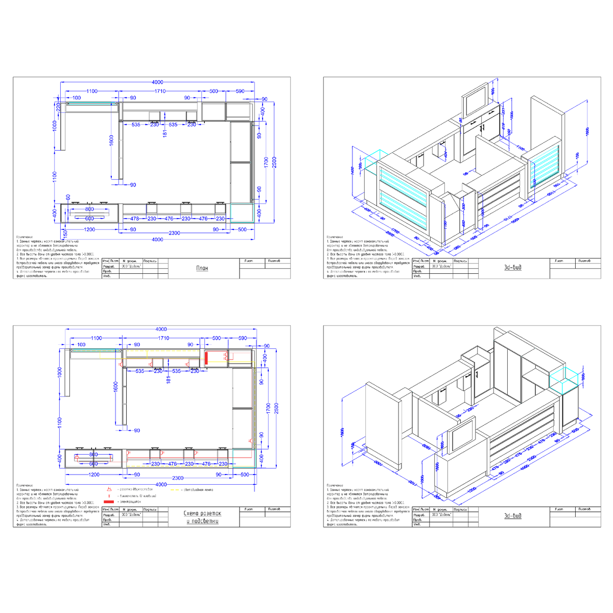
✅ 3Д-ЧЕРТЕЖИ с размерами. Чисто моя фишка. Польза в том, что их поймёт даже тот, кто никогда ничего не понимал в чертежах. Торговые центры охотнее утверждают такие проекты.

Чертежи к проекту. Автор проекта ООО Додель.
Чертежи к проекту. Автор проекта ООО Додель.

✅ ИНФОРМАЦИЯ по материалам. Предоставляю по запросу тем, кто хочет заказать мебель не у нас, а на стороне. Обычно это заказчики из регионов.

Информация по материалам. Автор проекта ООО Додель.
Информация по материалам. Автор проекта ООО Додель.

Остальные пункты, указанные в таблице ниже, опциональны. Они входят в расширенные тарифы. Их вы можете включить в стандартный пакет выборочно.

Таблица с тарифами на проектирование. Выбирайте тот, что вам подходит.
Таблица с тарифами на проектирование. Выбирайте тот, что вам подходит.

➡️ Разработанный мною проект торговой точки хорош тем, что Вы НЕ ПРИВЯЗАНЫ к нашему производству и можете заказать мебель там, где Вам удобно и выгодно.

_______________

Что по срокам?

Срок разработки цветных визуализаций 3-4 рабочих дня, чертежей 1-2 рабочих дня.

Если в процессе потребуются корректировки, то прибавляйте ещё 2-3 дня.

🔸Заказать разработку проекта и получить рекомендации можно по телефону. Смело звоните, отвечу на вопросы, помогу, проконсультирую.

Наш сайт dodele.ru и Контакты

Ещё по теме:

Эффектно и ярко!!! Наша работа
ДОДЕЛЬ | МЕБЕЛЬ ДЛЯ БИЗНЕСА 27 июня 2023