Добавить в корзинуПозвонить
Найти в Дзене
СИПТЕХ.РФ

Отель из СИП-панелей "ОЗЕРЫ"

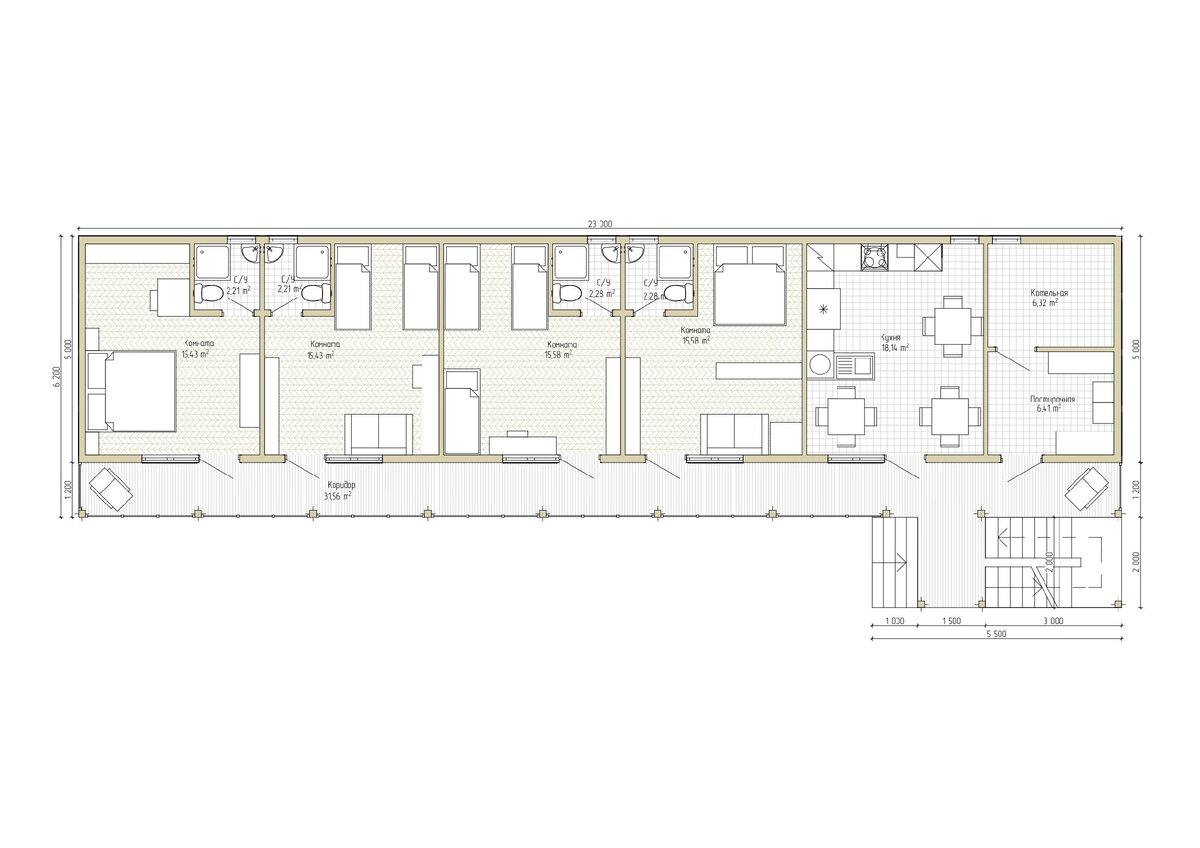
Проект «Озёры» – это гостиница из СИП панелей, которая будто сошла с экранов американских фильмов. Два этажа, 10 номеров, вход в каждый номер с улицы, на первом этаже через общую террасу-коридор – на втором через общий балкон. Коридор-терраса первого этажа имеет площадь около 30 м2, аналогичный размер и у балкона на втором этаже. На первом этаже проектом предусмотрены общая кухня, постирочная и котельная. Здесь же 4 номера. Все номера реализованы в похожем формате: около 15,5 м2 жилой площади, небольшой совмещенный санузел примерно 2,2 м2, большое окно рядом с входной дверью. Второй этаж повторяет планировку первого, но вместо кухни и котельной-постирочной здесь еще два дополнительных номера. При этом все характеристики номеров те же, что и на 1 этаже. За исключением одного – ближайшая к лестнице комната имеет площадь 10,68 м2. Проект «Озёры» достаточно универсален, он может быть как отличной придорожной гостиницей, так и корпусом в доме отдыха. Крыша у гостиницы односкатная, наружные

Проект «Озёры» – это гостиница из СИП панелей, которая будто сошла с экранов американских фильмов. Два этажа, 10 номеров, вход в каждый номер с улицы, на первом этаже через общую террасу-коридор – на втором через общий балкон.

-2

Коридор-терраса первого этажа имеет площадь около 30 м2, аналогичный размер и у балкона на втором этаже. На первом этаже проектом предусмотрены общая кухня, постирочная и котельная. Здесь же 4 номера. Все номера реализованы в похожем формате: около 15,5 м2 жилой площади, небольшой совмещенный санузел примерно 2,2 м2, большое окно рядом с входной дверью.

-3

Второй этаж повторяет планировку первого, но вместо кухни и котельной-постирочной здесь еще два дополнительных номера. При этом все характеристики номеров те же, что и на 1 этаже. За исключением одного – ближайшая к лестнице комната имеет площадь 10,68 м2.

-4

Проект «Озёры» достаточно универсален, он может быть как отличной придорожной гостиницей, так и корпусом в доме отдыха. Крыша у гостиницы односкатная, наружные стены 174 мм СИП панели, так что, при желании, эта гостиница может быть построена даже в снежных и холодных регионах. Постояльцы мерзнуть не будут.

Проект Озёры – гостиница из СИП панелей в американском стиле, общая площадь 292,2 м2, строительство под ключ в Москве и Краснодаре – компания СИПТЕХ