Добавить в корзинуПозвонить
Найти в Дзене

Проект двухэтажного дома «Елисейские поля»

Представляем проект двухэтажного дома Общая площадь дома составляет 250 м2 Представляем вашему вниманию большой загородный коттедж с банным комплексом, летней террасой и зоной для барбекю - идеальное решение для тех, кто ищет комфорт и уют в сочетании с красивой архитектурой. Дом, построенный по проекту "Елисейские поля", отличается богатым внешним видом и насыщенной внутренней планировкой.
На первом этаже дома расположена обширная гостевая комната с обеденной зоной, имеющей выход на летнюю террасу, просторная кухня, гостевой санузел и тренажерный зал. Второй этаж дома включает в себя три спальные комнаты с выходами на балконы, санузел и два бытовых помещения. Балконы, расположенные на главном и заднем фасадах, имеют широкие арочные двери и изящные ограждения из кованого железа.
Кроме того, в состав проекта входит пристроенный к коттеджу банный комплекс, совмещенный с отапливаемым гаражом и зоной для барбекю, освещенной большим количеством окон. Гараж и баня разделены между собой пом

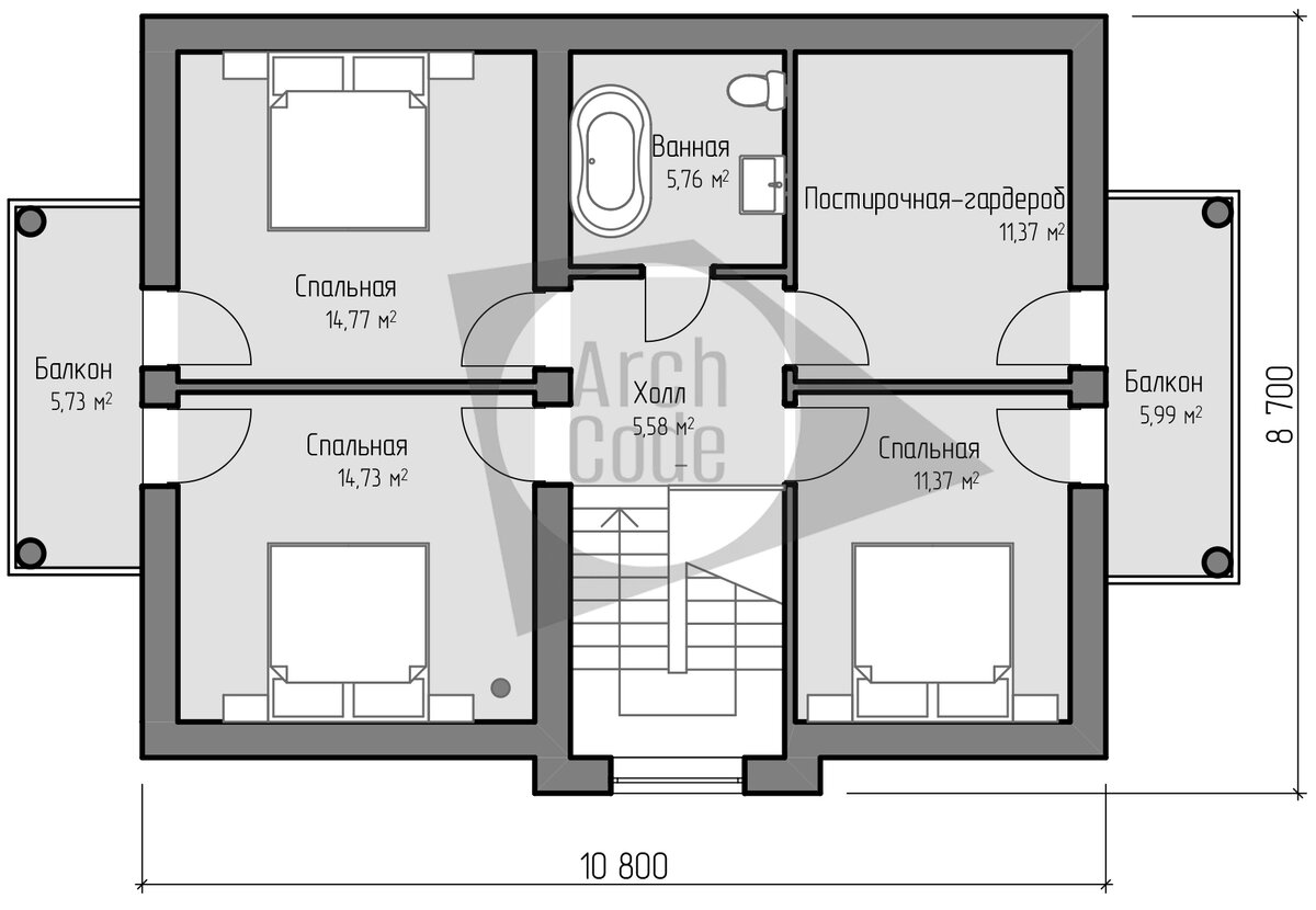
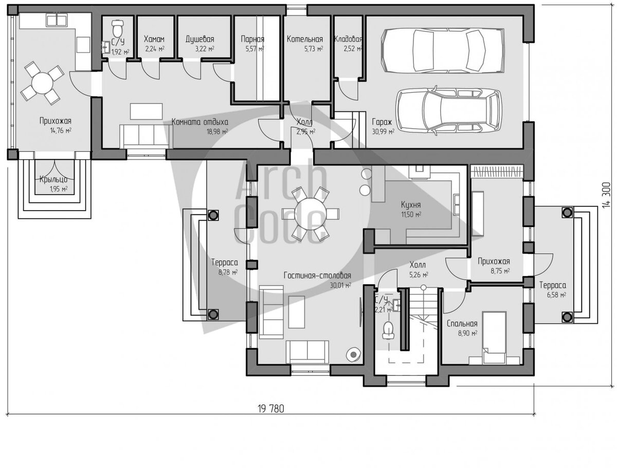
Представляем проект двухэтажного дома

Общая площадь дома составляет 250 м2

Представляем вашему вниманию большой загородный коттедж с банным комплексом, летней террасой и зоной для барбекю - идеальное решение для тех, кто ищет комфорт и уют в сочетании с красивой архитектурой. Дом, построенный по проекту "Елисейские поля", отличается богатым внешним видом и насыщенной внутренней планировкой.

На первом этаже дома расположена обширная гостевая комната с обеденной зоной, имеющей выход на летнюю террасу, просторная кухня, гостевой санузел и тренажерный зал. Второй этаж дома включает в себя три спальные комнаты с выходами на балконы, санузел и два бытовых помещения. Балконы, расположенные на главном и заднем фасадах, имеют широкие арочные двери и изящные ограждения из кованого железа.

Кроме того, в состав проекта входит пристроенный к коттеджу банный комплекс, совмещенный с отапливаемым гаражом и зоной для барбекю, освещенной большим количеством окон. Гараж и баня разделены между собой помещением для профессионально оборудованной котельной. Все необходимые инженерные сети и коммуникации проведены на одном из этапов строительства, также полностью выполнена внутренняя чистовая отделка согласно запросам заказчика.

Понравился проект? Заказать проект или выбрать подобный можно по телефону: +79323212510. Звоните или пишите. Заявки принимаются по вотцап, телеграмм. Готовы рассчитать для вас смету!

Как построить дом в Тюмени?

Как построить дом в Москве?

Готовые дома в Тюмени

Готовые дома в Москве

Земельные участки в Тюмени

Задать вопрос в ТГ

И подписывайтесь на наш канал, чтобы не пропустить новые интересные проекты.

#проектдома #проектдвухэтажногодома #построитьдом #купитьдом