Добавить в корзинуПозвонить
Найти в Дзене

Проект одноэтажного дома «Натали»

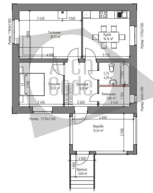
Представляем проект одноэтажного дома Площадь дома составляет 80.55 м2 Многие наши заказчики предпочитают дома с площадью до 100 кв.м. Это удобные и практичные дома, идеально подходящие для небольшой семьи. Проект "Натали" выделяется своей невероятной компактностью и миниатюрностью даже в категории до 100 кв.м. При этом на скромной площади 80,55 кв.м. умещается все необходимое для комфортной жизни.
Пространство дома начинается с просторной застекленной веранды площадью 14 кв.м. За входной дверью находится прихожая, из которой мы попадаем во все основные помещения дома: гостиная, кухня, спальня, санузел и котельная.
Проект "Натали" предлагает оптимальное использование каждого квадратного метра. Все помещения дома продуманы до мелочей и обеспечивают максимальный комфорт для жизни небольшой семьи. Компактность проекта не мешает ему быть функциональным и удобным. Этот дом идеально подойдет для тех, кто ценит уют и комфорт в небольшом пространстве. Проект "Натали" - это прекрасный выбор д

Представляем проект одноэтажного дома

Площадь дома составляет 80.55 м2

Многие наши заказчики предпочитают дома с площадью до 100 кв.м. Это удобные и практичные дома, идеально подходящие для небольшой семьи. Проект "Натали" выделяется своей невероятной компактностью и миниатюрностью даже в категории до 100 кв.м. При этом на скромной площади 80,55 кв.м. умещается все необходимое для комфортной жизни.

Пространство дома начинается с просторной застекленной веранды площадью 14 кв.м. За входной дверью находится прихожая, из которой мы попадаем во все основные помещения дома: гостиная, кухня, спальня, санузел и котельная.

Проект "Натали" предлагает оптимальное использование каждого квадратного метра. Все помещения дома продуманы до мелочей и обеспечивают максимальный комфорт для жизни небольшой семьи.

-2

Компактность проекта не мешает ему быть функциональным и удобным. Этот дом идеально подойдет для тех, кто ценит уют и комфорт в небольшом пространстве. Проект "Натали" - это прекрасный выбор для тех, кто ищет практичный и уютный дом для своей семьи, в котором каждый квадратный метр используется с максимальной отдачей.

Понравился проект? Заказать проект или выбрать подобный можно по телефону: +79323212510. Звоните или пишите. Заявки принимаются по вотцап, телеграмм. Готовы рассчитать для вас смету!

Как построить дом в Тюмени?

Как построить дом в Москве?

Готовые дома в Тюмени

Готовые дома в Москве

Земельные участки в Тюмени

Задать вопрос в ТГ

И подписывайтесь на наш канал, чтобы не пропустить новые интересные проекты.

#проектдома #проектодноэтажногодома #построитьдом #купитьдом