Добавить в корзинуПозвонить
Найти в Дзене
ОЛИМПСТРОЙСЕРВИС

Дизайнерский ремонт апартаментов 120 кв.м. в ЖК Балчуг Вьюпойнт

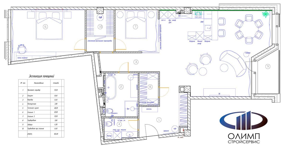
Представляем вашему вниманию отделку в неоклассическом стиле апартаментов в ЖК Балчуг Вьюпойнт общей площадью 122м2. Хозяева, респектабельная семейная пара, узнали о компании «ОлимпСтройСервис» по объектам ведомым нами в этом элитном ЖК. По достоинству оценив качество отделки осмотренной квартиры и портфолио работ в выбранном стиле, заказали проекты дизайна и инженерии, а по их готовности – ремонт с авторским надзором. Менее чем через год в июле 2021 квартира с наполнением мебелью и декором была полностью готова. Проектирование началось с обмера и проработки планировки помещения, статус апартаментов которого в сравнении с жилой недвижимостью предоставлял   больше возможностей для изменения. Полученное от застройщика оборудование было учтено в проекте: конвектора отопления встроенные в пол, деревянные оконные рамы огромного размера, входная дверь с единой отделкой снаружи стеклянными панелями по всему этажу, а также приточная вентиляция и центральное кондиционирование. В итоге получилас
Оглавление

Представляем вашему вниманию отделку в неоклассическом стиле апартаментов в ЖК Балчуг Вьюпойнт общей площадью 122м2. Хозяева, респектабельная семейная пара, узнали о компании «ОлимпСтройСервис» по объектам ведомым нами в этом элитном ЖК.

По достоинству оценив качество отделки осмотренной квартиры и портфолио работ в выбранном стиле, заказали проекты дизайна и инженерии, а по их готовности – ремонт с авторским надзором. Менее чем через год в июле 2021 квартира с наполнением мебелью и декором была полностью готова.

-2

Проектирование началось с обмера и проработки планировки помещения, статус апартаментов которого в сравнении с жилой недвижимостью предоставлял   больше возможностей для изменения. Полученное от застройщика оборудование было учтено в проекте: конвектора отопления встроенные в пол, деревянные оконные рамы огромного размера, входная дверь с единой отделкой снаружи стеклянными панелями по всему этажу, а также приточная вентиляция и центральное кондиционирование.

-3

В итоге получилась прихожая со встроенным в нишу стены платяным шкафом и гардеробной комнатой напротив. Гостевой санузел с оборудованием для стирки и сушки, встроенным в мебель, размещен ближе ко входной двери.

Фасады дверец платяного шкафа - крашеные филенчатые с объемными уступами стиля Арт Деко, с цветными полосками и ручками из латуни. Пол прихожей, парадной зоны квартиры, отделан мрамором полисандро с необычным рисунком. Необычные подвесная люстра на потолке и зеркало, навешенное на стену с двойной рамкой из гипсового молдинга, удобные пуф и консоль со светильником наполняют обстановку.

-4

Открытый коридор из прихожей ведет в просторную общую гостиную комнату, объединенную с кухней и столовой.  Кухня в форме полуострова с примыкающей к ней барной стойкой со стороны круглого обеденного стола, удобно расположенного у эркерного окна.

-5

Центральное место гостиной занял диван с креслами и кофейными столиками посередине роскошного ковра.  Окно и лоджия гостиной выходят на южную сторону с прекрасным видом на набережную речного канала, где можно любоваться закатным солнцем. Полы отделаны штучным паркетом с рисунком французская елочка.

-6

Приватная зона включает две смежные спальные с гардеробной комнатой, расположенной посередине между ними. 
Меньшая спальная, не имея собственного окна, отгорожена от гостиной раздвижной стеклянной перегородкой с тканевым занавесом.

-7

При зашторенной перегородке зона спальной не просматривается, а стеклянная перегородка придает гостиной легкости и эффектности.

-8

При открытой перегородке и отодвинутом занавесе из гостиной на стене спальной, а также дальней стене соседнего коридора, видны картины с абстрактным рисунком, идеально вписанные в интерьер автором проекта.

-9

Стена мастер спальной, имеющая не прямой угол, частично зашита столярными панелями из шпона и выровнена мебельным шкафом с рабочей столешницей, сделанными на заказ в мастерской по эскизу дизайнера вместе с изголовьем кровати с тумбочками. Видимая часть стены над столешницей и за открытыми полками облицована листом керамогранита крупного формата, с рисунком светлого мрамора, гармонично подобранного к тону дерева мебели. Антресоли верхней части шкафа - застеклены.

-10

Значительная высота перекрытия дома 3.30 м позволила без ущерба для объема помещения спальной сделать опуск потолка по периметру для разводки канального кондиционирования. Центральную часть потолка оставили высокой, обрамив классическими гипсовыми карнизами со скрытой подсветкой.

-11

Стена изголовья кровати и смежная ей боковая с живописными обоями в двойных рамках из гипсовых молдингов, покрашенных в светло бежевый цвет.  Ковер на полу, постельное убранство и текстиль окон, предметы декора придают помещению особую теплоту уюта и изысканную элегантность.

Освещение спальной совмещает точечные светильники с матовыми рассеивателями по краям, скрытую подсветку за гипсовым карнизом, встроенные в изголовье кровати поворотные бра направленного света и асимметрично расположенные подвесные люстры со стеклянными плафонами над тумбочками.

-12

Основной санузел оборудован ванной, примыкающей к стене, с отдельно стоящим смесителем.  В стене за ванной устроены ниши со встроенной подсветкой. Угловое ограждение душевой кабины установлено на высоком поддоне в строительном исполнении.  Подстолье консольного типа для двух накладных раковин сделано на заказ и навешено на стену с помощью специального металлического каркаса.

Желаете познакомиться со всеми нашими работами?

Смотрите наше портфолио: https://olimpstroyservis.ru/portfolio-olimpstroyservis/

Понравился ли Вам проект?

Ставьте палец вверх, пишите свои мысли в комментариях.