Добавить в корзинуПозвонить
Найти в Дзене
Роман Технадзор

Фотоблог компактного дома. Серия 6. Армирование фундамента

Как шутят строители, "проектировщик - это неудавшийся строитель". (Проектировщики думают ровно наоборот)) Всегда существовало недопонимание между проектировщиками и строителями. И если в промышленном строительстве много сильных проектировщиков, то в частном домостроении почти всегда в этих спорах выигрывают строители, так сказать "на опыте". Наш проектировщик заложил вот такое армирование Это заведомо нереализуемое армирование. Т.к. на этом "прекрасном" эскизе не учтена толщина прутьев арматуры. Т.е. чтобы соблюсти защитный слой для бетона (снизу -30 мм, сверху - 70 мм, а также уложить сетку из 14 арматуры, толщина плиты должна быть 128 мм, а не 100, как по проекту. Если бы мы делали толщину плиты по проекту, то сверху арматурной сетки защитный слой был бы 42 мм, а нам еще нужно уложить трубы теплого пола в УШП. При схватывании бетона он бы покрылся мелкими трещинами. Поэтому принято решение увеличить толщину плиты на 30 мм. Перерасход бетона составит 3 м3, но оно того стоит. Все выпу

Как шутят строители, "проектировщик - это неудавшийся строитель". (Проектировщики думают ровно наоборот))

Всегда существовало недопонимание между проектировщиками и строителями. И если в промышленном строительстве много сильных проектировщиков, то в частном домостроении почти всегда в этих спорах выигрывают строители, так сказать "на опыте".

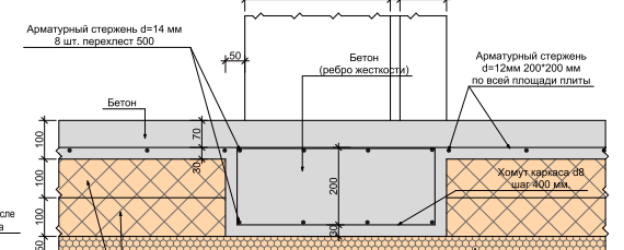
Наш проектировщик заложил вот такое армирование

Это заведомо нереализуемое армирование. Т.к. на этом "прекрасном" эскизе не учтена толщина прутьев арматуры. Т.е. чтобы соблюсти защитный слой для бетона (снизу -30 мм, сверху - 70 мм, а также уложить сетку из 14 арматуры, толщина плиты должна быть 128 мм, а не 100, как по проекту.

Если бы мы делали толщину плиты по проекту, то сверху арматурной сетки защитный слой был бы 42 мм, а нам еще нужно уложить трубы теплого пола в УШП. При схватывании бетона он бы покрылся мелкими трещинами.

Поэтому принято решение увеличить толщину плиты на 30 мм. Перерасход бетона составит 3 м3, но оно того стоит.

Раскладываем арматурные каркасы
Раскладываем арматурные каркасы
Прутья арматуры связаны вязальной проволокой
Прутья арматуры связаны вязальной проволокой
Формируется общий каркас арматуры. Здесь есть небольшие ошибки, Подрядчик исправил позже
Формируется общий каркас арматуры. Здесь есть небольшие ошибки, Подрядчик исправил позже

Все выпуски фотоблога компактного дома

Серия 0. Проектные решения

Серия 1. Начало земляных работ

Серия 2. Дренаж

Серия 3. Песчаная подготовка фундамента

Серия 4. Поднятие уровня земли на участке

Серия 5. УШП и утепление

Серия 6. Армирование фундамента

Серия 7. Водяные контуры в УШП

Серия 8. Бетонирование УШП

Серия 9. Начало кладки стен

Серия 10. Кладка стен из газобетона, армирование и лайфхаки