Найти в Дзене

Стильный дом для красивой жизни. Гараж на 2 авто, 4 спальни, терраса

Проект дома с мансардой «Парковая Вилла 3» имеет привлекательный внешний вид, вдохновленный дворянскими имениями с их аристократизмом и роскошными формами. Классическое сочетание стен фасада нежного кремового цвета и черной черепицы на многоскатной крыше, изысканные фронтоны и колонны создают безупречную эстетику этого коттеджа. Большой гараж на два автомобиля, расположенный в правом крыле, органично вписан в облик этого прекрасного дома. Особо примечательна крытая терраса в задней части дома: просторная, уютная, оборудованная камином, она подарит Вам массу незабываемых эмоций от приятного отдыха на свежем воздухе. Планировка Площадь дома - 309 кв.м.
Габариты - 20.4 x 20.0 м. Внутреннее пространство также будет дарить исключительно положительные эмоции. В этой версии проекта предусмотрено четыре спальни и два санузла. Котельная и прачечная совмещены и расположены за большим общим гардеробом. Просторная гостиная с камином, столовая, кухня с кладовой и холл на первом этаже и большое ч

Проект дома с мансардой «Парковая Вилла 3» имеет привлекательный внешний вид, вдохновленный дворянскими имениями с их аристократизмом и роскошными формами.

Классическое сочетание стен фасада нежного кремового цвета и черной черепицы на многоскатной крыше, изысканные фронтоны и колонны создают безупречную эстетику этого коттеджа. Большой гараж на два автомобиля, расположенный в правом крыле, органично вписан в облик этого прекрасного дома.

Особо примечательна крытая терраса в задней части дома: просторная, уютная, оборудованная камином, она подарит Вам массу незабываемых эмоций от приятного отдыха на свежем воздухе.

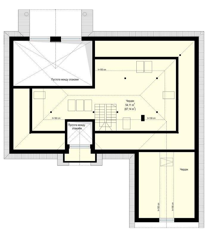
Планировка

Площадь дома - 309 кв.м.
Габариты - 20.4 x 20.0 м.

Внутреннее пространство также будет дарить исключительно положительные эмоции.

В этой версии проекта предусмотрено четыре спальни и два санузла. Котельная и прачечная совмещены и расположены за большим общим гардеробом. Просторная гостиная с камином, столовая, кухня с кладовой и холл на первом этаже и большое чердачное помещение свободного назначения на мансарде.

Такая удобная планировка создает самые комфортные условия для проживания дружной и гостеприимной семьи до 8 человек.

Чтобы узнать стоимость проекта и строительства дома, а также более подробные его характеристики проходите по ссылке => «Парковая Вилла 3» . Оставляйте заявку или связывайтесь с нашими менеджерами.

Специалисты компании Stone Wood House всегда готовы спроектировать дом под Ваш бюджет. Предложим оптимальные варианты материалов.

☎ Позвоните нам для консультации: 8-965-199-61-04

Мы подготовили для Вас много красивых и интересных проектов. Заходите на наши сайт stone-wood-house.ru

#недвижимость #дом #особняк #купитьпроектдома #проектдома #проектирование #коттедж #строимдом #строительствоиремонт #ремонт #недвижимость #строительство #загороднаянедвижимость #проекты загородного дома #проект частный дом #загородные дома проекты #проектдома #двухэтажный дом #проектдвухэтажногодома #резиденция #коттедж #архитектор #дизайн #проектодноэтажногодома #дом с гаражом проекты #одноэтажный проект # дома с террасами #дом с гаражом одноэтажный #дом с 4 спальнями #дома 4 спальни #загородныйдом #двухэтажный дом #загородныйдом #резиденция #архитектор #дизайн