Добавить в корзинуПозвонить
Найти в Дзене

Проект одноэтажного дома "Белла" с четырьмя комнатами

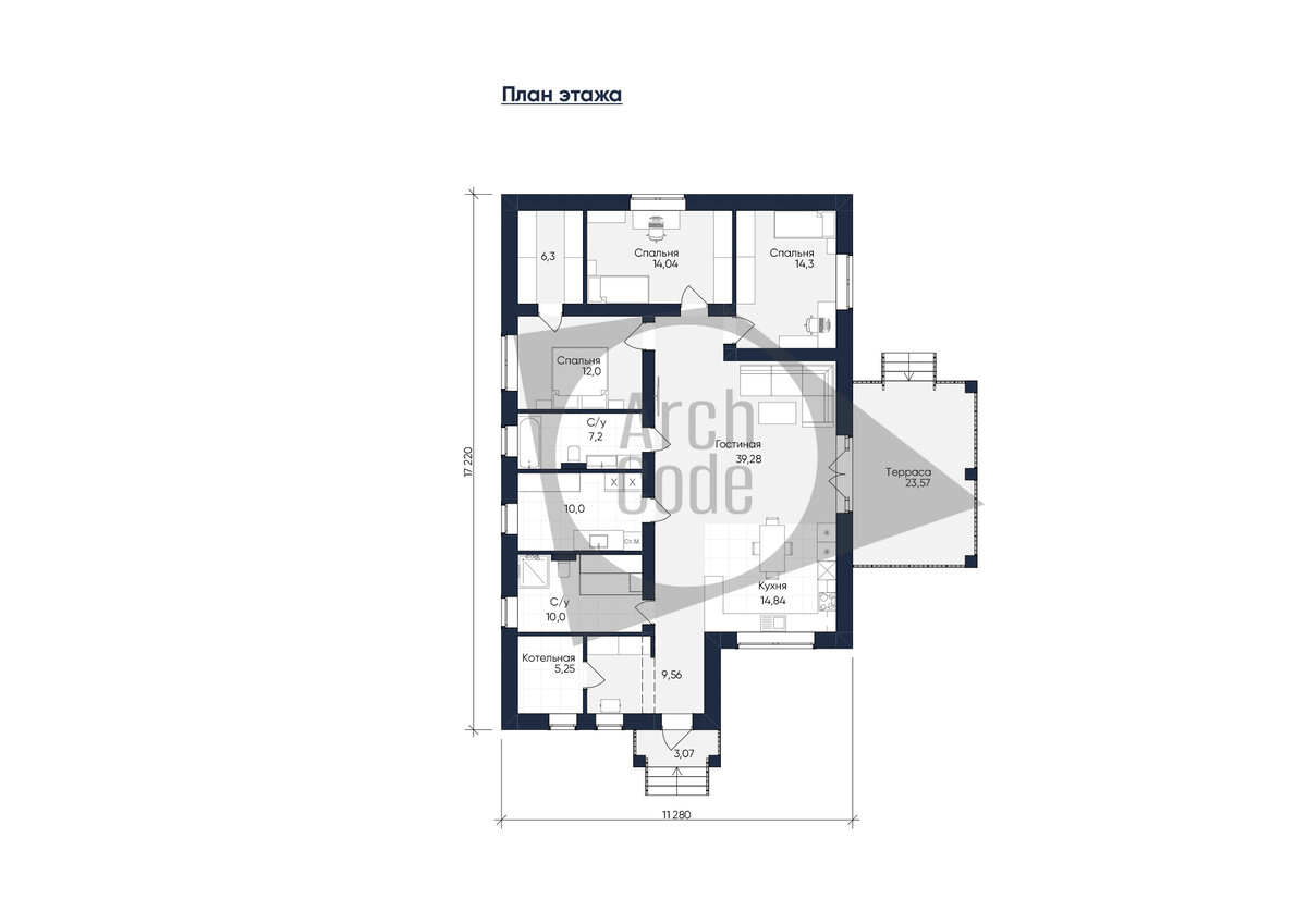
Представляем проект одноэтажного дома Площадь дома составляет 142.77 м2 Представляем вам просторный и стильный одноэтажный дом по проекту "Белла" общей площадью 142,77 кв.м. с террасой 23,57 кв.м. и крыльцом 3,07 кв.м.
Проект "Белла" выглядит очень презентабельно, стильно и красиво благодаря сочетанию белых и серых тонов фасадной штукатурки и вставок из деревянных панелей. Этот дом имеет свое неповторимое лицо, которое отличает его от однообразных загородных домовладений и станет гордостью своих хозяев.
Планировка дома включает в себя просторную кухню-гостиную, два санузла, четыре спальни, одна из которых с собственным гардеробом, котельную и тамбур. Проект создан архитекторами для семьи из 4-5 человек. Проект "Белла" - это идеальный выбор для тех, кто ищет просторный и стильный дом для загородной жизни. Он обладает высоким качеством строительства и привлекательным дизайном, который украсит любой коттеджный поселок. Как построить дом в Тюмени? Как построить дом в Москве? Готовые дома

Представляем проект одноэтажного дома

Площадь дома составляет 142.77 м2

Представляем вам просторный и стильный одноэтажный дом по проекту "Белла" общей площадью 142,77 кв.м. с террасой 23,57 кв.м. и крыльцом 3,07 кв.м.

Проект "Белла" выглядит очень презентабельно, стильно и красиво благодаря сочетанию белых и серых тонов фасадной штукатурки и вставок из деревянных панелей. Этот дом имеет свое неповторимое лицо, которое отличает его от однообразных загородных домовладений и станет гордостью своих хозяев.

Планировка дома включает в себя просторную кухню-гостиную, два санузла, четыре спальни, одна из которых с собственным гардеробом, котельную и тамбур. Проект создан архитекторами для семьи из 4-5 человек.

-2

Проект "Белла" - это идеальный выбор для тех, кто ищет просторный и стильный дом для загородной жизни. Он обладает высоким качеством строительства и привлекательным дизайном, который украсит любой коттеджный поселок.

Понравился проект? Заказать проект или выбрать подобный можно по телефону: +79323212510. Звоните или пишите. Заявки принимаются по вотцап, телеграмм. Готовы рассчитать для вас смету!

Как построить дом в Тюмени?

Как построить дом в Москве?

Готовые дома в Тюмени

Готовые дома в Москве

Земельные участки в Тюмени

Задать вопрос в ТГ

И подписывайтесь на наш канал, чтобы не пропустить новые интересные проекты.

#проектдома #проектодноэтажногодома #построитьдом #купитьдом