Найти в Дзене

Наши проекты

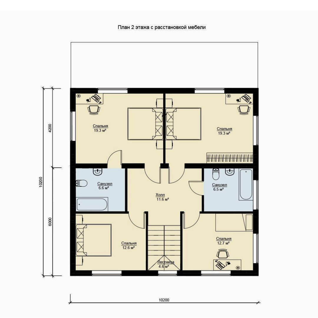
💥 Наши проекты: БП-188/1 💥 ❓Работаете из дома или часто приходится брать работу на дом? Значит в вашем загородном доме обязательно должен быть рабочий кабинет. И среди наших типовых проектов есть дома, где предусмотрен кабинет или дополнительная комната, которую под него можно оборудовать. Например, проект БП-188/1 – двухэтажный шестикомнатный дом с кабинетом на втором этаже. 📌 Кабинет предусмотрен на втором этаже, потому что именно здесь обычно наиболее подходящая обстановка для работы, так как большую часть времени семья проводит на первом этаже. Значит во время работы вам никто не будет мешать. Также на втором этаже находятся: ✔️ 3 спальни; ✔️ 2 санузла; ✔️ холл. Первый этаж состоит из: ✔️ кухни-гостиной с выходом на террасу; ✔️ комнаты с санузлом (может быть детской или гостевой); ✔️ котельной; ✔️ холла. Общая площадь дома составляет почти 187 кв. метров, а периметр – 10,44×10,44 метров. Строительство дома по проекту БП-188/1 доступно с использованием панелей: ◼️ БЭНПАН-Д – двух

💥 Наши проекты: БП-188/1 💥

❓Работаете из дома или часто приходится брать работу на дом?

Значит в вашем загородном доме обязательно должен быть рабочий кабинет. И среди наших типовых проектов есть дома, где предусмотрен кабинет или дополнительная комната, которую под него можно оборудовать.

Например, проект БП-188/1 – двухэтажный шестикомнатный дом с кабинетом на втором этаже.

📌 Кабинет предусмотрен на втором этаже, потому что именно здесь обычно наиболее подходящая обстановка для работы, так как большую часть времени семья проводит на первом этаже. Значит во время работы вам никто не будет мешать.

Также на втором этаже находятся:

✔️ 3 спальни;

✔️ 2 санузла;

✔️ холл.

Первый этаж состоит из:

✔️ кухни-гостиной с выходом на террасу;

✔️ комнаты с санузлом (может быть детской или гостевой);

✔️ котельной;

✔️ холла.

Общая площадь дома составляет почти 187 кв. метров, а периметр – 10,44×10,44 метров.

Строительство дома по проекту БП-188/1 доступно с использованием панелей:

◼️ БЭНПАН-Д – двухслойные железобетонные ребристые утеплённые панели под мокрый фасад;

◼️ БЭНПАН+ – железобетонные ребристые утеплённые панели под вентфасад;

◼️ БЭНПАН Премиум – трёхслойные железобетонные ребристые утеплённые панели с внешним слоем из бетона;

◼️ БЭНПАН Апекс – трёхслойные утеплённые панели с готовым фасадом, предназначенные для бесшовного стыка панелей.

Доступные к заказу комплектации:

◼️ Базовая;

◼️ Тёплый контур;

◼️ Тёплый контур+.

Также возможен заказ Домокомплекта и подбор индивидуальной комплектации.

По всем интересующим вопросам и для расчёта стоимости нужной вам комплектации дома по проекту БП-188/1 обращайтесь в Директ 📩 или по телефону: 📞 +7 (495) 260-98-32

Подробнее ознакомиться с проектом можно на нашем сайте: https://benpan.ru/project/bp-1881/?utm_source=yadzen

#стройкадома #строительстоподключ #строительстводома #строительствокоттеджей #бэнпан #строительствомосква #строимдом #домокомплект #жбпанелибэнпан #недвижимостьвмоскве #домподключмосква