Добавить в корзинуПозвонить
Найти в Дзене

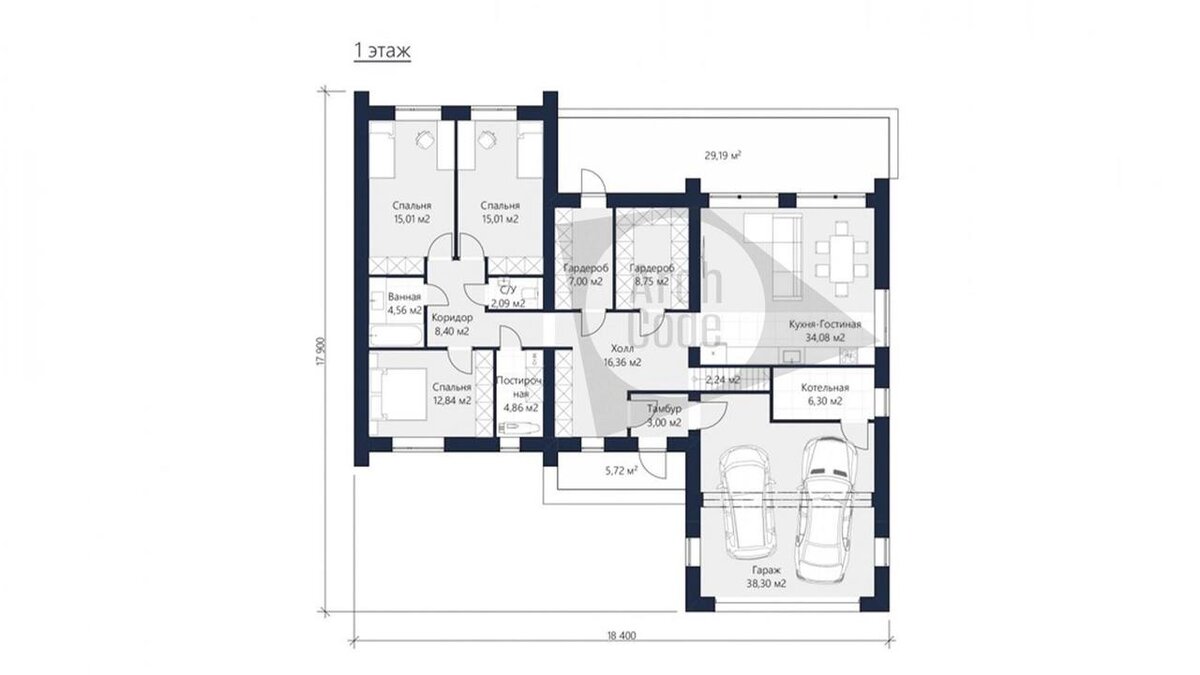
Проект просторного двухэтажного дома в стиле барнхаус - "Марс"

Представляем проект двухэтажного дома в стиле барнхаус Площадь дома составляет 235.66 м2 Современная архитектура представляет стиль "барнхаус", который сочетает в себе минимализм, лофт, деревенский шарм и экологичный дизайн. Этот стиль является модным и захватывающим новым типом частного домостроения, который набирает все большую популярность. Одной из особенностей проекта является просторная кухня-гостиная со вторым светом, которая создаст в доме яркое и уютное настроение. Она станет идеальным местом для проведения семейных мероприятий и отдыха с друзьями. В доме "Марс" также имеется гараж на два автомобиля, который можно легко достичь через тамбур. Это обеспечивает максимальный комфорт и удобство для хранения автомобилей и доступа в дом. Проект "Марс" - это идеальный дом для тех, кто ценит экологически чистый стиль и не желает отказываться от комфорта. Он обеспечивает максимальный комфорт для жизни и отдыха, что делает его идеальным местом для семьи. Как построить дом в Тюмени? Как п

Представляем проект двухэтажного дома в стиле барнхаус

Площадь дома составляет 235.66 м2

Современная архитектура представляет стиль "барнхаус", который сочетает в себе минимализм, лофт, деревенский шарм и экологичный дизайн. Этот стиль является модным и захватывающим новым типом частного домостроения, который набирает все большую популярность.

Одной из особенностей проекта является просторная кухня-гостиная со вторым светом, которая создаст в доме яркое и уютное настроение. Она станет идеальным местом для проведения семейных мероприятий и отдыха с друзьями.

В доме "Марс" также имеется гараж на два автомобиля, который можно легко достичь через тамбур. Это обеспечивает максимальный комфорт и удобство для хранения автомобилей и доступа в дом.

Проект "Марс" - это идеальный дом для тех, кто ценит экологически чистый стиль и не желает отказываться от комфорта. Он обеспечивает максимальный комфорт для жизни и отдыха, что делает его идеальным местом для семьи.

Понравился проект? Заказать проект или выбрать подобный можно по телефону: +79323212510. Звоните или пишите. Заявки принимаются по вотцап, телеграмм. Готовы рассчитать для вас смету!

Как построить дом в Тюмени?

Как построить дом в Москве?

Готовые дома в Тюмени

Готовые дома в Москве

Земельные участки в Тюмени

Задать вопрос в ТГ

И подписывайтесь на наш канал, чтобы не пропустить новые интересные проекты.

#проектдома #проектдвухэтажногодома #построитьдом #купитьдом