Найти в Дзене

Небольшой санузел: советы профессионала по планировке и дизайну

Душевая кабина в прошлом: делаем красивую душевую с трапом и сиденьем Привет! Меня зовут Карен Карапетян, я — архитектор и интерьерный дизайнер. Мы в компании Alexander Tischler проектируем и реализуем интерьеры, а также проектируем и производим корпусную мебель. Я разберу планировку санузла в студии площадью 25 м², которую прислал мне подписчик. В этой студии очень маленький санузел — 3,5 м². На этом примере я покажу, какие допускаются ошибки при проектировании санузлов. Затем я сделаю полноценную перепланировку и предложу свое дизайнерское решение. Расскажу про универсальные решения и принципы, которые вы сможете применить в своем ремонте ванной комнаты. Планировка санузла с душем Начну с того, что здесь странным образом расположен унитаз. Неудачно расположена душевая кабина, тумба с раковиной и стиральная машина — они вытянуты в ряд и поджимают друг друга. Вокруг нет места, чтобы можно было комфортно подойти к каждому предмету. Ванную комнату в своих проектах мы всегда стараемся сде
Оглавление

Душевая кабина в прошлом: делаем красивую душевую с трапом и сиденьем

Привет! Меня зовут Карен Карапетян, я — архитектор и интерьерный дизайнер. Мы в компании Alexander Tischler проектируем и реализуем интерьеры, а также проектируем и производим корпусную мебель.

Я разберу планировку санузла в студии площадью 25 м², которую прислал мне подписчик. В этой студии очень маленький санузел — 3,5 м². На этом примере я покажу, какие допускаются ошибки при проектировании санузлов. Затем я сделаю полноценную перепланировку и предложу свое дизайнерское решение. Расскажу про универсальные решения и принципы, которые вы сможете применить в своем ремонте ванной комнаты.

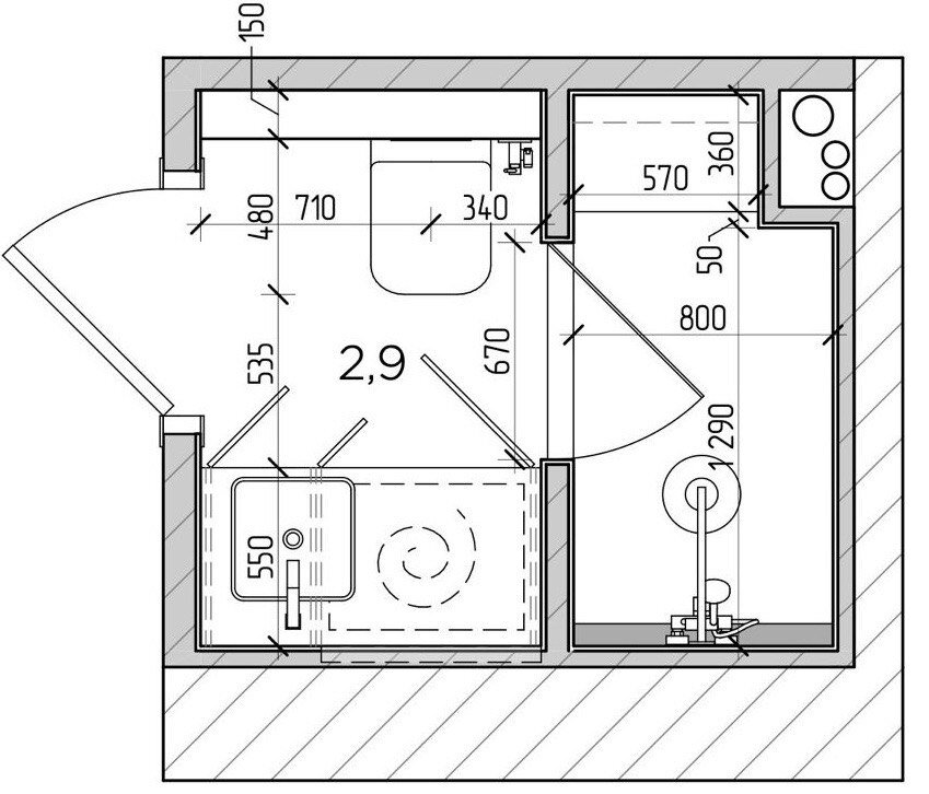
Планировка санузла с душем

Изначальная планировка санузла
Изначальная планировка санузла

Начну с того, что здесь странным образом расположен унитаз. Неудачно расположена душевая кабина, тумба с раковиной и стиральная машина — они вытянуты в ряд и поджимают друг друга. Вокруг нет места, чтобы можно было комфортно подойти к каждому предмету.

Ванную комнату в своих проектах мы всегда стараемся сделать местом для отдыха и релакса с удобным планировочным решением.

Планировка санузла «после»
Планировка санузла «после»

Мой вариант:

  • в этой планировке самый главный элемент — душ. От ее расположения будет зависеть, как будет выглядеть санузел. Я предлагаю выделить отдельную зону для душевой с трапом и сиденьем. Выделить ее перегородками с стеклянной дверью.
  • слева от входа сделать инсталляцию для унитаза, рядом с канализационным стояком.
  • напротив унитаза разместить тумбу с раковиной и стиральной машиной. В своих проектах мы обычно размещаем стиральную и сушильную машины в хозблоке, но из-за маленькой площади студии поставлю в санузле.

Таким образом, в маленьком санузле удалось выделить две зоны: душевую для релакса и комфортное место для утилитарных задач.

Дизайн ванной комнаты с душем

Санузел с душевой зоной
Санузел с душевой зоной

В этом помещении мы используем двери с наличниками: важно о них помнить на этапе проектирования, чтобы избежать вынужденной подрезки под мебель или сантехнику. Дверь переместим так, чтобы унитаз не мешал проходу и открывался вид в сторону душевой.

Дверь с наличниками не мешает мебели и сантехнике
Дверь с наличниками не мешает мебели и сантехнике

Почему мы отказались от душевой кабины: она притягивает излишнее внимание большим количеством пластика и не гармонирует ни с одним дизайн-проектом ванной комнаты.

Единственное решение сделать красивую душевую — в строительном исполнении. Нужно сделать поддон из плитки или использовать готовый, а стены выполнить из стекла или возвести перегородку.

В этом санузле мы сделали стеклянную дверь до потолка и перегородки с отделкой из плитки, чтобы в небольшом помещении установить максимально большую тумбу. Расположить тумбу к стеклу — не самый лучший вариант. В этом случае мебель сложно обслуживать, будет большое скопление влаги и грязи. Поэтому я предлагаю сделать перегородку, чтобы тумба с раковиной была встроена в нишу и занимала каждый свободный сантиметр.

Стеклянная дверь до потолка
Стеклянная дверь до потолка

При проектировании душевой, мы всегда делаем порог на значимой высоте, около 100-200 мм, чтобы взглядом можно было оценить уровень подъема. Это будет лучшим решением, чем стремиться сделать порог близкий к уровню пола и страдать от постоянного удара ногой.

Порог в душевой зоне
Порог в душевой зоне

В каждом санузле должна быть вытяжная вентиляция, а в этом проекте мы сделали даже две. Потому что в своих интерьерах мы стремимся сделать дверь в душевую до потолка: это всегда выглядит монолитно и эффектно. При таком решении, чтобы не возникло излишней влажности, необходимо устанавливать вентиляцию непосредственно в душевой и в основном помещении ванной комнаты. Если нет возможности установить стеклянную дверь, всегда можно заменить на красивый водоотталкивающий текстиль.

Вентиляция на потолке в основном помещении и в душевой
Вентиляция на потолке в основном помещении и в душевой

Даже в самом маленьком санузле можно найти правильное решение и создать такую планировку, которая будет удобна для жизни. Заранее предусмотренные и спроектированные детали не испортят дизайн-проект и результат будет радовать долгие годы.

Про другие правила дизайна и ремонта санузлов рассказал в этом видео

Свою планировку на разбор можно отправить здесь