Найти в Дзене

С чего начинается и чем заканчивается ремонт?

Каждый из нас хочет идеально обустроить свое «гнездышко» и не допустить фатальных ошибок. Для этого нужно понимать этапность выполнения работ, что за чем следует и в какие сроки это реально сделать. Об этапности, ходит много мифов и легенд, в интернете пишут одно, строитель говорит другое, а самому кажется, что ничего сложного нет и я интуитивно чувствую, что именно нужно делать. Наш пост посвящен тому, чтобы расставить все точки над «и», в вопросе ремонта. Мы расскажем о самых важных этапах, которые нельзя смещать и о тех, которые можно объединить, без последствий. Статью можно использовать как руководство в процессе ремонтных работ. Список этапности работ: Теперь разберем каждый из них более подробно. Весь ремонт начинается с идеи. Как говорится, хороший план - это половина успеха - в выполнении ремонтных работ так точно! В нашем случае это дизайн-проект. Он включает в себя не только концепцию по стилю и цветовому решению, но и самое главное - пакет всех необходимых чертежей для реа

Каждый из нас хочет идеально обустроить свое «гнездышко» и не допустить фатальных ошибок. Для этого нужно понимать этапность выполнения работ, что за чем следует и в какие сроки это реально сделать.

Об этапности, ходит много мифов и легенд, в интернете пишут одно, строитель говорит другое, а самому кажется, что ничего сложного нет и я интуитивно чувствую, что именно нужно делать.

Наш пост посвящен тому, чтобы расставить все точки над «и», в вопросе ремонта. Мы расскажем о самых важных этапах, которые нельзя смещать и о тех, которые можно объединить, без последствий. Статью можно использовать как руководство в процессе ремонтных работ.

Список этапности работ:

  1. Планировочное решение
  2. Подготовительные работы.
  3. Демонтажные работы
  4. Возведение перегородок.
  5. Штукатурные работы
  6. Монтаж отопительных коммуникаций
  7. Электромонтаж и теплый пол.
  8. Стяжка пола
  9. Разводка сантехнических коммуникаций
  10. Гипсокартонные работы
  11. Монтаж плитки
  12. Работа подрядчиков
  13. Малярные работы.
  14. Укладка напольных покрытий
  15. Установка мебели и чистовой отделки.
  16. Финишные работы

Теперь разберем каждый из них более подробно.

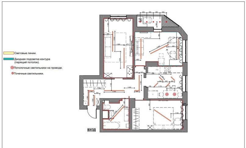
  1. Планировочное решение.

Весь ремонт начинается с идеи. Как говорится, хороший план - это половина успеха - в выполнении ремонтных работ так точно! В нашем случае это дизайн-проект. Он включает в себя не только концепцию по стилю и цветовому решению, но и самое главное - пакет всех необходимых чертежей для реализации этой красоты в жизнь.

Подробная статья о том зачем нужен дизайн проект https://vk.com/@-220854221-zachem-nuzhen-dizain-proekt

Ведь интерьер должен быть не только красивый и уютный, но и, в первую очередь, функциональный и эргономичный.

В этом деле лучше обратиться к специалисту, который сэкономит ваше время, деньги и здоровье. Но если вы решили самостоятельно заняться обустройством жилья, тогда вам «карты в руки» и знание последовательности в помощь, ведь это залог успешного ремонта.

Дизайн проект в полном объеме изготавливается за 4-6 недель, поэтому нужно позаботится о нем заранее. Конечно возникают ситуации, когда он нужен еще «вчера», на это есть экспресс дизайн, конечно он будет менее емким, но он поможет решить основные задачи, такой дизайн реально воплотить за 2-3 недели.

1 из 3
1 из 3
  1. Подготовительные работы.

Казалось бы, какая подготовка? «Я уже готов, давайте начинать». Но начать нужно именно с нее!

В основном стартом ремонта является демонтаж, но и о нем мы будем говорить в следующем этапе. Зачастую в помещении присутствуют сохраняемые элементы интерьера, это могут быть: подоконники, входные двери, системы отопления и т.д. И так как процесс ремонта «не чистое дело», эти элементы необходимо обезопасить от грязи и возможных повреждений.

Например, вы решили не менять входную дверь. И если ее не защитить, при помощи оргалита или защитной пленки, то она неизбежно будет испорчена, при заносе материалов или вывозе мусора.

Весь процесс не займет много времени и избавит от многих проблем в будущем.

  1. Демонтажные работы

Теперь можно начинать все крушить. Как правило в новостройках, оштукатуренные стены, стяжка пола (если они сделаны застройщиком) низкого качества и на это влияет много факторов, несоблюдение температурных режимов при просушивании или плохая подготовка основания и т.д. Или же вы решили сделать перепланировку, например расширить сан. узел или кухню. Приходится прибегать к демонтажу, это нормальное явление и происходит в 80% случаев.

Что говорить о вторичном жилье, конечно если это косметический ремонт, можно обойтись демонтажем, обоев и напольного покрытия. Но если вы затеяли капитальный ремонт, нужно демонтировать все до основания, включая электрические сети и коммуникации воды и отопления.

На этот этап нужно закладывать 1-3 недель в зависимости от масштаба погрома. Пока вокруг хаос, лучше отказаться от следующего этапа и закончить начатое, вдруг появятся новые идеи.

-3
  1. Возведение перегородок

И только сейчас начинается процесс созидания.

В подавляющем большинстве перегородки возводят из пеноблоков, это легкий по весу и большой по габаритам материал в отличии от кирпича.

Также можно возводить перегородки из гипсокартона (обязательно в 2 слоя), если вам не нужна толстая конструкция. В гипсокартонных перегородках, важно не забыть сделать закладные, если вы планируете, что-то к ним монтировать(повесить полочку, телевизор и т.д.). Но с гипсокартоном, лучше начать работу позже, подробнее об этом ниже.

На этот этап в среднем уходит 1-1,5 недели.

-4
  1. Штукатурные работы

Приступаем к отделке. На данном этапе стены становятся ровными. Для их отделки используется штукатурные смеси 2-х видов гипсовая или цементная. Цементная подходит для для сухих и влажных помещений, а гипсовая в свою очередь, только для сухих. Штукатурка осуществляется по маякам (в основном это оцинкованные металлические профили). Опытные строители после оштукатуривания удаляют эти маяки, это важно и нужно делать, чтобы так же избежать проблем в будущем.

Это емкий процесс и на него нужно закладывать от 2 до 4 недель, в зависимости от масштаба работ. Если у вас работает бригада мастеров штукатурные работы и монтаж перегородок, можно сделать параллельными процессами.

-5
  1. Монтаж отопительных коммуникаций

На этом этапе делается разводка сетей отопления. Если в доме центральная сеть, это делается по полу (В этих местах можно сэкономить на теплом полу). Осуществляется подводка к радиаторам и делается их черновой монтаж. Черновой монтаж радиаторов, означает, что их нужно установить на штатные места, подключить и проверить работоспособность, после чего демонтировать и обезопасить о грязи и повреждений.

Производится сборка коллектора отопления

На этот этап уходит 1-1,5 недели.

-6
  1. Электромонтаж и теплый пол

Электрику в квартире можно сравнить с венами в человеческом теле. Это спрятанные невидимые нити, которые обеспечивают, функциональность всего дома. И чем качественнее ваши «вены», тем комфортнее ваша жизнь.

Электрика проводится либо по полу, либо по потолку. Разница в отделочных материалах потолка, делаете вы натяжной потолок, гипсокартоновый или просто красите.

Так же есть разделение электропроводки, это слаботочные сети, основные потребители и силовые кабели. К силовым подключаются мощные потребители, такие как духовой шкаф, варочные панели, а к слаботочным относят интернет, телевидение, противопожарные системы и т.д. Кстати важный совет, до этого этапа нужно позаботится о конфигурации будущей кухни, именно там допускаются серьезные ошибки с электрикой, что ведет к «переделкам».

Не забываем о монтаже коммуникаций для кондиционеров! Для этого лучше использовать подрядчиков, которые занимаются этим профессионально.

Важно понимать, что электрика на данном этапе остается в черновом варианте, это значит, что розетки, выключатели, т.е все чистовые материалы монтируются позже, так же как щиток и сами кондиционеры. На их местах, остаются «хвосты» провода, примерно 0,5 м, чтобы в случае небольших изменений, была возможность перенести источник.

Прокладывается кабель тёплого пола, для равномерного прогрева он должен оказаться в середине слоя стяжки. (А датчик теплого пола, уже нужно установить).

Здесь большой объем работы и займет он 2-3 недели минимум.

1 из 3
1 из 3
  1. Стяжка пола

Существуют разные виды стяжек.

-Сухая - листовой материал с изоляционным слоем. Легкая, чаще всего используется в старом фонде, боится контактов с влагой.

-Мокрая - традиционно изготавливается на месте ручным способом (замешивается в ведре), трудоемкая в процессе производства и долго сохнет, но применяется довольно широко.

-Полусухая. Самый оптимальный вариант, быстро сохнет, позволяет получить ровную поверхность, но делается при помощи специального оборудования.

Важно, чтобы в мокрых зонах была произведена гидроизоляция (или по всему помещению, если это требование Управляющей компании)

На нанесение стяжки и ее правильное высыхания, потребуется 3-4 недели. Это трудоемкий и ответственный этап и его нельзя комбинировать с другими.

-8
  1. Разводка сантехнических коммуникаций

Как правило стяжку пола в сан.узле делают в последнюю очередь. Т.к . аналогично электрике и отоплению, некоторые элементы можно спрятать в ней. Например канализацию или трубы подведения горячего и холодного водоснабжения (не забывать о коммуникациях на кухне). Здесь важно соблюсти уклоны отвода канализации, сечение труб и их подключение. Для этого важно иметь тех. карты сантехники. Тут же вам пригодится знание конфигурации будущей кухни, для монтажа вытяжки в нужном месте.

На этом же этапе монтируются все скрытые системы: инсталляция, части встраиваемых смесителей.

На этот этап уйдет около 1-2 недель.

1 из 2
1 из 2
  1. Гипсокартонные работы

Вот мы и вернулись к гипсокартону. На этом этапе монтируются, необходимые, ниши, короба, перегородки, шумоизоляция, потолки (если вы выбрали именно этот вариант отделки).

Не лишним будет иметь на объекте все приборы которые будут монтироваться внутрь гипсокартона (светильники, розетки и т.д.). Исправить неверное отверстие в ГКЛ, довольно накладное занятие, лучше позаботится об этом заранее.

Этот этап займет около 1-2 недель, а может и пару дней в зависимости от количества монтируемых конструкций.

-10
  1. Монтаж плитки

Настало время для первой чистовой отделки, при этом работенка довольно грязная.

К этому моменту, вся плитка должна быть на объекте, поэтому лучше позаботится о ее покупке заранее, бывает, что ее приходится ждать ±2 месяца. Так же ее можно разложить на объекте, чтобы посмотреть, откуда лучше начать и какое направление укладки выбрать, в том случае, если вы не продумали это заранее или не пользуетесь дизайн проектом (В нем учитываются все эти тонкости).

Затирка швов так же производится на этом этапе, но можно и перенести на несколько этапов ниже, при монтаже напольных покрытий.

На монтаж плитки потребуется около 3-4 недель. Разводку сантехники и гипсокартоновые работы можно выполнять параллельно.

-11
  1. Работа подрядчиков

На этом этапе монтируются подоконники, окна, лепнина и все, что оставляет после себя грязь.

От сложности работ может потребоватся от 1 до 2 недель.

-12
  1. Малярные работы.

После этого этапа, ваш дом начнет потихоньку «показывать свое лицо». Здесь делается финишная шпаклевка стен. Подготовка под покраску, поклейку обоев или нанесение декоративной штукатурки. Требования к подготовке для покраски более строгие, чем к декоративной штукатурке или поклейке обоев. Плохо подготовленная окрашенная стена, покажет все свои недостатки. И да покраска стен и декоративная штукатурка, так же входит в этот этап.

Этот этап так же является трудоемким и занимает 2,5-3 недели. Параллельно этот этап выполнять не получится, т.к. это чревато доделками и переделками.

1 из 2
1 из 2
  1. Укладка напольных покрытий

Теперь приступаем к укладке оставшегося напольного покрытия, ламинат, пвх плитка, мармолеум, инженерная доска и т.д. Возможно где то потребуется наливной пол для финишного выравнивания стяжки или подведения одного уровня разных напольных покрытий. Так же может потребоваться подложка или клей. Соответственно к этому моменту все материалы длолжны быть на объекте.

Как мы говорили выше на этот этап можно перенести затирку швов в керамической плитке.

Этот этап займет 1-3 недели

-14
  1. Установка мебели и чистовой отделки.

Огромный путь позади. Но не время расслабляться. Здесь будет устанавливаться все, что вы будете видеть, каждый день.

  • сборка и монтаж мебели, и дверей.
  • монтаж кухни
  • росписи стен
  • монтаж витражей и зеркал
  • монтаж кондиционеров и электрощитка
  • установка чистовой сантехники

Тут так же понадобится не менее 2 недель.

1 из 2
1 из 2
  1. Финишные работы

Остались последние штришки.

  • смонтировать плинтуса
  • повешать люстры
  • смонтировать розетки и выключатели.
  • развесить аксессуары
  • и самое важно клининг (Лучше всего нанять специалистов, потому что уборка после строительства, то еще занятие, поберегите себя).
-16

Можно справится за 1-2 недели

Ну вот и все!!! Можно наслаждаться!!!

P.S. Черновая отделка скрыта от глаз, но является фундаментом. Не стоит экономить. Ведь проще заменить неудачный диван, чем переделывать вышедшую из строя электрику или отслоившуюся штукатурку.

Подводя итог, качественный ремонт, это не быстрое занятие. В зависимости от объема можно закончить его за 3-6 месяцев. Так же он требует разносторонних знаний и навыков. Как минимум с дизайн проектом, можно сильно упростить свою жизнь, а с авторским надзором и вовсе не отвлекаться от более важных вещей.

Записаться на консультацию или узнать стоимость дизайн проекта Вашего дома: https://vk.com/im?media=&sel=-220854221

Подробнее о стоимости и набора услуг дизайн студии AliVa Interior можно ознакомится: https://vk.com/uslugi-220854221?screen=group

Подписывайтесь на наше сообщество в ВК и Яндекс Дзен, у нас много полезной информации: https://vk.com/public220854221 / https://dzen.ru/profile/editor/id/6478310804a0d171aa3f1c54