Добавить в корзинуПозвонить
Найти в Дзене
DESIGNER

Поразительное преображение крохи на 18м² в уютную и многофункцинальную квартиру на 25м² со спальней и рабочей зоной.

Здравствуйте и добро пожаловать на канал DESIGNER. Подписывайтесь и ставьте лайки - это очень помогает развитию канала. Архитектор: Анна Новопольцева Материалы взяты из: https://vk.com/kvartirastudio Сегодня мы рассмотрим очередной интерьер крохотной квартиры, дизайнер которой смог компенсировать недостаток площади очень высокими потолками. Площадь помещения равна всего 18м², но за счёт потолка высотой 4,2м получилось прибавить еще 7м² к общему размеру квартиры. Итог – 25м². Неплохой результат, но всё равно достаточно скромно. Здесь же пригодились другие навыки дизайнера – организация пространства. План квартиры: Визуальное оформление. В интерьере просматриваются элементы классического стиля в сочетании с современным минимализмом. Основным цветом выступает зелёный – смотрится очень благородно, а древесина только усиливает данный эффект. Также в дизайне не обошлось без белого цвета и серого оттенка. Прихожая. Фактически вся прихожая зона выполнена в зелёном цвете и даже двери подобраны
Оглавление

Здравствуйте и добро пожаловать на канал DESIGNER. Подписывайтесь и ставьте лайки - это очень помогает развитию канала.

Архитектор: Анна Новопольцева

Материалы взяты из: https://vk.com/kvartirastudio

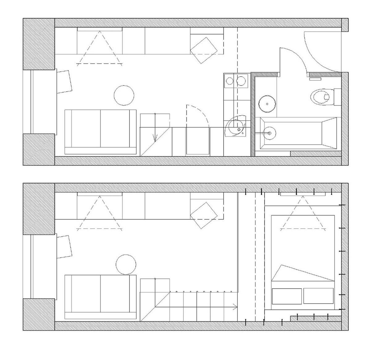
Сегодня мы рассмотрим очередной интерьер крохотной квартиры, дизайнер которой смог компенсировать недостаток площади очень высокими потолками. Площадь помещения равна всего 18м², но за счёт потолка высотой 4,2м получилось прибавить еще 7м² к общему размеру квартиры. Итог – 25м². Неплохой результат, но всё равно достаточно скромно. Здесь же пригодились другие навыки дизайнера – организация пространства.

План квартиры:

Визуальное оформление.

В интерьере просматриваются элементы классического стиля в сочетании с современным минимализмом. Основным цветом выступает зелёный – смотрится очень благородно, а древесина только усиливает данный эффект. Также в дизайне не обошлось без белого цвета и серого оттенка.

Прихожая.

Фактически вся прихожая зона выполнена в зелёном цвете и даже двери подобраны в соответствие со всем интерьером. Напольным покрытием служит светлый ламинат.

-2

Несмотря на узкую и вытянутую планировку, прихожую получилось более чем разумно обставить. Есть место под обувь, верхнюю одежду, а также встроен большой шкаф-купе с зеркалом.

-3

Обеденная зона.

Далее, при переходе в жилую зону, установлен складной стол, который является основной частью обеденной зоны совместно со стулом. И по размеру и по сути своей конструкции столовая группа выглядит неуютно и пригодится только лишь для быстрого одинокого перекуса.

-4

Кухня.

Кухню удалось уместить в угол под лестницей на антресоль, что хоть и экономит общее пространство, имеет ряд минусов: во-первых, отсутствие верхних шкафов значительно уменьшает систему хранения, во-вторых, всегда есть шанс «вписаться» головой в лестницу.

Тем не менее, как мы видим, кухня имеет определённый функционал. В наличии есть базовый набор техники, хоть и местами в уменьшенном размере, пространство для готовки и скромные по размеру нижние шкафы, как основная система хранения.

-5

Гостиная.

Гостиная получилась не совсем стандартной. С одной стороны, как обычно, расположен диван, в данном случае изумрудного цвета, а с другой стороны было решено поставить большой белый шкаф.

-6

Чаще всего вместо шкафа напротив дивана организуют ТВ-зону.

-7

Рабочая зона.

За счёт оптимизации места под подоконником получилось организовать рабочее пространство. По сути это подвесной стол и стул чёрного цвета.

-8

Спальня.

На «втором» этаже дизайнер оформил полноценную спальню с большой кроватью, ТВ-зоной и относительно небольшой системой хранения.

-9

Смотрится необычно, но на столь скромной площади представить спальню лучше довольно сложно.

-10

Ванная комната.

Одно из самых «конфликтных» со всей остальной квартирой место. Связано это с выбранными цветами дизайна. В данном случае преобладают светлые тона и нет ни намёка на зелёный цвет.

-11

Само же обустройство более чем стандартное: унитаз, раковина с нишей под стиральную машинку, ванна. Единственное, складывается ощущение, что в ванной комнате получился очень низкий потолок за счёт организации над ней спальни.

-12

Что в итоге?

Удивительно, как некая задумка и находчивость могут моментально изменить жизнь человека к лучшему. Это же произошло и в данном случае. Дизайнер смог на крайне скромной площади организовать полноценное жильё со всеми удобствами и стильным интерьером.

На этом всё, не забывайте подписываться на канал и ставить лайки. До новых встреч.