Добавить в корзинуПозвонить
Найти в Дзене
Золотая Гавань

Современный дом 155 кв.м в Ленинградской области.

Мы создали проект Фэрбанкс для тех, кто ценит комфорт и уют. Этот дом идеально подойдет для семьи, где каждый сможет найти свое собственное пространство.
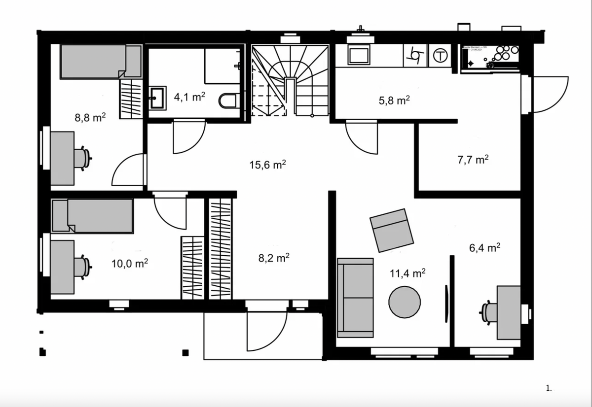
В доме предусмотрено все: 2 спальни и хозяйская мастер-спальня с выходом на балкон, санузлом и гардеробом. Гостиная на первом этаже с панорамным видом на участок, техническое помещение, санузел на каждом из этажей. Особенностью дома является наличие просторной гостиной на 2 этаже, которая позволяет проводить время с комфортом всем поколениям семьи.
Мы продумали в планировке данного проекта все до мелочей, чтобы вы смогли наслаждаться загородной жизнью, с первой минуты в вашем новом доме.
Площадь дома: 155 кв.м
Площадь террасы: 21 в.м
В доме расположены:
3 спальни
2 санузла
2 гостиные
Тех-помещение
Балкон
Стоимость дома:
По каркасной технологии 4 674 000 рублей
Из газобетона 5 453 000 рублей
Любой из наши домов вы можете приобрести в ипотеку по ставке от 2% , подробнее рассказать об условиях и подобрать лучшие для вас сможет

Мы создали проект Фэрбанкс для тех, кто ценит комфорт и уют. Этот дом идеально подойдет для семьи, где каждый сможет найти свое собственное пространство.

проект дома Фэрбанкс
проект дома Фэрбанкс


В доме предусмотрено все: 2 спальни и хозяйская мастер-спальня с выходом на балкон, санузлом и гардеробом. Гостиная на первом этаже с панорамным видом на участок, техническое помещение, санузел на каждом из этажей. Особенностью дома является наличие просторной гостиной на 2 этаже, которая позволяет проводить время с комфортом всем поколениям семьи.

-2


Мы продумали в планировке данного проекта все до мелочей, чтобы вы смогли наслаждаться загородной жизнью, с первой минуты в вашем новом доме.

-3


Площадь дома: 155 кв.м
Площадь террасы: 21 в.м

В доме расположены:
3 спальни
2 санузла
2 гостиные
Тех-помещение
Балкон

-4


Стоимость дома:
По каркасной технологии 4 674 000 рублей
Из газобетона 5 453 000 рублей

Любой из наши домов вы можете приобрести в ипотеку по ставке от 2% , подробнее рассказать об условиях и подобрать лучшие для вас сможет наш специалист.

Полное описание комплектаций и характеристик вы можете посмотреть на нашем сайте
https://gharbor.ru/product/karkas-doma/proekt-doma-fe.. Или пришлите + в комментарии и мы отправим вам всю информацию по проекту.

#каркасныйдом #домвипотеку #домаподключ #доммечты #барнхаус #barnhouse #деревянныйдом #экодом #энергоэффективныйдом #ипотека #каркасныедома #строительстводома #льготнаяипотека #каркасник #домподключ #загородныйдом #загородноестроительство
#газобетон #газобетонныедома #домизгазобетона #строимдом #каркасныйдомспб #каркасспб #скандинаскийдом #финскийдом #скандидом #строительстводомаспб #строительствоспб #проектдома #стильныйдом #двухэтажныйдом #современныйдом