Найти в Дзене
ИДЕИ ВАШЕГО ДОМА

Одноэтажный дом с террасой: 7 классных проектов с планировками (103 фото)

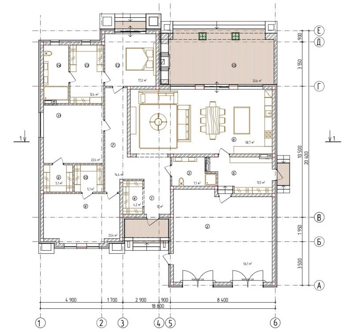
Семейная вилла, барнхаус в скандинавском стиле или минималистичный микродом? Собрали разноплановые проекты одноэтажных домов, которые объединяет наличие уютной террасы. Не все хотят каждый день подниматься и спускаться по лестнице. Для детей же и пожилых людей это просто небезопасно. Именно поэтому частное жилье с двумя или тремя этажами выберет не каждый. А вот что точно понравится всем — это возможность отдохнуть на свежем воздухе. В этой статье собрали классные проекты одноэтажных домов с террасой: планировки и фото прилагаются. Смотрите и вдохновляйтесь! Этот большой дом выглядит так, будто находится на средиземноморском побережье. Именно такого эффекта и добивались заказчики, мечтавшие об итальянской вилле, но в пределах родной страны. Ниже — планировка этого одноэтажного дома с террасой. Автор проекта разрабатывала планировочное решение с нуля и учла все пожелания хозяев: один этаж, общественный и приватный блок, спальни со своими гардеробными и мастер-ванная при родительской ком
Оглавление

Семейная вилла, барнхаус в скандинавском стиле или минималистичный микродом? Собрали разноплановые проекты одноэтажных домов, которые объединяет наличие уютной террасы.

Проект компании DEN, denoutdoors.com
Проект компании DEN, denoutdoors.com

Не все хотят каждый день подниматься и спускаться по лестнице. Для детей же и пожилых людей это просто небезопасно. Именно поэтому частное жилье с двумя или тремя этажами выберет не каждый. А вот что точно понравится всем — это возможность отдохнуть на свежем воздухе. В этой статье собрали классные проекты одноэтажных домов с террасой: планировки и фото прилагаются. Смотрите и вдохновляйтесь!

1. «Итальянская» вилла на юге России

Этот большой дом выглядит так, будто находится на средиземноморском побережье. Именно такого эффекта и добивались заказчики, мечтавшие об итальянской вилле, но в пределах родной страны. Ниже — планировка этого одноэтажного дома с террасой.

   Проект архитектора Натальи Сапелкиной
Проект архитектора Натальи Сапелкиной

Автор проекта разрабатывала планировочное решение с нуля и учла все пожелания хозяев: один этаж, общественный и приватный блок, спальни со своими гардеробными и мастер-ванная при родительской комнате. В доме 4 разных входа, один из которых ведет на большую крытую террасу. Она примыкает к кухне-гостиной и предназначена для шумных обедов с родственниками и друзьями — совсем как в Италии! А чтобы делать это не только в теплое время города, здесь установили сразу два обогревательных прибора: камин и яркую акцентную печь. Также тут есть гриль для готовки на свежем воздухе.

Интерьер обустроили так, чтобы он отвечал выбранной южной концепции. Для этого выбрали кантри и выдержали все его каноны: камень в отделке, природная гамма, массивная деревянная мебель и природный декор. Стиль поддерживают обои с цветочным узором в спальне, много зелени, винтажные вещи и каменные раковины в ванной.

2. Микродом с треугольной крышей и большой террасой

Этот компактный домик идеально вписывается в окружающую среду, где бы его ни поставили.

   Проект компании DEN
Проект компании DEN

Проект типовой, с возможностью выбора цветовой схемы: светлые или темные фасады и, соответственно, светлый или темный интерьер. Комбинировать можно любым образом. Жилье рассчитано на 2-4 человека, внутри выделена просторная общая зона с линейным кухонным гарнитуром, столовой и мягкой группами. Спальня — изолированная, рядом находятся санузел и отдельный домашний кабинет. Перед входом — большая открытая терраса, представляющая собой деревянный настил. Ее можно обустроить под свои нужды: поставить стол для трапез на свежем воздухе, шезлонги, чтобы загорать на солнце, или, например, сделать спортивный уголок. На фото ниже — экстерьер одноэтажного дома с террасой.

Треугольная крыша делает потолок очень высоким, благодаря чему внутри создается ощущение простора, несмотря на скромную площадь. Отделка лаконичная: краска и деревянный пол везде, кроме санузла (он полностью облицован светло-серым керамогранитом). Мебель выбрали минималистичную, с гладкими фасадами и однотонной обивкой. Это позволяет сфокусировать внимание на пейзаже за окном, который прекрасно просматривается через панорамные окна. Они есть и в общей, и в приватной зоне (а в спальне предусмотрен отдельный выход на открытую площадку).

3. Чистый минимализм

Площадь этого дома — почти 200 квадратов. Он находится в одном из коттеджных поселков Ростова-на-Дону и предназначен для семьи с ребенком

   Проект студии ТЧК
Проект студии ТЧК

Один этаж был пожеланием заказчиков. Также они попросили спланировать пространство так, чтобы из больших окон были видны красивые лужайки. В итоге авторы проекта спроектировали просторную постройку, состоящую из нескольких блоков, объединенных под одной крышей. Архитектура — современная, под стать лаконичному интерьеру и ландшафту. В глаза сразу бросается просторная терраса. Она полностью открытая, но крыша защищает ее от палящего солнца и осадков в плохую погоду. Здесь разместили мягкую группу, а свободного места хватает для детских игр рядом с родителями.

Интерьер оформлен в стиле минимализм с элементами конструктивизма и модернизма. Как и хотели заказчики, здесь вообще нет ярких цветов и обилия декора. Палитра — максимально сдержанная, почти ахроматическая. Ее разбавляют глубокие оттенки коричневого и светлые бежевые тона в детской. Вся мебель — лаконичной формы, пространство открытое, зоны плавно перетекают друг в друга.

4. Барнхаус в скандинавском стиле

Этот проект — пример готового модульного дома под ключ, который уже заранее собран на фабрике и транспортируется сразу на участок. Таким образом значительно сокращается срок строительства — по сути, достаточно просто установить конструкцию в желаемом месте.

   Проект компании Modul2
Проект компании Modul2

Жилье предназначено для круглогодичного проживания: проведены все коммуникации, есть электропроводка, бойлер, сантехника и т.д. Внутри выделено две комнаты плюс санузел и входная зона. С одной стороны пристроена открытая терраса, к которой ведет отдельное крыльцо. Она небольшая, но места достаточно, чтобы организовать уголок для отдыха и каждый день любоваться окружающей природой.

Интерьер оформлен в лучших традициях скандинавского стиля: спокойная палитра, построенная на базовых оттенках, натуральные материалы, лаконичная мебель и немного акцентного декора. В кухне-гостиной установлена современная печка, которая добавляет уюта в любое время года. В спальне выделено место под мини-кабинет, что позволяет комфортно работать. Санузел оснащен всем необходимым: помимо туалета и раковины, на небольшой площади разместили душевую кабину и поставили стиральную машинку.

5. Прямые линии и терраса-аквариум

Это постройка — яркий образец микрожилья. Жилая площадь — всего 20 квадратных метров, но здесь есть все необходимое для 1-2 человек.

   Проект архитектора Кристиана Тонко
Проект архитектора Кристиана Тонко

Особого внимания заслуживает архитектура. На первый взгляд кажется, что это типичный домик-контейнер, которые в последние годы стали очень популярны. Но одна деталь делает всю композицию интереснее — это просторная терраса, обрамленная акцентными черными балками. Они напоминают каркас аквариума, тем более задняя стена — полностью из стекла. В итоге постройка разделена как бы на две одинаковые части: жилую и зону отдыха. На деревянном настиле достаточно места для мягкой или обеденной группы, спортивного инвентаря и, если необходимо, например, мини-сада в контейнерах.

Жилая часть разделена на 4 одинаковых по размеру блока: кухню, гостиную (ее же можно использовать как кабинет), спальню и ванную. Каждая зона оснащена всем, что нужно для комфортной жизни: здесь есть посудомоечная и стиральная машины, вместительные шкафы, столик, за которым можно работать, современная сантехника. Стиль — минимализм, с доминирующими натуральными материалами, которые визуально и концептуально связывают интерьер и природу, которая просматривается из каждого уголка благодаря сплошному панорамному остеклению.

6. Проект одноэтажного каркасного дома с террасой

Этот проект — яркий пример современного комфортного жилья для семьи. Коттедж подойдет для тех, у кого есть один или даже два ребенка.

   Проект компании «Колосов Хауз»
Проект компании «Колосов Хауз»

Общая площадь — 78 квадратных метров. Планировкой предусмотрено два входа с противоположных сторон: главный (из кухни-гостиной) — с выходом на уютную огороженную перилами террасу. Второй — из приватной части. В итоге нет необходимости огибать все строение, если нужно попасть на ту или иную часть участка либо, наоборот, внутрь.

Дизайн современный, но с неоклассическими нотками: они прослеживаются в формах мебели, декоративной резьбе, деталей под золото и медь. Пространство решено как типичная евротрешка — только не в квартире, а за городом. Почти половину площади занимает просторная кухня-гостиная столовая, две комнаты поменьше отведены под мастер-спальню и детскую. Санузел один, совмещенный. Есть хозпомещение.

7. Дом, который можно взять с собой

Площадь этого домика — всего лишь 41,7 кв. м. Но здесь есть все необходимое для комфортного летнего (и не только!) отдыха.

   Проект архитектора Марины Мицель
Проект архитектора Марины Мицель

Конструкция модульная, ее можно собрать в любом месте, а затем, если нужно, разобрать и перевезти в другое. Габариты: 4 м в ширину, 12,5 м — в длину, 3,3 м — в высоту. Это позволяет организовать доставку постройки без специального сопровождения. Визуально домик напоминает вагон или контейнер для грузоперевозок — одна из самых популярных конструкций для мобильного микрожилья. Террасу пристроили уже после установки на нужном участке. Владельцы могут обустроить ее как угодно: здесь удобно загорать, пить кофе утром, заниматься спортом.

Внутри есть все стандартные зоны: кухня, гостиная, спальня с рабочим местом, санузел и системы хранения. Это закрывает базовые нужды потенциальных хозяев и делает дом пригодным для постоянного проживания. Интерьер оформили в современном стиле. Дизайн — лаконичный, под стать простым фасадам. Он не отвлекает внимание от видов за окном и при этом достаточно уютным. На это работают светлая деревянная отделка, мягкая мебель, декор и текстиль. Интересно здесь оформлена кухня: гарнитур как бы обрамляет окно, занимая полностью всю торцевую стену, и стекло таким образом заменяет фартук. Это дает возможность готовить и мыть посуду, любуясь природой.