Добавить в корзинуПозвонить
Найти в Дзене
Филдс

Интерьер, который легко менять по настроению: евротрешка 57 м² в стиле ваби-саби для девушки

Архитектор Лилия Кайсарова оформила евротрешку площадью 57 м² для молодой девушки. В квартире часто останавливаются ее родители, поэтому интерьер старались сделать ярким, но в то же время универсальным и спокойным, чтобы люди из разных поколений чувствовали себя одинаково комфортно. За основу взяли стиль ваби-саби. Планировка до и после В квартире выполнили небольшую перепланировку: санузел сделали совмещенным, вход в него перенесли из прихожей в коридор. В остальном помещения остались в своих границах: две изолированные комнаты отвели под спальню и кабинет, который также служит гостевой, кухня, небольшая гостиная и прихожая формируют просторную общую зону. Кухня-гостиная Стены покрыли декоративной штукатуркой, ее фактура напоминает мягкий рисунок шелка. С помощью напольного покрытия выполнили зонирование: на кухне использовали керамогранит, в гостиной — кварцвинил. Спальня Стены в спальне также отделали штукатуркой, но здесь покрытие имеет более брутальную фактуру, напоминающую бе
Оглавление

Архитектор Лилия Кайсарова оформила евротрешку площадью 57 м² для молодой девушки. В квартире часто останавливаются ее родители, поэтому интерьер старались сделать ярким, но в то же время универсальным и спокойным, чтобы люди из разных поколений чувствовали себя одинаково комфортно. За основу взяли стиль ваби-саби.

  • Общая площадь: 56,71 м²
  • Место: Москва
  • Тип дома: ЖК «Метрополия»
  • Количество комнат: евротрешка
  • Кто здесь живет: девушка
  • Автор проекта: Лилия Кайсарова (студия Sloyarch)
  • Стилист: Настасья Корбут
  • Фото: Дина Александрова

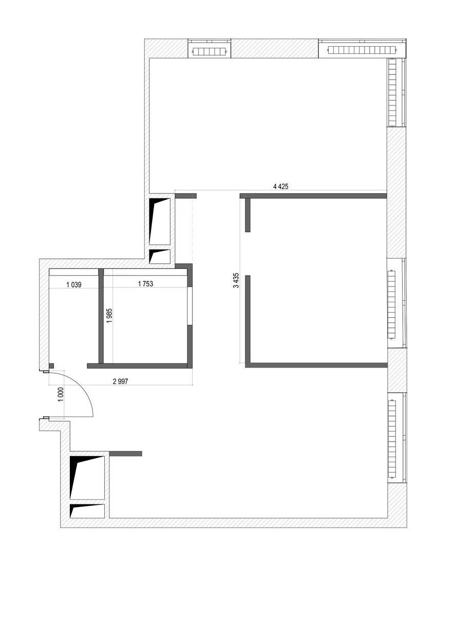
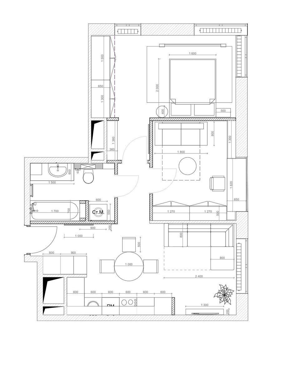
Планировка до и после

В квартире выполнили небольшую перепланировку: санузел сделали совмещенным, вход в него перенесли из прихожей в коридор. В остальном помещения остались в своих границах: две изолированные комнаты отвели под спальню и кабинет, который также служит гостевой, кухня, небольшая гостиная и прихожая формируют просторную общую зону.

Кухня-гостиная

Стены покрыли декоративной штукатуркой, ее фактура напоминает мягкий рисунок шелка. С помощью напольного покрытия выполнили зонирование: на кухне использовали керамогранит, в гостиной — кварцвинил.

Спальня

Стены в спальне также отделали штукатуркой, но здесь покрытие имеет более брутальную фактуру, напоминающую бетон. Обивка кровати сочетается по цвету с фасадами встроенного шкафа и ковром. У входа в комнату предусмотрели еще одну систему хранения.

Кабинет

Шкаф у стены с окном и рабочий стол представляют собой единую мебельную конструкцию. Диван превращается в гостевое спальное место. Напротив него разместили дополнительные системы хранения.

Прихожая и коридор

Нейтральную отделку коридора и прихожей также оживили подсветкой. Проход в приватную часть квартиры подчеркнули световым порталом. Кроме того, подсветили зеркало у входа, интересно обыграв его асимметричную форму. Ярким цветовым и тематическим акцентом стал игрушечный болид.

Санузел

Ванную отделали керамогранитом под мрамор. Нейтральную основу освежили плиткой с растительным орнаментом в зоне раковины. Поскольку санузел сделали совмещенным, организовали достаточное количество систем хранения, а в нише у входа удалось свободно разместить мини-постирочную.

Интересные мнения в комментариях приветствуются. Если материал понравился — ставь лайк!

🖤 Филдс — это не только блог на Дзене, но и магазин дизайнерских предметов интерьера. Заходите на сайт, чтобы увидеть мебель, которую дизайнеры выбирают для своих проектов.