Добавить в корзинуПозвонить
Найти в Дзене

Планировка ТРЕШКИ для семьи с ребенком⁠⁠

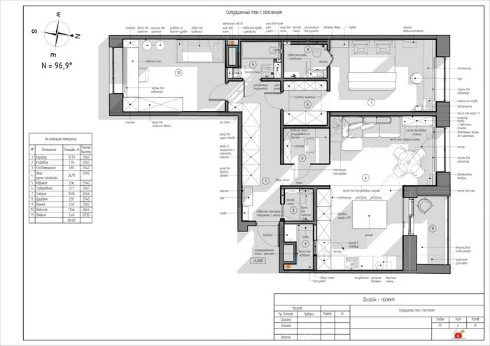
Сегодня мы расскажем, как сделать планировку в 3-комнатной квартире для семьи с ребенком. Метраж квартиры составляет 89 кв.м. Дополнительная информация о семье — в доме будет жить большая собака. В квартире есть минусы, которые надо проработать при составлении плана ремонта: Для создания зон комфортного проживания организуем пространство помещений: Прихожая. Душевая для собаки. Оборудуем дверь так, чтобы она открывалась наружу. Сделаем ее из двух створок, одна из которых будет меньше по размеру. Такой вариант позволяет открывать дверь и при этом не мешать соседям. К тому же, появляется выделенная грязная зона. Оформим душевую для собаки со входом из прихожей. Зона рядом с кухней. Прилежащий к кухне санузел переоборудуем под кладовку, увеличив место для хранения кухонной утвари и продуктов. Кухня и гостиная. Создадим остров на кухне, под которым собака сможет есть и отдыхать. В гостиной спланируем место для дивана, раскладного стола и проектора. Экран будет опускаться из потолка над ост

Сегодня мы расскажем, как сделать планировку в 3-комнатной квартире для семьи с ребенком. Метраж квартиры составляет 89 кв.м.

Дополнительная информация о семье — в доме будет жить большая собака. В квартире есть минусы, которые надо проработать при составлении плана ремонта:

-2
  • входная дверь открывается внутрь квартиры;
  • отсутствует выделенная грязная зона;
  • одна стена является несущей.

Для создания зон комфортного проживания организуем пространство помещений:

Прихожая. Душевая для собаки. Оборудуем дверь так, чтобы она открывалась наружу. Сделаем ее из двух створок, одна из которых будет меньше по размеру. Такой вариант позволяет открывать дверь и при этом не мешать соседям. К тому же, появляется выделенная грязная зона. Оформим душевую для собаки со входом из прихожей.

-3

Зона рядом с кухней. Прилежащий к кухне санузел переоборудуем под кладовку, увеличив место для хранения кухонной утвари и продуктов.

Кухня и гостиная. Создадим остров на кухне, под которым собака сможет есть и отдыхать. В гостиной спланируем место для дивана, раскладного стола и проектора. Экран будет опускаться из потолка над островом, это обеспечит комфортный просмотр.

-4

Кабинет. Рядом с гостиной обустроим кабинет с двумя стеклянными перегородками для уединения и работы.

-5

Спальня и детская комната. Вход в спальню сделаем через гардеробную. В спальне будет стоять кровать 2 на 2 метра, здесь же временно разместим детскую кроватку. В дальнейшем для ребенка предусмотрена детская комната, где будут находиться шкаф, шведская стенка, турник, диван, двухъярусная кровать и рабочее место.

Мастер-санузел. Предусмотрены: большая раковина, 2 смесителя, унитаз, душевая кабина.

-6

Санузел для гостей и ребенка. Предусмотрены: ванна, унитаз, раковина.

-7

Готовое планировочное решение показываем на планировочной доске. Именно благодаря ей легко внести изменения и прийти к идеальному варианту планировки квартиры, в которой будет комфортно жить, отдыхать и принимать гостей.

Как вам планировочка???

___________________________________________________________

Студия дизайна и ремонта Люксорта +7 812 928 10 31

Наш сайт: https://luxorta.ru

Мы в контакте: https://vk.com/luxorta