Найти в Дзене

Как создается дизайн-проект: пример на 76 м2 в ЖК «Петровский Парк»

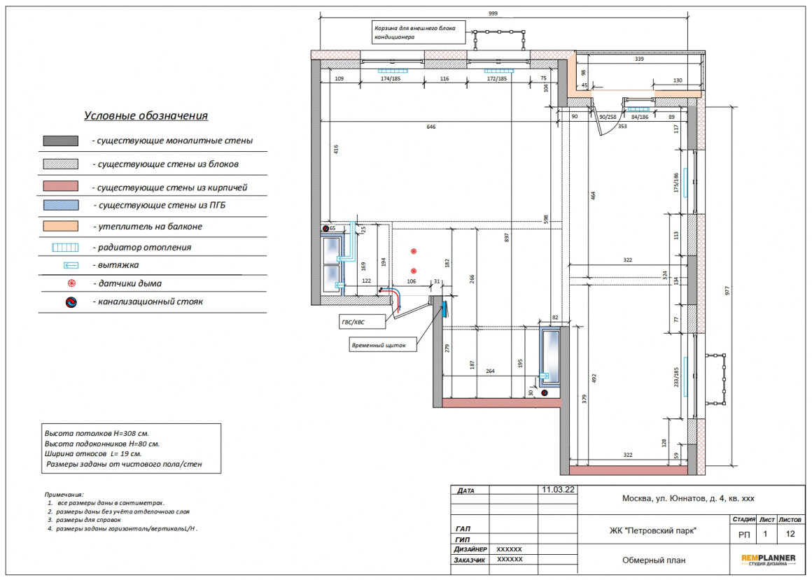
Представляем вашему вниманию краткий гид по техническим чертежами проекта в ЖК «Петровский парк» от студии RemPlanner. С ним вы сможете узнать, как создается дизайн-проект, научиться чему-то новому, чтобы перейти к своим собственным свершениям в онлайн-планировщике RemPlanner. Итак, давайте начнем! Исходный план Давайте рассмотрим «Исходный план» помещения, на который нанесены стены с обозначениями о том, какие они — монолитные (несущие), из блоков, кирпичей, ПГБ и другое. Также отмечен утеплитель на балконе, канализационный стояк, датчик дыма, вытяжка и радиаторы отопления. Именно эти обозначения существуют на всех исходных планах, и в онлайн планировщике RemPlanner вы работаете по формату и схемам профессиональных дизайнеров. Обратите внимание на приписку внизу: здесь обозначена высота потолков, подоконников и ширина откосов. А также добавлено, что размеры заданы от чистового пола (стен), т.е. без отделочного слоя. Демонтаж Так как это новостройка, и перегородок тут еще нет, план «Де

Представляем вашему вниманию краткий гид по техническим чертежами проекта в ЖК «Петровский парк» от студии RemPlanner. С ним вы сможете узнать, как создается дизайн-проект, научиться чему-то новому, чтобы перейти к своим собственным свершениям в онлайн-планировщике RemPlanner.

Итак, давайте начнем!

Исходный план

-2

Давайте рассмотрим «Исходный план» помещения, на который нанесены стены с обозначениями о том, какие они — монолитные (несущие), из блоков, кирпичей, ПГБ и другое. Также отмечен утеплитель на балконе, канализационный стояк, датчик дыма, вытяжка и радиаторы отопления. Именно эти обозначения существуют на всех исходных планах, и в онлайн планировщике RemPlanner вы работаете по формату и схемам профессиональных дизайнеров.

Обратите внимание на приписку внизу: здесь обозначена высота потолков, подоконников и ширина откосов. А также добавлено, что размеры заданы от чистового пола (стен), т.е. без отделочного слоя.

Демонтаж

-3

Так как это новостройка, и перегородок тут еще нет, план «Демонтаж» включает только демонтаж некачественного утеплителя, одного ряда блоков и замену радиаторов на настоящие.

Важно! В квартирах под отделку в 99% случаев многие радиаторы и трубы отопления от застройщика — лишь временная мера, их оставлять не рекомендуется.

Монтаж

-4

Далее переходим к плану «Монтаж». Здесь мы видим, что основной инструмент дизайнера — это новые перегородки шириной в 10 см из кирпича, а также перегородки ГКЛ со звукоизоляцией 13,5 см. Отдельно звукоизоляция шириной в 9,5 см есть и у спальни. Утеплитель на балконе новый.

-5

Рассмотрите внимательно! Зона санузла с инсталляцией здесь проработана детально и сложно — для подвесного унитаза будет инсталляция с перегородкой из ГВЛ/ГКЛ. Рядом есть фотография (визуализация, вверху слева), чтобы было понятно, как выглядит эта зона в реальности.

Для утепления балкона также есть уточняющая памятка вверху слева.

-6

Лайфхак: посмотрите, что перегородки разбросаны по дому вовсе не в хаотичном и примерном порядке. Они сразу продуманы под гардеробы в прихожей и коридоре, вплоть до сантиметра. Кстати, размер шкафов потом будет замерять мастер из мастерской. Потому что замеры встроенной мебели делают только после нанесения финишного слоя краски/штукатурки/отделки.

Мебель

-7

Следующий план показывает расстановку мебели и многие детали, которые важно подчеркнуть. Здесь проект приобретает уже вполне понятные черты — просторную кухню-гостиную с островом, две спальни, три санузла (ванная, душевая, постирочная сбоку слева) и гардеробную.

-8
-9

Как вы можете заметить, на утепленной лоджии будет кабинет для ребенка, а звукоизоляция для спальни особенно важна, так как прямо рядом находится санузел и комнаты соседей.

План помещений

-10

На плане «Помещения» самое главное — указать конкретные функции и площадь каждой комнаты. Ее границы должны быть четко видны, а остальные детали (мебель, элементы) могут быть плохо видны. Исключение: стояки, электрощиток и т.п.

Розетки

-11

Розетки бывают разные, плюс есть специальные розетки и выводы под освещение. Есть домофон, wifi-роутер, принудительный вентилятор в санузле. Все эти элементы накладываются на план «Розетки», чтобы была составлена полная картина для нужд различных электрических приборов.

-12

Заметьте, что сбоку слева есть отдельная заметка для бытовой техники для кухни.

Потолки

-13

План «Потолки» — это возможность выбрать между дорогим и интересным гипсокартоном с дизайнерскими элементами, скромным, но тоже красивым натяжным вариантом и потолком под покраску. Последний вариант мы советуем делать со звукоизолирующими панелями от шума соседей сверху.

Освещение

-14

План «Освещение» занимает у новичков примерно в 10 раз больше времени, чем они думали. Все потому, что расположение точечных светильников, встроенных и трековых, нужно выверять вплоть до миллиметра относительно размеров комнаты и расположения мебели, в соответствии с правилами пропорций и симметрией.

Выключатели

-15

План «Выключатели» содержит схему расположения выключателей. И здесь важно помнить, что некоторые элементы требуют выключателя непосредственно рядом с ними: например, зеркало у будуарного столика в спальне.

-16

Напольные покрытия

-17

Выбирая напольные покрытия, большинство сейчас выбирает между кварцвинилом и более дорогой инженерной доской, а также плиткой и керамогранитом. Чтобы проект получился более стильным, мы рекомендуем золотую середину: кварцвинил — для основной площади и качественный крупноформатный керамогранит 60x120 см — для ванной, прихожей и кухни.

-18

Теплый пол

Завершаем мы нашу экскурсию по техническим чертежам этого проекта листом для теплого пола. Как видите, его площадь невелика, но он позволяет значительно повысить комфорт жильцов при минимальных вложениях.

-19