Найти в Дзене
ЭТО ВАШ ИНТЕРЬЕР

Бюджетный ремонт "однушки" площадью 33 кв. м для возрастной женщины

Хозяйка данной квартиры — женщина в возрасте, которая живет одна. Ей надоел старый ремонт квартиры, и поэтому она решила вдохнуть в свой интерьер новую жизнь. Получилось довольно бюджетно, простенько, но зато уютно и функционально. Проект Прихожая Весь интерьер квартиры оформили в светлых цветах. На полу использовали ламинат, а стены покрашены краской салатового оттенка. Слева от входа повесили зеркало, а на противоположной стене установили открытую и закрытую системы хранения с мягкой банкеткой. Кухня-гостиная При входе на кухню появился угловой гарнитур с классическими белыми фасадами. Фартук выложен мозаикой, а рабочая столешница изготовлена из искусственного камня. Напротив находится столовая группа с раскладным столом, так как к хозяйке частенько наведываются гости. Над обеденным столом повесили телевизор. Ближе к окну разместили угловой диван желтого цвета, который легко превращается в гостевое спальное место. Спальня За стеклянными распашными дверьми скрывается изолированная
Оглавление

Хозяйка данной квартиры — женщина в возрасте, которая живет одна. Ей надоел старый ремонт квартиры, и поэтому она решила вдохнуть в свой интерьер новую жизнь. Получилось довольно бюджетно, простенько, но зато уютно и функционально.

Проект

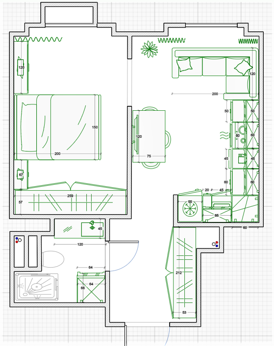
  • Местонахождение: г. Санкт-Петербург
  • Площадь квартиры: 33 кв. м
  • Владельцы: женщина в возрасте

Прихожая

Весь интерьер квартиры оформили в светлых цветах. На полу использовали ламинат, а стены покрашены краской салатового оттенка. Слева от входа повесили зеркало, а на противоположной стене установили открытую и закрытую системы хранения с мягкой банкеткой.

-2

Кухня-гостиная

При входе на кухню появился угловой гарнитур с классическими белыми фасадами. Фартук выложен мозаикой, а рабочая столешница изготовлена из искусственного камня.

Напротив находится столовая группа с раскладным столом, так как к хозяйке частенько наведываются гости. Над обеденным столом повесили телевизор.

-4

Ближе к окну разместили угловой диван желтого цвета, который легко превращается в гостевое спальное место.

Спальня

За стеклянными распашными дверьми скрывается изолированная спальня. Цветовая гамма здесь такая же как и во всей квартире, за исключением акцентной стены за кроватью, которую оклеили темными обоями с рисунком. У стены расположились шкафы с белыми фасадами.

Ванная комната

Чтобы сэкономить на материалах, плитка уложена лишь в "мокрых" зонах, в остальных использовали краску. Вместо ванны хозяйка предпочла душевую кабинку с обычной шторкой, вместо стеклянной. Напротив раковины нашлось место и для стиральной машинки.

-7

Если вам понравилась статья, то не забудьте поставить лайк и подписаться, чтобы не пропустить новый материал!

Так же пишите в комментариях, что вам понравилось в этом проекте, а что вызывает сомнения.

Если вам будет интересно, то заходите на мой второй новый канал)