Найти в Дзене

Одноэтажный мини дом «Рада» общая площадь – 26 м2

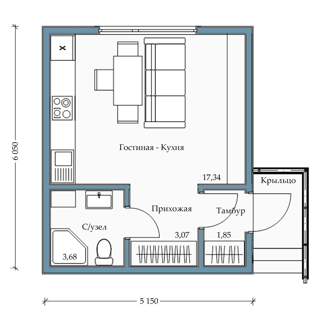
Коттедж «Рада» это одноэтажный, функциональный мини дом с компактной, рациональной планировкой включающей в себя помещения тамбура, прихожей, санузла, а также студийного пространства кухни-гостиной. Проект «Рада», отличный вариант для небольшого гостевого дома или дачи. Адаптация проекта под условия на участке, внесение изменений в планировку или иные дополнения по пожеланию заказчика при строительстве с нами – бесплатно.
Коттедж «Рада» это одноэтажный, функциональный мини дом с компактной, рациональной планировкой включающей в себя помещения тамбура, прихожей, санузла, а также студийного пространства кухни-гостиной.
-2
Проект «Рада», отличный вариант для небольшого гостевого дома или дачи.
-3

-4
-5
-6
  • Общая площадь – 26 м2
  • Этажность – 1
  • Количество спален – 1
  • Количество санузлов – 1
  • Высота потолка – 2,6 м

Адаптация проекта под условия на участке, внесение изменений в планировку или иные дополнения по пожеланию заказчика при строительстве с нами – бесплатно.