Добавить в корзинуПозвонить
Найти в Дзене
GREY HOUSE

Сдали одноэтажный каркасный дом

Дом по проекту Химос 2 с изменениями в планировке. Появилась дополнительная спальня. Размеры дома - 12х7м + Терраса Высота потолков - 3,4 м - 2,5 м Стандартная планировка Строили в д. Космынка, Дмитровского района. Ход строительства дома Готовый дом экстерьер Интерьер Комплектация дома:
- Каркас дома сухой строганный 45х145мм
- Ветрозащита - JUTAVEK 115
- Пароизоляция Ютафол Н110+скотч Delta
- Отделка снаружи скандинавская доска толщиной 21мм с заводской покраской
- Утепление - пол, потолок, наружные стены 200мм Paroc Extra Light, перегородки 100мм
- Отделка внутри - имитация бруса толщиной 16мм
- Отделка пола ОСП толщиной 22мм
- Отделка пола на террасе лиственницей толщиной 28мм
- Кровля - металлочерепица толщиной 0,45мм
- Окна ПВХ Rehau Grazio толщиной 70мм двойной стеклопакет
- Дверь входная - ПВХ Rehau толщиной 70мм
- Водосточная система GrandLine
- Снегозадержатели
- Защитная сетка от грызунов Стоимость дома - https://grey-house.ru/object/kosmynka/ ***
Все новости читайте в нашем
Оглавление

Дом по проекту Химос 2 с изменениями в планировке. Появилась дополнительная спальня.

Размеры дома - 12х7м + Терраса

Высота потолков - 3,4 м - 2,5 м

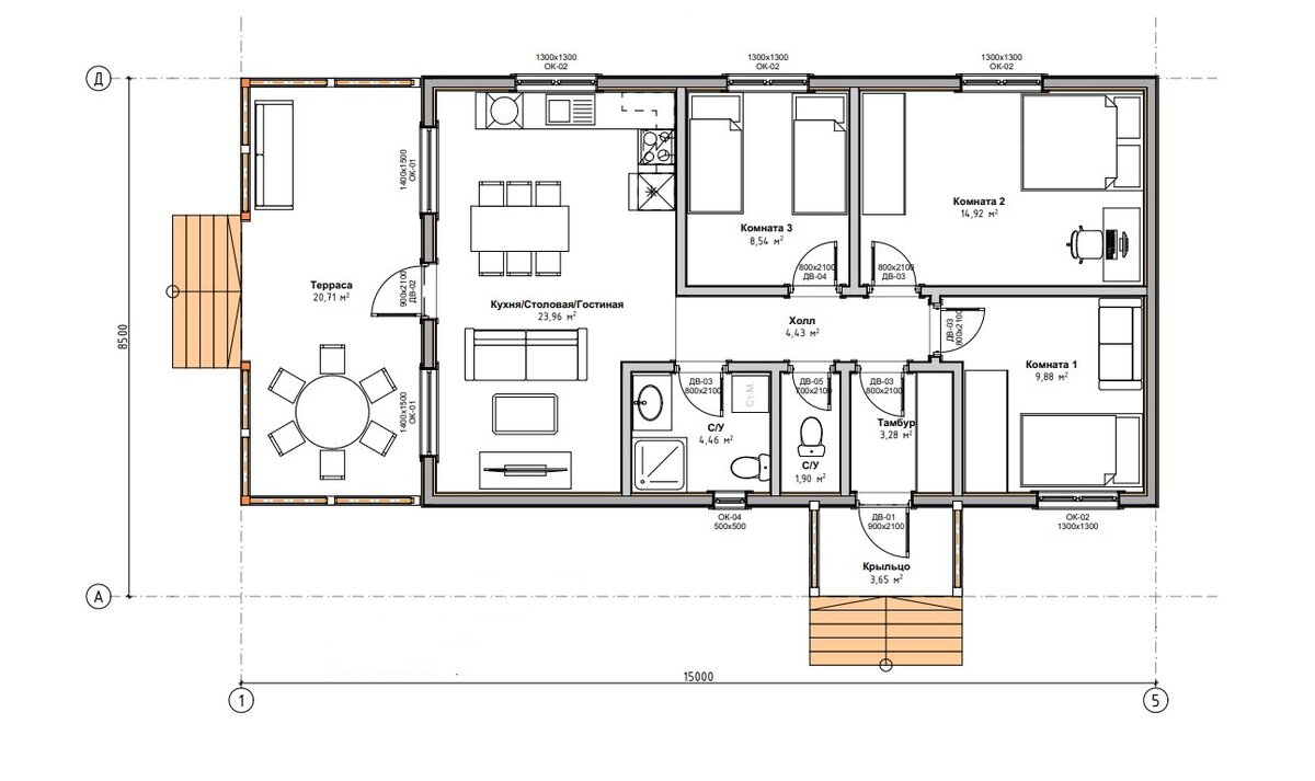
Планировка построенного дома
Планировка построенного дома

Стандартная планировка

Планировка дома Химос 2
Планировка дома Химос 2

Строили в д. Космынка, Дмитровского района.

Ход строительства дома

Готовый дом экстерьер

-4
-5
-6
-7
-8
-9
-10
-11
-12
-13

Интерьер

-14
-15
-16
-17
-18
-19
-20
-21
-22
-23

Комплектация дома:
- Каркас дома
сухой строганный 45х145мм
- Ветрозащита -
JUTAVEK 115
- Пароизоляция Ютафол Н110+скотч
Delta
- Отделка снаружи скандинавская доска толщиной 21мм
с заводской покраской
- Утепление - пол, потолок, наружные стены 200мм
 Paroc Extra Light, перегородки 100мм
- Отделка внутри - имитация бруса толщиной 16мм
- Отделка пола ОСП толщиной 22мм
- Отделка пола на террасе лиственницей толщиной 28мм
- Кровля - металлочерепица толщиной 0,45мм
- Окна
ПВХ Rehau Grazio толщиной 70мм двойной стеклопакет
- Дверь входная -
ПВХ Rehau толщиной 70мм
- Водосточная система
GrandLine
- Снегозадержатели
- Защитная сетка от грызунов

Стоимость дома - https://grey-house.ru/object/kosmynka/

***
Все новости читайте в нашем телеграм-канале

Подписывайтесь на нашу группу Вконтакте

И, конечно же, подписывайтесь на нас в «Дзене»

Наши контакты:

Телефон: 8-499-226-08-43
What’s App
mail@grey-house.ru
Сайт:
grey-house.ru