Найти в Дзене
Фен Шуй

Как Ваша квартира влияет на Ваши финансы и здоровье.

Здравствуйте дорогие друзья! Сегодня я поделюсь с Вами историей о том, как квартира моей клиентки стала причиной серьезных проблем по здоровью у всех членов семьи, что несомненно сказывалось на их финансовом благополучии. Итак, квартира, в котором живут мои клиенты, обычный панельный дом в простонародье - "Ленинградка". В данной з-х комнатной квартире проживает моя клиентка Елена с мужем Михаилом и 2- мя маленькими детьми ( Егор 10 лет и Аня 5 лет). В ходе беседы я выяснила, что квартира досталась Елене в наследство от родителей. Сейчас в данной квартире она проживает со своей семьей. По здоровью у нее с рождения были проблемы с сердечно-сосудистой системой, у мужа начались проблемы по здоровью спустя 3 года проживания в этой квартире (головные боли, межпозвоночные грыжи) у детей с рождения проблемы со зрением. Финансовые проблемы в основном у мужа. Основным запросом с которым Елена обратилась ко мне - это улучить финансовое состояние мужа, а также здоровье

Здравствуйте дорогие друзья!

Сегодня я поделюсь с Вами историей о том, как квартира моей клиентки стала причиной серьезных проблем по здоровью у всех членов семьи, что несомненно сказывалось на их финансовом благополучии.

автор статьи, профессиональный фэн -шуй консультант Айгуль .
автор статьи, профессиональный фэн -шуй консультант Айгуль .

Итак, квартира, в котором живут мои клиенты, обычный панельный дом в простонародье - "Ленинградка".

В данной з-х комнатной квартире проживает моя клиентка Елена с мужем Михаилом и 2- мя маленькими детьми ( Егор 10 лет и Аня 5 лет).

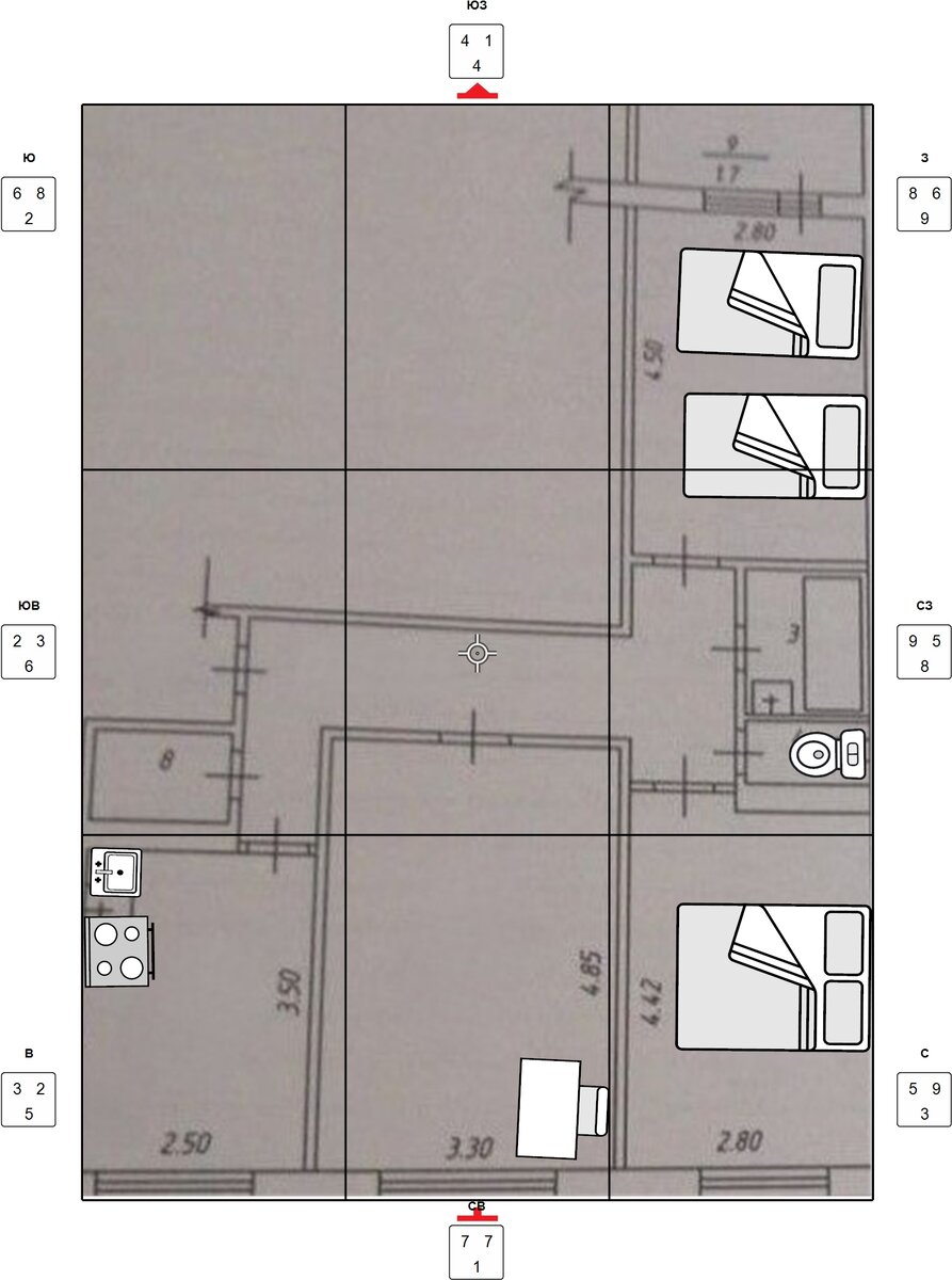
Измерения 3-х комнатной квартиры Елены в ходе анализа пространства дома.
Измерения 3-х комнатной квартиры Елены в ходе анализа пространства дома.

В ходе беседы я выяснила, что квартира досталась Елене в наследство от родителей. Сейчас в данной квартире она проживает со своей семьей. По здоровью у нее с рождения были проблемы с сердечно-сосудистой системой, у мужа начались проблемы по здоровью спустя 3 года проживания в этой квартире (головные боли, межпозвоночные грыжи) у детей с рождения проблемы со зрением. Финансовые проблемы в основном у мужа.

Основным запросом с которым Елена обратилась ко мне - это улучить финансовое состояние мужа, а также здоровье у всех членов семьи.

Вы спросите меня: а причем тут квартира и здоровье, проживающих в этой квартире людей? Как квартира оказывает влияние на здоровье и финансы членов семьи.

Все очень просто!

У каждого члена семьи существует индивидуальная связь со своим домом, которое основывается на дате рождения, статусе и возраста человека. В зависимости от того, на сколько крепка связь дома с человеком формируется энергетический иммунитет человека.

Задача дома наполнить Вас энергией и силой для максимальной реализации поставленных задач. Если дом не наполняет Вас положительной энергией, то страдает здоровье человека, и как следствие финансы и отношения.

В доме Елены существует ряд повреждений, которые оказывают негативное влияние на здоровье и финансы семьи:

- Расположение санузла (отвода канализационной трубы туалета) в северо-западной части квартиры. Могут быть проблемы, в первую очередь у главного мужчины в доме Михаила не только по здоровью, связанные с головой, позвоночников, органами дыхания, но и с финансами.

- Отсутствие сектора (квадрата) Юго-запад в данном доме в первую очередь влияет на главную женщину в доме (Елену). Могут быть проблемы по гинекологии и болезни органов брюшной полости.

-Отсутствие сектора юг провоцирует заболевания сердечно-сосудистой системы, заболевания глаз и тонкого кишечника.

- частичное отсутствие центра квартиры влияет на заболевания сердца у всех членов семьи.

Делая выводы, можно сказать, что в данной квартире у хозяев дома слабый энергетический иммунитет. Проживающие в доме, недополучают энергии, в связи с повреждением (отсутствием) части квартиры, поэтому у каждого члена семьи имеются те или иные заболевания. Усугубляется положение у главного мужчины в доме, у него связь с домом самая слабая, поэтому обостряется ситуация и с финансами.

Также при анализе квартиры были учтены и качество энергий , которые хозяева дома получают в ключевых точках в доме (спальня, кровать, входная дверь, плита и рабочий стол).

В итоге, с учетом всех математических расчетов и методов анализа дома по Фэн Шуй, мною были даны конкретные рекомендации по улучшению их ситуации. Мы с ними выбрали мощные корректоры по ХЭ ТУ, которые способны повысить энергетический иммунитет человека, переставили кровати и рабочий стол, даже плиту на благоприятные энергии, поменяли текстиль дома, тем самым гармонизировали энергии в доме.

Если же Вы находите у себя те же проблемы по здоровью и финансам, что и у моих клиентов, хотите улучшить свою жизнь здесь и сейчас, пишите в комментариях, в каких сферах хотите изменить свою жизнь и мы вместе попробуем Вам в этом помощь.

Подпишитесь на наш канал чтобы не пропустить новые статьи.