Добавить в корзинуПозвонить
Найти в Дзене
Филдс

В тесной однушке 36 м² уместили всё необходимое: пример грамотной перепланировки до и после

Дизайнер Ирина Ващенко превратила небольшую однушку площадью 36 м² в евродвушку. Благодаря грамотной перепланировке удалось организовать все необходимые функциональные зоны и даже выделить место под просторную гардеробную. В основе проекта — минималистичный стиль, не лишенный фактурных и умеренных цветных акцентов. Планировка до и после Перегородку, разделявшую кухню и единственную комнату, демонтировали. Вместо нее возвели новую — она изолировала спальню, часть которой отвели под гардеробную. На оставшейся площади жилой зоны обустроили совмещенную кухню-гостиную. К ней архитектурно прилегает прихожая. Санузел остался практически в изначальных границах. Кухня-гостиная Стены покрыли спокойной светло-бежевой краской, пол во всей жилой зоне отделали кварцвиниловой плиткой, ее уложили елочкой. Покрытие распространили и на кухню, чтобы не дробить компактное пространство. Спальня Динамики интерьеру спальни тоже добавляет разнообразие фактур. Мягкое изголовье обрамляют ряды гипсовых реек,
Оглавление

Дизайнер Ирина Ващенко превратила небольшую однушку площадью 36 м² в евродвушку. Благодаря грамотной перепланировке удалось организовать все необходимые функциональные зоны и даже выделить место под просторную гардеробную. В основе проекта — минималистичный стиль, не лишенный фактурных и умеренных цветных акцентов.

  • Общая площадь: 36 м²
  • Место: Москва
  • Тип дома: ЖК «Сердце столицы»
  • Количество комнат: из однушки в евродвушку
  • Высота потолка: 2,9 м
  • Кто здесь живет: молодая девушка
  • Дизайнер: Ирина Ващенко
  • Стилист: Варвара Калицкая
  • Фото: Анастасия Кутырина

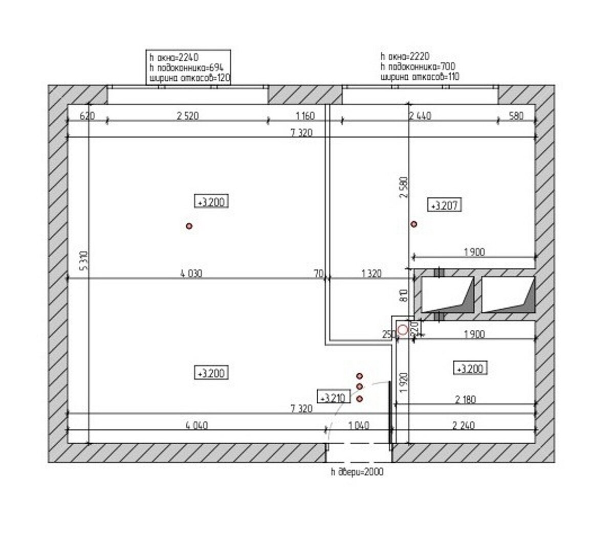
Планировка до и после

Перегородку, разделявшую кухню и единственную комнату, демонтировали. Вместо нее возвели новую — она изолировала спальню, часть которой отвели под гардеробную. На оставшейся площади жилой зоны обустроили совмещенную кухню-гостиную. К ней архитектурно прилегает прихожая. Санузел остался практически в изначальных границах.

Кухня-гостиная

Стены покрыли спокойной светло-бежевой краской, пол во всей жилой зоне отделали кварцвиниловой плиткой, ее уложили елочкой. Покрытие распространили и на кухню, чтобы не дробить компактное пространство.

Спальня

Динамики интерьеру спальни тоже добавляет разнообразие фактур. Мягкое изголовье обрамляют ряды гипсовых реек, которые задают вертикальный вектор и зрительно расширяют пространство. Постель симметрично дополнили лаконичными прикроватными тумбами.

Прихожая

Гостиную и прихожую зонирует шкаф-колонна. В нем спрятали хозблок и стиральную машину. Зону также выделили на уровне пола. Здесь, как и в санузле, использовали керамогранит с узором терраццо. В нише слева от входа разместили подвесную систему хранения и банкетку, внизу оставили пространство для обуви.

Санузел

Стены и чашу ванны облицевали керамогранитом под камень. Для хранения предусмотрели тумбу в зоне раковины и секцию над инсталляцией, которая продолжается открытыми полками для гигиенических средств. Деревянные текстуры обеспечили разнообразие и добавили уюта.

Интересные мнения в комментариях приветствуются. Если материал понравился — ставь лайк!

🖤 Филдс — это не только блог на Дзене, но и магазин дизайнерских предметов интерьера. Заходите на сайт, чтобы увидеть мебель, которую дизайнеры выбирают для своих проектов.