Найти в Дзене

Наши проекты

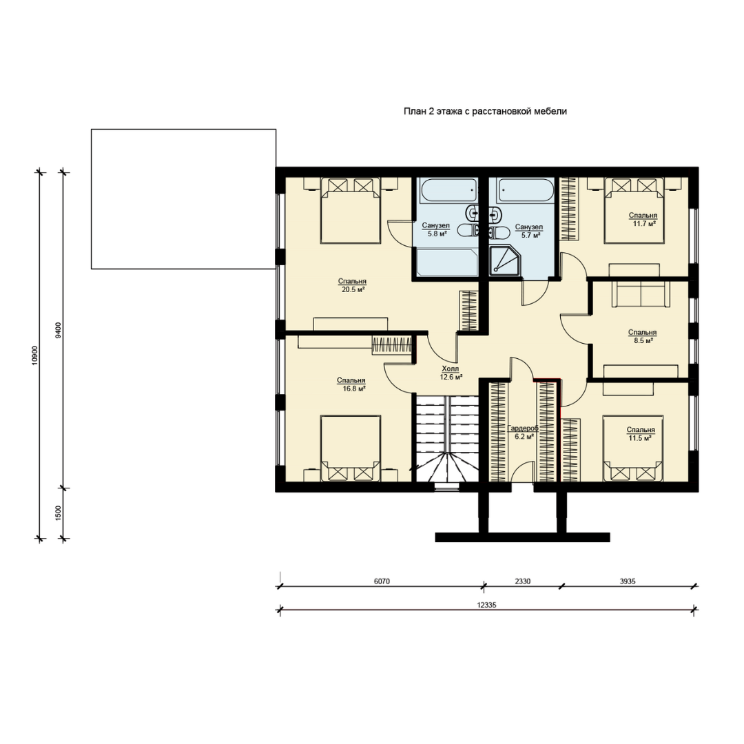
💥 Наши проекты: БП-232 💥 Мечтаете всей своей большой и дружной семьёй перебраться за город? Предоставляем вам проект дома БЭНПАН для многодетной семьи – БП-232. 📌 Это просторный восьмикомнатный двухэтажный дом, рассчитанный на семью до 15 человек. Первый этаж дома состоит из: ✔️ кухни-гостиной с выходом на террасу; ✔️ 2 спален; ✔️ 2 санузлов; ✔️ котельной; ✔️ холла. Планом второго этажа предусмотрены: ✔️ 5 спален; ✔️ гардеробная; ✔️ 2 санузла; ✔️ холл. В таком доме найдётся уютное местечко для каждого члена семьи. Строительство дома по проекту БП-232 доступно с использованием панелей: ◼️ БЭНПАН-Д – двухслойные железобетонные ребристые утеплённые панели под мокрый фасад; ◼️ БЭНПАН+ – железобетонные ребристые утеплённые панели под вентфасад; ◼️ БЭНПАН Премиум – трёхслойные железобетонные ребристые утеплённые панели с внешним слоем из бетона; ◼️ БЭНПАН Апекс – трёхслойные утеплённые панели с готовым фасадом, предназначенные для бесшовного стыка панелей. Доступные к заказу комплектации:

💥 Наши проекты: БП-232 💥

Мечтаете всей своей большой и дружной семьёй перебраться за город?

Предоставляем вам проект дома БЭНПАН для многодетной семьи – БП-232.

📌 Это просторный восьмикомнатный двухэтажный дом, рассчитанный на семью до 15 человек.

Первый этаж дома состоит из:

✔️ кухни-гостиной с выходом на террасу;

✔️ 2 спален;

✔️ 2 санузлов;

✔️ котельной;

✔️ холла.

Планом второго этажа предусмотрены:

✔️ 5 спален;

✔️ гардеробная;

✔️ 2 санузла;

✔️ холл.

В таком доме найдётся уютное местечко для каждого члена семьи.

Строительство дома по проекту БП-232 доступно с использованием панелей:

◼️ БЭНПАН-Д – двухслойные железобетонные ребристые утеплённые панели под мокрый фасад;

◼️ БЭНПАН+ – железобетонные ребристые утеплённые панели под вентфасад;

◼️ БЭНПАН Премиум – трёхслойные железобетонные ребристые утеплённые панели с внешним слоем из бетона;

◼️ БЭНПАН Апекс – трёхслойные утеплённые панели с готовым фасадом, предназначенные для бесшовного стыка панелей.

Доступные к заказу комплектации:

◼️ Базовая;

◼️ Тёплый контур;

◼️ Тёплый контур+.

Также возможен заказ Домокомплекта и подбор индивидуальной комплектации.

По всем интересующим вопросам и для расчёта стоимости нужной вам комплектации дома по проекту БП-232 обращайтесь в Директ 📩 или по телефону: 📞 +7 (495) 260-98-32

#проектдома #подмосковье #коттедж #загородныйдом #бэнпан #коттедж #посёлок #живитедома #частныйдом #свойдом #уютныйдом #уютныйдомик #стройкадома #москвадома #строительстводомов #строительстоподключ #строительстводома